Найти в Дзене
INMYROOM

Красивая трехкомнатная квартира с панорамными окнами

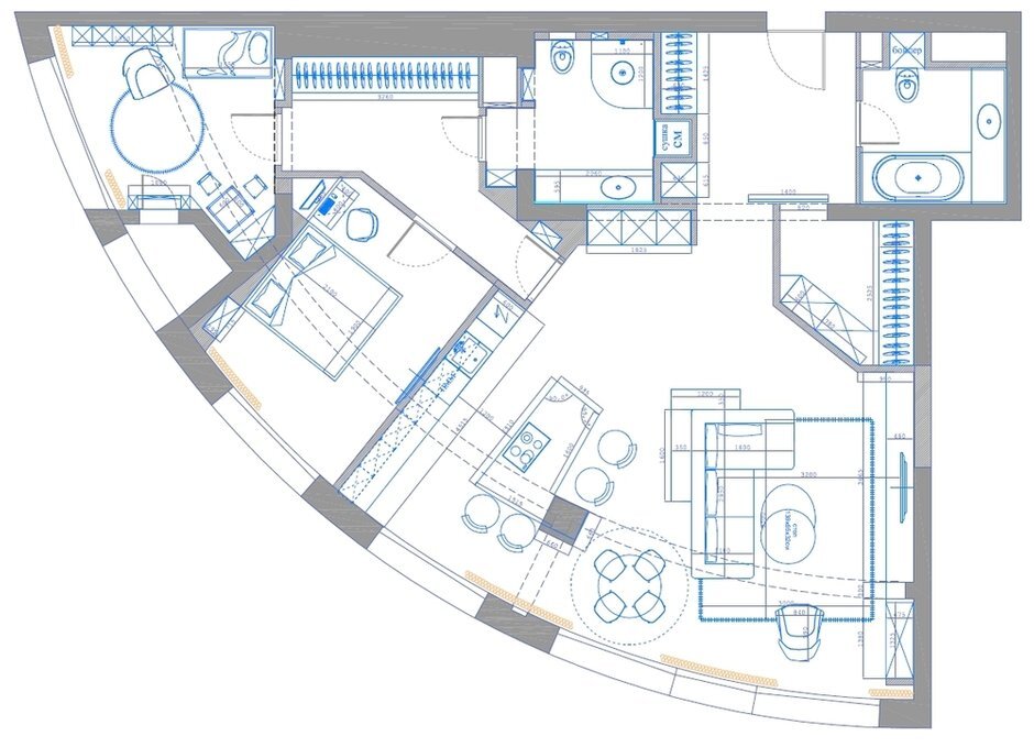
Вкратце Ольга Рудакова оформила просторную квартиру необычной формы для семьи. Заказчики живут очень активной и интенсивной жизнью, поэтому хотели получить современный интерьер, где много воздуха и простора. Функция и уют — ничего лишнего. Квартиру разделили на две части: приватную и общественную — именно кухне с гостиной и столовой зоной отдали максимум площади. Подробности Квартира имеет форму сектора круга. В центре кухни стоит несущая колонна, ее нужно было обыграть. Несущие стены и мокрые зоны определили планировочное решение. Многофункциональная кухня-гостиная занимает основное пространство квартиры, а спальню и детскую сделали компактными. Несущая колонна в зоне кухни сыграла свою роль: на нее приходится нагрузка деревянной столешницы «острова». Вытяжка расположена в потолке. За «островом» удобно готовить, смотреть фильмы и одновременно принимать гостей, тут есть четыре посадочных места. У окна — стол для завтраков. Кухонный остров сделали на заказ в одной компании, столеш
Оглавление

Вкратце

Ольга Рудакова оформила просторную квартиру необычной формы для семьи. Заказчики живут очень активной и интенсивной жизнью, поэтому хотели получить современный интерьер, где много воздуха и простора. Функция и уют — ничего лишнего. Квартиру разделили на две части: приватную и общественную — именно кухне с гостиной и столовой зоной отдали максимум площади.

 📷
📷

Подробности

Квартира имеет форму сектора круга. В центре кухни стоит несущая колонна, ее нужно было обыграть. Несущие стены и мокрые зоны определили планировочное решение. Многофункциональная кухня-гостиная занимает основное пространство квартиры, а спальню и детскую сделали компактными.

 📷
📷

Несущая колонна в зоне кухни сыграла свою роль: на нее приходится нагрузка деревянной столешницы «острова». Вытяжка расположена в потолке. За «островом» удобно готовить, смотреть фильмы и одновременно принимать гостей, тут есть четыре посадочных места. У окна — стол для завтраков.

 📷
📷

Кухонный остров сделали на заказ в одной компании, столешницу из порфира (гранит) в другой. Все это совместили со столешницей из дерева. Частично ее закрепили на несущей колонне, облицованной зеркалом. Это был эксперимент, и он удался.

В зоне кухни заказчики хотели использовать плитку. Квадратная не подходила из-за формы помещения, здесь нет прямоугольных стен. Нужны были «соты», но большого размера. Взяли керамогранит 60×60 см и на заказ вырезали нужные формы.

 📷
📷

Зеркало на колонне помогло ей немного затеряться в пространстве. На одной из стен напротив окна также разместили зеркальное панно, но из состаренного зеркала. Оно не должно было на 100% отражать все, его задача — лишь добавлять глубины.

В нишу за зеркальными дверцами вписали секцию для приготовления кофе и чая. Рядом предусмотрели большой винный шкаф.

 📷
📷

 📷
📷

 📷
📷

Мебель для хранения выполнена на заказ. Заказчики любят лаконичную мебель, поэтому идеально подошли предметы BoConcept — диван и кресло-реклайнер в зоне окна, журнальный стол со скрытым хранением, столик и стулья. Они лаконичные, комфортные и качественные, нейтральных цветов.

 📷
📷

 📷
📷

 📷
📷

 📷
📷

 📷
📷

 📷
📷

 📷
📷

«У нас получилось несколько систем хранения. Есть кладовая в прихожей. Она закрывается раздвижной шпонированной дверью. Когда дверь открывается, она перекрывает проход в гостиную. В кладовой хранится спортивное снаряжение клиентов и разные бытовые вещи», — рассказывает дизайнер.

 📷
📷

Интересно спроектирована спальня. В изголовье стена облицована панелями МДФ — частично они покрыты эмалью и частично шпоном. В стене есть ниши, и их не видно. Но там прячется небольшое рабочее место и хранение. Над самой кроватью ничего нет, там глухая стена — это видно на планировочном решении.

В будущей детской сейчас обустроили кабинет. На стене роспись — стилизованная детская карта мира. Ее сделали художники по эскизам визуализации проекта.

«Размер детской комнаты задается несущими стенами. Она получилась небольшой. Мы сделали вдоль окна длинную лавку, чтобы использовать ее как сиденье и как стол для игр на будущее», — рассказывает дизайнер.

Больше фото тут:

Красивая трехкомнатная квартира с панорамными окнами