Добавить в корзинуПозвонить
Найти в Дзене
Благоустройство.рф

Сколько стоит построить фундамент для дома? Проект+смета // Благоустройство.рф

В статье пример стоимости выполненной работы, рабочая смета и проект. Меня зовут Илья, я инженер-строитель и исполнитель данного проекта. Конструктивом фундамента заложена монолитная плита 200мм и ребра 400мм по несущим стенам. Подошва и ребра фундамента утеплены пенолистиролом 50мм высокой прочности. В теле фундамента заложены футляры под электричество и воду и смонтирована центральная канализация. При строительстве этого фундамента использовались только качественные материалы, прошедшие лабораторные испытания и имеющие соответствующие сертификаты. Работу выполняла квалифицированная бригада под контролем ответственного инженера. Работы выполнены в 2021 году в Московской области. Сроки выполнения данной работы 21 день. Стоимость работ и материалов составило 1 073 000 рублей*. *цена указана на момент строительства апрель 2021г. Напоминаем Вам! Пользуйтесь услугами только проверенных поставщиков и квалифицированных инженеров! Посмотрите видео👇 Спасибо, что дочитали статью до конца, подп

В статье пример стоимости выполненной работы, рабочая смета и проект. Меня зовут Илья, я инженер-строитель и исполнитель данного проекта.

  • Общая площадь фундамента 140м2.
  • Объем бетона 41м3.
  • Рабочая арматура Ф12 А500С
  • Марка бетона W25 М350

Конструктивом фундамента заложена монолитная плита 200мм и ребра 400мм по несущим стенам.

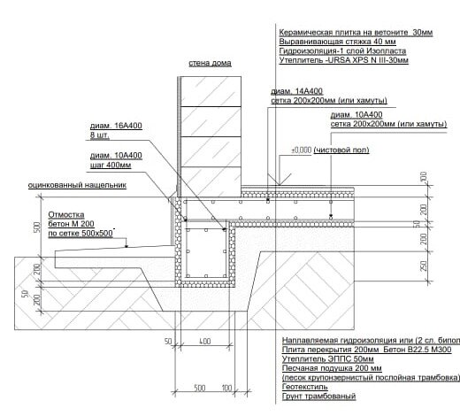
разрез принципиального узла конструктивных решений фундамента
разрез принципиального узла конструктивных решений фундамента

Подошва и ребра фундамента утеплены пенолистиролом 50мм высокой прочности. В теле фундамента заложены футляры под электричество и воду и смонтирована центральная канализация.

При строительстве этого фундамента использовались только качественные материалы, прошедшие лабораторные испытания и имеющие соответствующие сертификаты.

Работу выполняла квалифицированная бригада под контролем ответственного инженера.

монолитный фундамент для загородного дома под ключ
монолитный фундамент для загородного дома под ключ

Работы выполнены в 2021 году в Московской области. Сроки выполнения данной работы 21 день.

Стоимость работ и материалов составило 1 073 000 рублей*.

*цена указана на момент строительства апрель 2021г.

Напоминаем Вам! Пользуйтесь услугами только проверенных поставщиков и квалифицированных инженеров!

Посмотрите видео👇

Спасибо, что дочитали статью до конца, подписывайтесь на наш канал и получайте больше полезной информации о загородном строительстве.

Скачать или посмотреть смету строительства👉 здесь

Скачать или посмотреть проект👉 здесь

Посетите наш сайт: благоустройство.рф

Наш инстаграм: @blagoustroystvorf

Смотрите больше видео на нашем канале ютюб: благоустройство.рф

Удачной стройки🤞

#фундамент #строительство дома #строительство фундамента #фундамент для дома #стоимость фундамента #фундамент цена