Добавить в корзинуПозвонить
Найти в Дзене
INMYROOM

Дизайнер превратила «уставшую» панельную трёшку 58 м² в квартиру мечты для семьи с двумя дочками

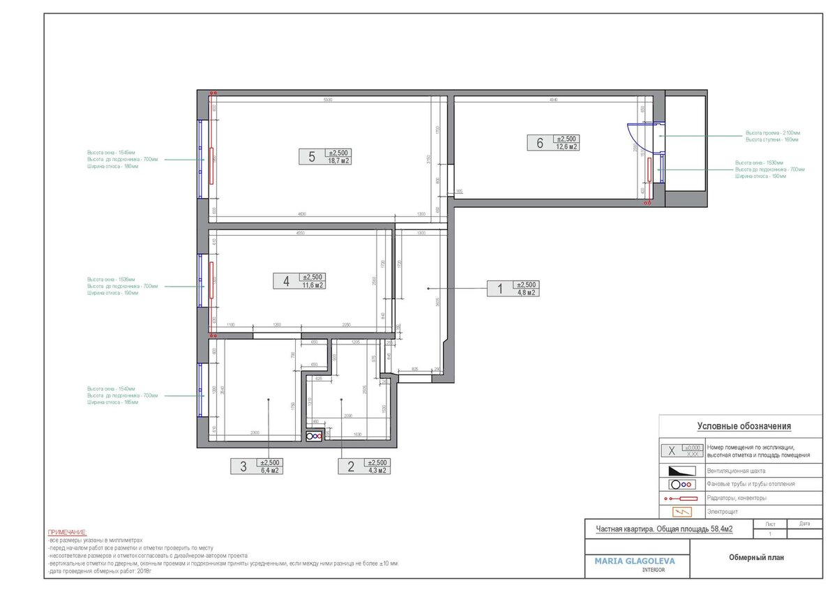
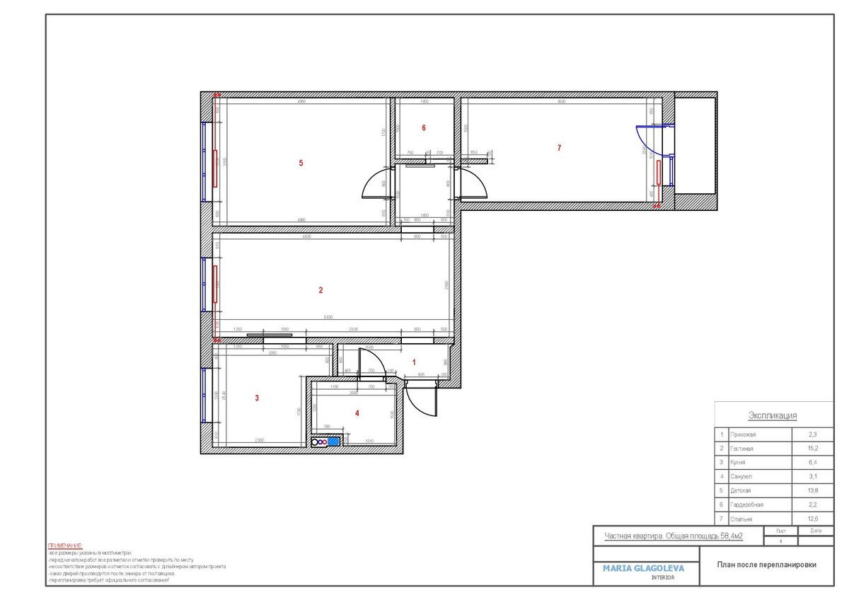
Паре с двумя дочками нужна была комфортная и просторная квартира. Однако у них в трешке почти все стены несущие, а комнаты – тесные. Дизайнер Мария Глаголева решила эту проблему посредством нехитрых приемов. Рассказываем, что именно было сделано в рамках данного проекта. Планировка Спальню и детскую оборудовали в глубине квартиры, а перегородку между гостиной и коридором снесли. Теперь гостиная является проходной, и в ней красуется гардеробная площадью около 14 м². Отделка В отделке сделали акцент на теплые фактуры – мрамор и древесину. Цветовое решение построили вокруг белых, синих и желтых оттенков. Таким образом, удалось реализовать в меру контрастный интерьер. Везде, кроме ванной, стены покрыты краской Little Greene. В гостиной и на кухне преобладает голубой с белым, а в детской – бежевый. Пространство за ТВ-зоной украсили молдингами и зеркалами, которые визуально расширили гостиную. На полу всюду лежит ламинат, а кухонный фартук выложен красивой плиткой Italon. Хранение Систему хр
Оглавление

Паре с двумя дочками нужна была комфортная и просторная квартира. Однако у них в трешке почти все стены несущие, а комнаты – тесные. Дизайнер Мария Глаголева решила эту проблему посредством нехитрых приемов. Рассказываем, что именно было сделано в рамках данного проекта.

  • Тип дома: панельный
  • Метраж: 58 кв. м
  • Комнаты: 3
  • Высота потолков: 2,5 м
  • Бюджет: 2 млн рублей

Планировка

Спальню и детскую оборудовали в глубине квартиры, а перегородку между гостиной и коридором снесли. Теперь гостиная является проходной, и в ней красуется гардеробная площадью около 14 м².

Отделка

В отделке сделали акцент на теплые фактуры – мрамор и древесину. Цветовое решение построили вокруг белых, синих и желтых оттенков. Таким образом, удалось реализовать в меру контрастный интерьер.

Везде, кроме ванной, стены покрыты краской Little Greene. В гостиной и на кухне преобладает голубой с белым, а в детской – бежевый. Пространство за ТВ-зоной украсили молдингами и зеркалами, которые визуально расширили гостиную.

На полу всюду лежит ламинат, а кухонный фартук выложен красивой плиткой Italon.

Хранение

Систему хранения продумали от и до. Помимо гардеробной, в каждой комнате предусмотрели закрытые шкафы с глухими фасадами. Это значительно облегчает уборку и завершает интерьер.

Белый оттенок и полуматовые поверхности частично отражают свет, за счет чего кажутся воздушнее.

Мебель и текстиль

Мебель в основном изготовлена на заказ. Она же выполняет роль декора – например, модульный диван Soho, синие стулья Lars, мраморный столик Zara Home и геометричная ТВ-тумба.

Детскую украшает подвесной светильник, а гостиную золотой торшер.

Римская штора с ярким принтом стала главным акцентом детской, в то время как в гостиной взгляд притягивает картина на стене.

Если вам понравилась наша статья, пожалуйста, поставьте лайк и обязательно поделитесь со своими друзьями в соц.сетях 👇 👇 👇

Посмотрите
наши матрасы и кровати для спальни и детской. Подарок 🎁 1000 ₽ на первый заказ от 20 000 руб. Введите промокод ZEN при заказе на INMYROOM (действуют ограничения).

-8

Еще больше вариантов дизайна типовых российских квартир смотрите на нашем youtube-канале INMYROOM TV. А в нашем маркетплейсе вы можете купить тысячи красивых предметов мебели и декора.

Смотрите нас в Youtube, Instagram, Facebook, Вконтакте