Добавить в корзинуПозвонить
Найти в Дзене
INMYROOM

Как дизайнеры из однушки сделали двушку с гардеробной и гостевым спальным местом

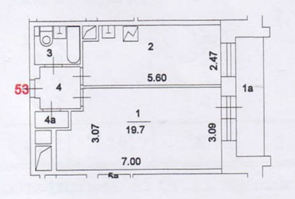
Эту квартиру дизайнеры Наталия Чайка и Александра Морозова спроектировали для молодой и активной заказчицы. Необходимо было унылую однушку превратить в стильное пространство с гардеробной и гостевым спальным местом. Вот что получилось по итогу. Перепланировка Практически все перегородки пришлось демонтировать. За счет сокращения площади прихожей удалось отыскать место для большого шкафа и отсека под обувь с сумками. Также расширили санузел и гардеробную. В квартире была реализована так называемая круговая планировка: из коридора теперь можно сразу пройти в кухню-гостиную и в спальню через гардеробную. Для увеличения высоты экстремально низких потолков установили двери высотой 220 см, поставили длинные кухонные шкафы и положили на пол темную доску. Полноценная спальня с окном и распашными дверьми впускает в комнату естественный свет, а зеркальный эффект на стекле создает интимную обстановку. Балкон присоединять не стали, но заменили остекление и установили теплый пол. Кроме того, там ст
Оглавление

Эту квартиру дизайнеры Наталия Чайка и Александра Морозова спроектировали для молодой и активной заказчицы. Необходимо было унылую однушку превратить в стильное пространство с гардеробной и гостевым спальным местом.

Вот что получилось по итогу.

  • Место: Москва, Филевский район
  • Метраж: 43,1 кв. м
  • Комнаты: 1
  • Высота Потолков: 2,45 м
  • Бюджет: 4 млн рублей
  • Дизайн: Наталия Чайка, Александра Морозова

Перепланировка

Практически все перегородки пришлось демонтировать. За счет сокращения площади прихожей удалось отыскать место для большого шкафа и отсека под обувь с сумками. Также расширили санузел и гардеробную.

В квартире была реализована так называемая круговая планировка: из коридора теперь можно сразу пройти в кухню-гостиную и в спальню через гардеробную.

Для увеличения высоты экстремально низких потолков установили двери высотой 220 см, поставили длинные кухонные шкафы и положили на пол темную доску.

-2

Полноценная спальня с окном и распашными дверьми впускает в комнату естественный свет, а зеркальный эффект на стекле создает интимную обстановку.

-3

Балкон присоединять не стали, но заменили остекление и установили теплый пол. Кроме того, там стоят шкафы и имеется место для сушки белья.

-4

Отделка

На полу в кухне-гостиной и спальне лежит серая инженерная доска Wood Boutique, визуально раздвигающая стены. Для коридора выбрали светлый глянцевый керамогранит Atlas Concord, а для балкона – серо-коричневый матовый.

-5

Стены в квартире имеют светло-серый оттенок, представляющий собой выгодный фон для контрастной мебели и декора. Кухонный фартук выложен розово-перламутровой мозаикой из натуральной ракушки, которая прекрасно разбавляет бело-серые тона помещения.

-6

Хранение

Системы хранения в коридоре и гардеробной изготовлены на заказ. Шкаф с 3 секциями внешне напоминает единую стену с 3 дверьми: за первой скрывается шкаф для одежды, за второй – под обувь и сумки, а за третьей – гардероб. В гостиной установлен комод и стеллаж, а на кухне гарнитур в два яруса.

-7

В маленькой спальне находится кровать с ящиком для хранения, пуф с возможностью хранить покрывала и подушки, а также яркий комод.

На балконе стоит шкаф ИКЕА с гладильной доской и утюгом, а в санузле размещен навесной шкаф для косметики.

Освещение

В каждой комнате настроены различные виды освещения. Везде предусмотрены точечные светодиодные светильники, которые дают общий верхний свет.

Три подвеса над барной стойкой зрительно разделяют кухню и гостиную. За диваном расположены уютные настольные лампы.

В спальне нет верхнего освещения – вместо него на стенах красуются декоративные бра. На кухне рабочая поверхность освещается направленными потолочными светильниками и светодиодной подсветкой.

-8

Мебель

Вся мебель максимально функциональная. На кухне стоит гарнитур с глянцевыми фасадами, а в обеденной группе установлен стол с прозрачными стульями из пластика. Эти предметы не загромождают пространство и расширяют его.

-9

Белый комод с крыльями ангела и кофейный столик Kare в гостиной, а также желтый комод в спальне являются удачными акцентами, делающими обстановку динамичной.

-10

Декор и текстиль

Две картины в спальне заказчице отдали родители. Их рамы покрасили в серебристый, что придало интерьеру легкого лоска.

Раму у зеркала над диваном тоже перекрасили и повесили асимметрично. А картину за диваном дизайнер Наталия Чайка подарила хозяйке по собственной инициативе.

-11

Цвет и стиль

В интерьере преобладают белые, серые и розовые оттенки, создающие ощущение прохлады в изначально жаркой квартире. Обстановка получилась довольно эклектичной и индивидуальной.

-12

Если вам понравилась наша статья, пожалуйста, поставьте лайк и обязательно поделитесь со своими друзьями в соц.сетях 👇 👇 👇

Посмотрите наши матрасы и кровати для спальни и детской.
Подарок 🎁 1000 ₽ на первый заказ от 20 000 руб. Введите промокод ZEN при заказе на INMYROOM (действуют ограничения).

-13

Еще больше вариантов дизайна типовых российских квартир смотрите на нашем youtube-канале INMYROOM TV. А в нашем маркетплейсе вы можете купить тысячи красивых предметов мебели и декора.

Смотрите нас в Youtube, Instagram, Facebook, Вконтакте