Добавить в корзинуПозвонить
Найти в Дзене
INMYROOM

Ремонт двушки с нуля за 4 месяца! Как?! Невероятная красота и функционал без помощи дизайнера

Хозяева этой квартиры, искусствовед Тата с супругом-бизнесменом Александром, смогли оперативно превратить бетонную коробку в уютную и стильную двушку. Посмотрим, как выглядит жилье сейчас. МЕСТО: Москва, ЖК «Водный» МЕТРАЖ: 67 кв. м КОМНАТЫ: 2 ВЫСОТА ПОТОЛКОВ: 3 м БЮДЖЕТ: около 4 млн рублей ФОТО: Юрий Гришко Планировка Благодаря тому, что планировку делать не пришлось, ремонт квартиры занял всего 4 месяца. Однако весь интерьер был продуман буквально с 0. Цветовая гамма Основным акцентом в дизайне стали яркие оттенки всех помещений: бирюзовая кухня, черничная прихожая, зеленая спальня и голубой кабинет (а в дальнейшем – детская). Цветовую гамму для коридора супругам подсказали в бюро «Однушечка». Дизайнеры предложили сыграть на контрасте между темным холлом и светлыми комнатами, поэтому интерьер получился эффектным. Отделка Стройматериалы выбирали по принципу практичности. Так, подоконники со столешницей изготовили из искусственного камня, а пол в прихожей, ванной и на кухне выложили ке
Оглавление

Хозяева этой квартиры, искусствовед Тата с супругом-бизнесменом Александром, смогли оперативно превратить бетонную коробку в уютную и стильную двушку.

Посмотрим, как выглядит жилье сейчас.

МЕСТО: Москва, ЖК «Водный»
МЕТРАЖ: 67 кв. м
КОМНАТЫ: 2
ВЫСОТА ПОТОЛКОВ: 3 м
БЮДЖЕТ: около 4 млн рублей
ФОТО: Юрий Гришко

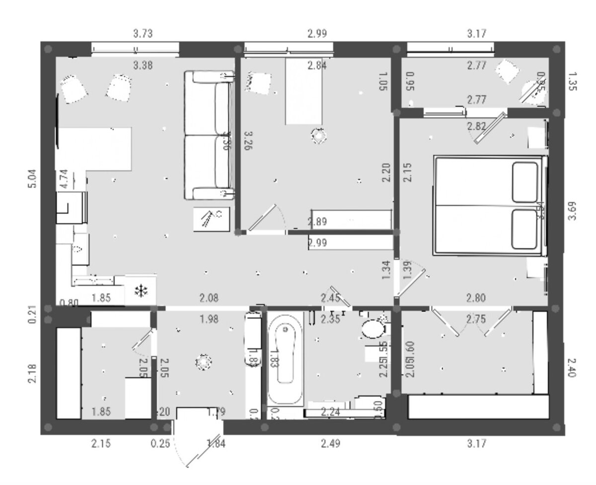
Планировка

Благодаря тому, что планировку делать не пришлось, ремонт квартиры занял всего 4 месяца. Однако весь интерьер был продуман буквально с 0.

-2

Цветовая гамма

Основным акцентом в дизайне стали яркие оттенки всех помещений: бирюзовая кухня, черничная прихожая, зеленая спальня и голубой кабинет (а в дальнейшем – детская).

-3
-4

Цветовую гамму для коридора супругам подсказали в бюро «Однушечка». Дизайнеры предложили сыграть на контрасте между темным холлом и светлыми комнатами, поэтому интерьер получился эффектным.

-5

Отделка

Стройматериалы выбирали по принципу практичности. Так, подоконники со столешницей изготовили из искусственного камня, а пол в прихожей, ванной и на кухне выложили керамогранитом.

-6

Напольная плитка в санузле и коридоре перекликается по орнаменту, что как бы объединяет оба помещения воедино. А бюджетная однотонная плитка Kerama Marazzi с рельефом выглядит премиально, несмотря на свою стоимость.

-7
-8

Системы хранения

В квартире организовали гардеробную и кладовую, а от шкафов-купе и открытых полок решили отказаться. С грамотной системой хранения хозяйке помогла ее подруга.

-9
-10

Мебель и техника

Идеи с подбором и расстановкой мебели Тата черпала с сайтов, журналов и готовых дизайн-проектов.

-11

Кухонный гарнитур приобрели у белорусского бренда эконом-класса, а комод из ИКЕА в прихожей перекрасили и оснастили новыми ручками.

-12

Настоящей изюминкой интерьера можно назвать необычные бра в виде носорогов по бокам от спального места.

-13
-14
-15
-16

Если вам понравилась наша статья, пожалуйста, поставьте лайк и обязательно поделитесь со своими друзьями в соц.сетях 👇 👇 👇

Посмотрите наши люстры, бра и подвесные светильники. Подарок 🎁 1000 ₽ на первый заказ от 20 000 руб. Введите промокод ZEN при заказе на INMYROOM (действуют ограничения).

-17

Еще больше вариантов дизайна типовых российских квартир смотрите на нашем youtube-канале INMYROOM TV. А в нашем маркетплейсе вы можете купить тысячи красивых предметов мебели и декора.

Смотрите нас в Youtube, Instagram, Facebook, Вконтакте