Добавить в корзинуПозвонить
Найти в Дзене
Бери и Строй

Проект для сборки каркасного дома

Задумали построить каркасный дом своими руками? Посмотрите на этот проект. Тут вы найдете схемы сборки всех стен и точное количество пиломатериала для них, а так же подробная карта распила доски. Общая площадь дома составляет 122м2. На плане этажа присутствует: План этажа Скачать проект каркасного дома можно по ссылке Подборка 5ти проектов каркасного дома Если вас интересует свой проект, пришлите его мне, схемы стен всегда бесплатно. Подписывайтесь на канал, ставьте лайки. Спасибо за прочтение!

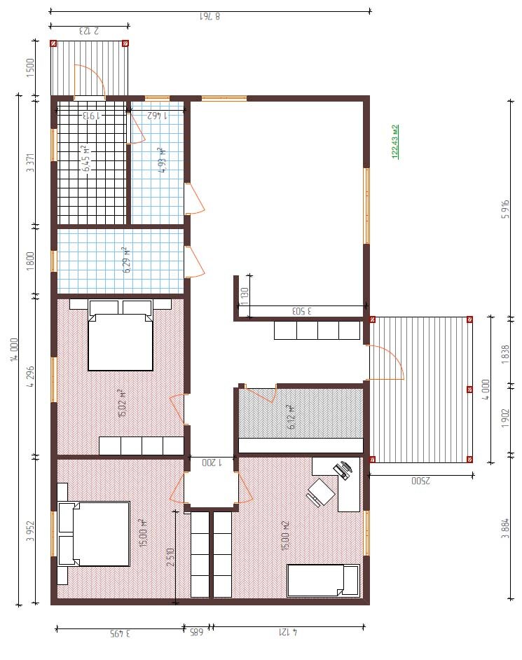
Задумали построить каркасный дом своими руками? Посмотрите на этот проект. Тут вы найдете схемы сборки всех стен и точное количество пиломатериала для них, а так же подробная карта распила доски.

Общая площадь дома составляет 122м2. На плане этажа присутствует:

  • Три спальни
  • Кухня-гостиная
  • Ванная
  • Туалет
  • Котельная

План этажа

-2

Скачать проект каркасного дома можно по ссылке

Подборка 5ти проектов каркасного дома

Если вас интересует свой проект, пришлите его мне, схемы стен всегда бесплатно.

Подписывайтесь на канал, ставьте лайки. Спасибо за прочтение!