Найти в Дзене
Бери и Строй

Проект каркасного дома, скачать!

Приветствую всех! Сегодня у нас проект каркасного дома в один этаж с тремя спальнями. Полезная площадь дома 119м2. По планировке, имеется: Понравился проект каркасника? Собираетесь строить? Скачивайте схемы сборки стен и вперед! Ссылка для скачивая тут Не стесняемся ставим лайки, подписываемся и получаем еще больше проектов и бесплатную консультацию по строительству.

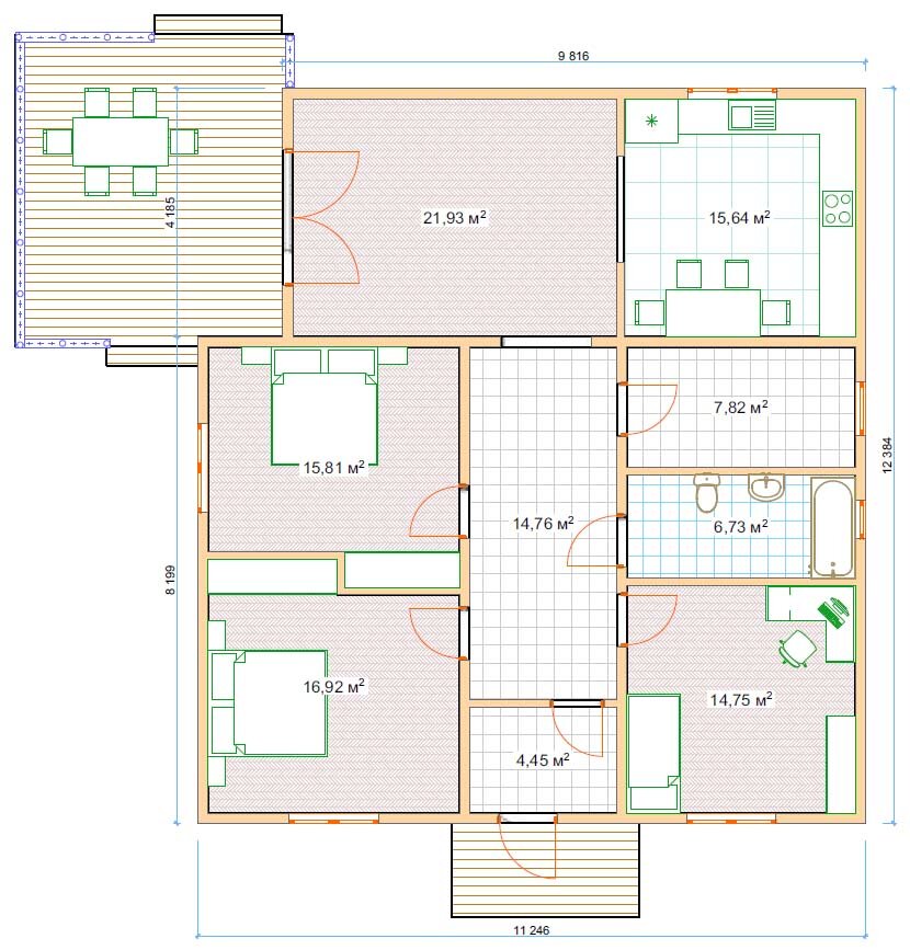
Приветствую всех! Сегодня у нас проект каркасного дома в один этаж с тремя спальнями. Полезная площадь дома 119м2.

По планировке, имеется:

  • Большая гостиная с выходом на террасу;
  • Кухня
  • Три спальни
  • Ванная
  • Котельная-кладовая
-2

Понравился проект каркасника? Собираетесь строить? Скачивайте схемы сборки стен и вперед! Ссылка для скачивая тут

Не стесняемся ставим лайки, подписываемся и получаем еще больше проектов и бесплатную консультацию по строительству.