Добавить в корзинуПозвонить
Найти в Дзене

Новый вид для самого популярного проекта дома. 76 кв.м. для постоянного проживания.

Речь идет и нашем проекте MINI 1, который пользуется очень хорошим спросом. Давно хотел поиграться с внешним видом этого домика и сделать наконец полноценный проект под него в каркасном исполнении. И вот наконец пришел заказчик, который согласился на такие вариации по этому дому. Показываю что получилось: Внешний вид изменился довольно кардинально. А вот планировка почти не изменилась, единственное что добавили, это полноценный хозблок, он же котельная. В общем мы этот дом рассматривает как 76 кв.м., но в нем есть и некий нюанс, в виде довольно большого балкона или антресоли, как кому больше понравится это помещение называть. Туда ведет небольшая лестница, со ступенями гусиный шаг. А вот в общем и внешний вид этого дома: Так же приглашаю вас посетить сайт нашего нового проекта, посвященный маленьким домам https://www.nashmini.com/ А основной наш сайт находится по адресу: https://homeinthewood.wixsite.com/home Если возникнут вопросы или предложения, если возникнет желание просто пообщ
Оглавление

Речь идет и нашем проекте MINI 1, который пользуется очень хорошим спросом.

Давно хотел поиграться с внешним видом этого домика и сделать наконец полноценный проект под него в каркасном исполнении. И вот наконец пришел заказчик, который согласился на такие вариации по этому дому.

Показываю что получилось:

Внешний вид изменился довольно кардинально. А вот планировка почти не изменилась, единственное что добавили, это полноценный хозблок, он же котельная.

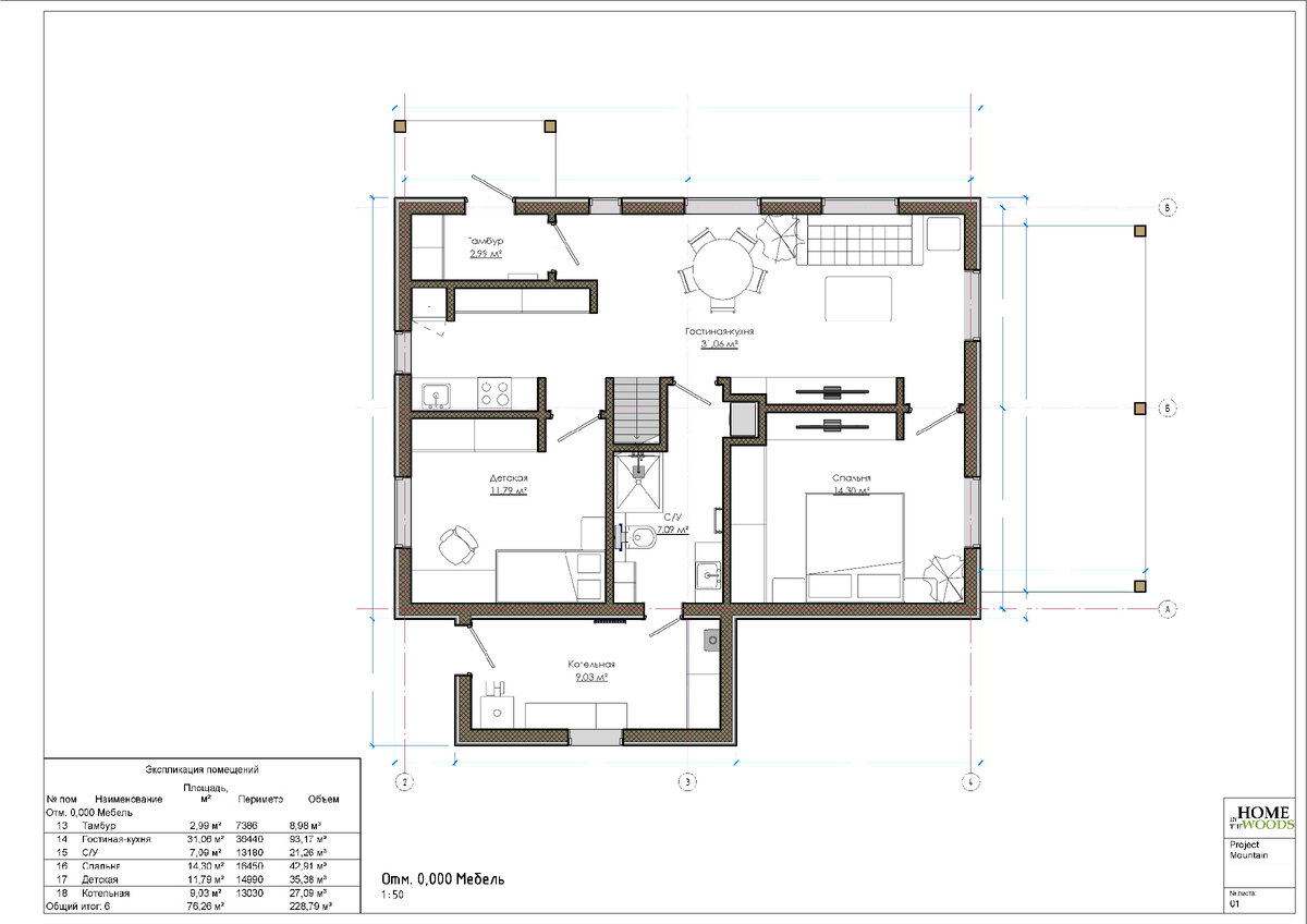
Планировка дома по первому этажу.
Планировка дома по первому этажу.

В общем мы этот дом рассматривает как 76 кв.м., но в нем есть и некий нюанс, в виде довольно большого балкона или антресоли, как кому больше понравится это помещение называть. Туда ведет небольшая лестница, со ступенями гусиный шаг.

А вот в общем и внешний вид этого дома:

Фасад стал уже не деревянный, теперь там мазанка и немного дерева.
Фасад стал уже не деревянный, теперь там мазанка и немного дерева.
Вдоль главного фасада появилась длинная веранда.
Вдоль главного фасада появилась длинная веранда.
Хотя и веранда основная осталась на месте.
Хотя и веранда основная осталась на месте.
Сзади дома уютно пристроилась небольшая котельная, она же хозблок.
Сзади дома уютно пристроилась небольшая котельная, она же хозблок.
Цвета на доме изменились до неузнаваемости, теперь довольно трудно признать в этом красавце, тот самый серенький MINI 1.
Цвета на доме изменились до неузнаваемости, теперь довольно трудно признать в этом красавце, тот самый серенький MINI 1.
Да, может немного непривычно многим будет видеть отливы одного цвета и основную кровлю, другого цвета, но на мой взгляд все это выглядит весьма гармонично.
Да, может немного непривычно многим будет видеть отливы одного цвета и основную кровлю, другого цвета, но на мой взгляд все это выглядит весьма гармонично.

Так же приглашаю вас посетить сайт нашего нового проекта, посвященный маленьким домам

https://www.nashmini.com/

А основной наш сайт находится по адресу:

https://homeinthewood.wixsite.com/home

Если возникнут вопросы или предложения, если возникнет желание просто пообщаться, добро пожаловать в комментарии или к нам на сайт, в раздел контакты.

Спасибо за уделенное внимание❗👍

Лайк и комментарий приветствуются❗👍

Подписывайтесь