Найти в Дзене
НЕДВИЖЕЛОГИЯ

Сравниваю перепланировку квартиры моей мечты с идеями соседей из таких же квартир. Часть 1

Всем доброго дня! В конце статьи перечень тем канала. Сегодня материал о ремонте. Ранее в ЭТОЙ СТАТЬЕ я подробно описала как сделала перепланировку квартиры моей мечты. Статья получилась резонансная (на сколько это возможно в рамках моего молодого канала), большое количество комментариев, мнений, советов. Кто-то ругал, кто-то хвалил. Но сегодня хочу поговорить об основных моментах, за которые меня ругали и провести сравнение с перепланировками таких же квартир у многих соседей снизу, сверху. Дом у нас 26-этажный, и я не знаю ни одной квартиры со 2-го по 26-ой этаж, где не было бы сделано перепланировки. У некоторых из соседей я была лично на осмотре квартиры. Многим делали проекты дизайнеры. В статье буду приводить сравнение тех или иных решений, а вам, уважаемые читатели решать, что интереснее и удобнее для жизни. А также интересно рассмотреть и сравнить проекты с точки зрения законности перепланировки. Итак, напомню, какая планировка была изначально у нас у всех от застройщика: Для
Оглавление
Всем доброго дня! В конце статьи перечень тем канала. Сегодня материал о ремонте.

Ранее в ЭТОЙ СТАТЬЕ я подробно описала как сделала перепланировку квартиры моей мечты. Статья получилась резонансная (на сколько это возможно в рамках моего молодого канала), большое количество комментариев, мнений, советов. Кто-то ругал, кто-то хвалил.

Но сегодня хочу поговорить об основных моментах, за которые меня ругали и провести сравнение с перепланировками таких же квартир у многих соседей снизу, сверху. Дом у нас 26-этажный, и я не знаю ни одной квартиры со 2-го по 26-ой этаж, где не было бы сделано перепланировки. У некоторых из соседей я была лично на осмотре квартиры. Многим делали проекты дизайнеры.

В статье буду приводить сравнение тех или иных решений, а вам, уважаемые читатели решать, что интереснее и удобнее для жизни. А также интересно рассмотреть и сравнить проекты с точки зрения законности перепланировки.

Итак, напомню, какая планировка была изначально у нас у всех от застройщика:

Для нашей семьи я сделала такую перепланировку (трёхкомнатная квартира 88,4 кв. м):

А что же в других квартирах? Вариант №1 выглядит так:

Из личного архива автора: соседский вариант №1.
Из личного архива автора: соседский вариант №1.

Рассмотрим подробнее, объясняю, что мне не понравилось и почему я для своей семьи такой вариант даже не рассматривала. С одной стороны планировка поспокойнее моей. От моей у многих начиналось головокружение. Однако, давайте разбираться.

Что не так в этой планировке:

1) Ванная.

Расширена в сторону спальни на то место, где у нас кабинет. Вроде бы ненамного, всего сантиметров на 60 сдвинута, но сделано это за счёт жилой зоны. Делать это категорически запрещено. Меня в предыдущей статье часто упрекали за снос стены между кухней и комнатой, дескать я мокрую зону (кухонную) расширила за счёт жилой, но это подмена понятий. По закону мы имеем право снести стену между кухней и комнатой, если на кухне НЕ ГАЗ и если кухонное оборудование никуда не переносится (та самая мокрая зона). А вот расширять ванную и санузел за счёт жилой зоны по закону нельзя. Только за счёт коридора и кладовки.

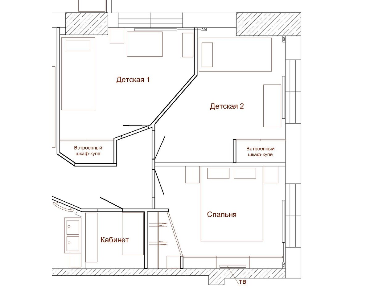
2) Сравниваем жилые комнаты.

  • Они все сделаны разной площади. Детям выделены неравноценные комнаты, что уже, на мой взгляд несправедливо. Мои дети не поняли бы такого подхода родителей. Это причина для обид, ревности и конфликтов. Одному ребёнку досталось 10,5 метров, а другому 13,5.
  • Но! В бОльшей детской комнате (Детская 2) часть метража у входа просто пропадает, получается какой-то непонятный коридор. Смысл какой в этом? Зато основная жилая часть этой комнаты в итоге меньше, чем в Детской 1 - посмотрите на расстояние от кровати до рабочего стола. У меня ощущение, что развернуться негде.
  • Одному ребёнку досталось два шкафа, а второму один. Хм...
  • Телевизоры в детских!!! Ноу камментс! Извините, но я противник телевизоров в детских, пусть закидают меня помидорами, но не понимаю я таких современных веяний дизайнеров. Детям заняться что ли нечем, кроме как в телевизоре глаза (и психику) ломать?
Из личного архива автора: укрупнённо показаны комнаты Варианта №1.
Из личного архива автора: укрупнённо показаны комнаты Варианта №1.
  • Абсолютно эгоистично родителям предоставлена самая большая комната. Это моё мнение! Зачем? Мы с мужем жили в подобной обстановке (в предыдущей статье об этом писала подробно, у нас была спальня 15,5 метров точно также с рабочим местом) и по себе знаю, что смысла в такой площади нет. Детям такая комната пригодилась бы гораздо больше, так как им нужен простор для игр и движения.
  • Можно возразить, что у нас тоже небольшие комнаты, но я специально сделала их практически равными по площади, а детям сделаны формы комнат такие, чтобы было посередине хорошее место для игр. И кстати у нас с мужем спальня самая маленькая получилась за счёт двух встроенных шкафов.
  • Сделано рабочее место в спальне. Нет, нет и ещё раз нет! Мы жили в такой обстановке и это было ужасно неудобно ДЛЯ НАС. Конечно если человек работает здесь один днём, то вариант хороший. Но в нашем случае, когда оба были на пятидневке в офисе, а за компьютером муж сидел поздно вечером/ночью, а я ложилась спать раньше, это было невыносимо! Засыпать под клацанье клавиш то ещё удовольствие!

3) Санузел, коридор, кладовая.

Из личного архива автора: вариант №1 соседской перепланировки.
Из личного архива автора: вариант №1 соседской перепланировки.
  • На мой взгляд и кладовая и санузел мелковаты и слишком срезаны треугольниками. Площади получились по 1,8 метра против наших по 2,5 метра.
  • Суммарно в квартире два унитаза: для многих моих комментаторов из предыдущего материала - это обязательное условие жизни. Для меня лично этот момент стал откровением, так как нам не нужен второй унитаз. Но, возможно, это плюс планировки.
  • Открытые полки с подсветкой (в углу кладовой) в Варианте №1 - выглядит красиво, дизайнерское решение интересное, но лишние пылесборники мне лично не нужны. Мы сделали в этом же углу нишу-шкаф побольше размером (и напротив такой же), куда помещается огромное количество вещей (лыжи, швабра, пылесос, ролики, коньки, шлемы и пр.). Очень удобно.
  • В коридоре не сделан шкаф в торце коридора (у входа в квартиру). Не понимаю, зачем терять это место, но я ни у кого из соседей не увидела там шкафа. Мы же в этом шкафу скрыли электрический счётчик (соседи перенесли его в большой шкаф-купе, который во всю длинную стену), а также сделали массу полок для обуви, шапок, шарфов, перчаток, сумок - вся та мелочь, которую не знаешь куда сунуть, когда приходишь с улицы.

4) Кухня-гостиная.

  • Балкон присоединён к комнате, снесена стена и оконный блок. Делать это запрещено.
  • Сделан остров (пусть даже и с местами для хранения, дополнительные шкафчики), за которым вся семья не может разместиться за трапезой. То есть это такое местечко для перекусов или завтраков на одного/двоих. А вот чтобы покушать всей семье, нужно переносить всю еду на балкон - и это, на мой взгляд, ужасно неудобно! Либо наматывать километраж, либо подавать через диван и этот остров тарелки принимающему с той стороны. Зачем такие сложности?
Из личного архива автора: вариант №1 соседской перепланировки.
Из личного архива автора: вариант №1 соседской перепланировки.
  • Как по мне мало простора в такой планировке, так как остров и диван занимают большую площадь, они стационарны, их не обойти по кругу, остаётся довольно небольшое пространство между диваном и телевизором, где на ковре играют дети (между прочим :)).
  • Кушать с высотным видом - не у каждого аппетит появится, а у кого-то возможно и продаёт напрочь :) Например, у нас 24 этаж и далеко не каждый гость готов даже элементарно выйти на балкон. Напоминаю, остекление в пол. Многие люди безумно боятся такой высоты.

5) Холл.

  • Холл, огромный холл. Бессмысленное пространство. Даже останавливаться на этом моменте грустно, потому что искренне не понимаю, зачем это нужно?!
Так как статья получается большая, то ВАРИАНТ 2 от соседей рассмотрю завтра в следующем материале. Там тоже будет о чём подумать.
Давайте обсуждать права ли я в своих мыслях, или может кому-то понравился такой вариант перепланировки?

Хронология статей на тему нашей самостоятельной стройки дома - ЗДЕСЬ

Хронология статей на тему наших самостоятельных ремонтов - ЗДЕСЬ

Всегда благодарна за участие в развитии канала (пальчик вверх, подписка), это стимулирует и дальше подробно рассказывать об этапах нашей стройки, ремонтов и пр. Быть может кому-то наш опыт пригодится!