Добавить в корзинуПозвонить
Найти в Дзене
Живем на юге

Зачем нам второй дом, если первый до ума не довели?

Руками строителей 2,5 года назад мы построили для себя газобетонный дом, обложенный облицовочным кирпичом. И живем в нем до сих пор без обоев и ламината. О том, почему так вышло, я пишу вот здесь:

Газобетонному дому 2 года. Какие вылезли проблемы? | Живем на юге | Яндекс Дзен (yandex.ru)

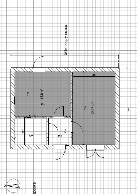
Домик наш небольшой, 6 на 8 м. План его такой:

План нашего дома
План нашего дома

Изначально планировалось, что это будет отапливаемая кухня, чтобы там расчинять птицу, крутить банки и выполнять всю грязную работу. На Кубани так обустроены почти все частные владения: отдельно дом и летняя кухня.

Построить сразу большой дом мы не могли - не хватило бы денег😢. А так думали двух зайцев убить: быстренько построить маленький, чтобы в нем временно жить, потом рядом строить второй.

Второй дом мы запланировали огромный: 10 на 12 метров. Нарисовали проект, рядом с ним выделили место еще под одно здание - гараж или магазинчик. Участок-то у нас ого-го! 50 соток!

Проект  10 на 12
Проект 10 на 12

Неопытные и наивные, напланировали золотые горы😁😁 .

Соответственно нашим планам маленький дом, или кухню, расположили по центру участка, чтобы слева поставить дом большой и гараж (магазин?).

Что мы имеем через 2,5 года или как прочистились наши мозги...

За это время мы с мужем обустраивали не только дом, но и участок вокруг него: выполнили планировку, засыпали щебнем (хотя бы... пока мечтаем о плитке), огородили клумбы бордюром, сделали забор.

Все это требует постоянного ухода, который мы недооценивали совсем. И, конечно, вложения огромных средств. Цветы на клумбе каждый день нуждаются в поливе из-за страшнейшей засухи и далеко не все ее выдерживают. Траву надо постоянно косить. Щебенку приходится обрабатывать раундапом и пропалывать, так как трава растет и на ней. И так далее...

Оценив расходы и усилия, мы решили, что просто не потянем все это физически и финансово еще один раз вокруг второго дома. Ведь там придется с нуля делать все тоже самое. Также поняли, что ходить то в дом, то в кухню - очень неудачная затея, а отапливать и поддерживать круглогодично в жилом состоянии по-любому придется оба дома.

Идея строительства на том месте, где мы запланировали изначально, медленно умерла естественной смертью 😂 .

НО нам в 35 квадратных метрах очень тесно!!!! И неудобно. Что же делать? Второй этаж не пристроишь - слабый фундамент. Ииииии...Все взвесив, мы решили пристроить второй дом к первому с другой стороны через коридор.

Окончательный проект, новая стройка переехала направо.
Окончательный проект, новая стройка переехала направо.

Ну , и конечно, уменьшить кубатуру. Уменьшились до размера 10 на 9,5.

В этом случае маленький дом будет использоваться по полной программе: там остается собственно кухня-столовая, гостевая комната и санузел. Единая отопительная система от газового котла также сэкономит наши деньги. Участок вокруг уже обустроен.

Только вот гложет и гложет, что 1/3 нашего поля, самая удачная для расположения на ней дома, самая красивая, остается пустовать. Что с ней делать? Муж предложил устроить там для детей футбольное поле.

Внимание! Мы приступаем к строительству этой весной! Не пропустите публикации об этом на канале! Ваше активное участие поможет нам избежать ошибок.

Уже завтра: фотографии панорамы нашего участка - как все выглядит прямо сейчас, место для нового дома, наши раздолья и будущее футбольное поле (все-таки жалко, что наш первоначальный план провалился 🤦‍♀️🤦‍♀️).

Ежедневная доза добра:

А что это вы подсыпали в стаканчик, леди Винтер???
А что это вы подсыпали в стаканчик, леди Винтер???

Оставайтесь с нами на канале Живем на юге и вскоре вы узнаете как учат в сельской школе и есть ли вообще жизнь заМкадом; поучаствуете в битве Москва vs провинция; сравните себя с ростовчанами, краснодарцами и прочими южными жителями.