Добавить в корзинуПозвонить
Найти в Дзене
НЕДВИЖЕЛОГИЯ

Как я сделала из стандартной и неудобной планировки квартиру своей мечты. Хитрая перепланировка своими руками

Оглавление
Всем доброго дня! В конце статьи перечень тем канала. Сегодня материал о ремонте.

На данный момент мы уже два года живём в трёшке в новостройке и делаем ремонт своими руками (с марта 2019 года). Подробные этапы этой весёлой долгоиграющей истории описываю на своём канале.

О трёхкомнатной квартире я начала мечтать давно, после рождения второго ребёнка, то есть 6 лет назад. В то время мы жили в двухкомнатной и она начинала сильно "жать в бёдрах" и дико раздражать. Причин на то было несколько:

  1. Неудачная планировка и невозможность что-либо изменить (но поняли мы это только спустя годы, изначально планировка казалась отличной).
  2. Отсутствие кладовки (с появлением детей необходимость назрела остро - коляски, самокаты, велосипеды и прочий скарб просто некуда деть).
  3. Проходной коридор. Это самое ужасное изобретение человечества :) Когда для прохода из комнат в кухню или санузлы нужно идти через грязную зону коридора (а маленькому ребёнку ползти).
  4. Солнечная сторона и постоянная жара в квартире - летом от солнца (на кондиционер у нас, в своё время просто не было денег), а зимой от безумно горячих батарей, которые не выключались, а поменять их так и не дошли руки (кошелёк).
  5. Маленькая ванная: по утрам столпотворение из 3-4-х человек у одной раковины - грустная история.
  6. Маленькая кухня, 12,6 кв. метров - и сейчас комментаторы закидают меня помидорами, так как для многих это большая кухня. Но! Когда приходят гости и набиваются в этой кухне, плюс вспоминаем о жаре в квартире, то история невесёлая.
  7. Дети у нас разнополые - и вот это самый, пожалуй, важный фактор. Захотелось детям сделать отдельные комнаты, а несущая стена посреди квартиры сделать это не позволила. Под детскую мы отвели самую большую комнату почти 19 кв. метров, но она длинная и узкая, да ещё и с очень маленьким окном. Помещение однозначно неудачное.
Фото автора: наша старая двушка, из которой спустя 11 лет жизни с удовольствием переехали.
Фото автора: наша старая двушка, из которой спустя 11 лет жизни с удовольствием переехали.

Некоторые фото той старой двушки можно посмотреть ЗДЕСЬ и ЗДЕСЬ. Это был наш первый самостоятельный ремонт, 2008 год - прошу строго наш дизайн не судить :)

Поэтому в своих мечтах о трёшке я рисовала такие важные параметры квартиры моей мечты:

  1. Отдельные комнаты детям.
  2. Большая кухня-гостиная, где будет собираться вся семья по праздникам, и хватит места всем друзьям.
  3. Непроходной/изолированный коридор.
  4. Обязательно наличие кладовки.
  5. Много иных мест для хранения.
  6. Ванная и туалет не стандартных мини-размеров, а побольше, двойная раковина в ванной и одинарная в санузле.
  7. Отдельный кабинет для мужа.
  8. Никаких несущих стен внутри квартиры, чтобы можно было сделать любую перепланировку на свой вкус.
  9. По метражу мы ориентировались на 80-100 метров, не более, так как бОльшие плодащи - это слишком серьёзные для нас затраты на покупку, ремонт, а в дальнейшем и бешеная квартплата.

Искали квартиру мы долго. Естественно кусался бюджет, но история про эти поиски и покупку - это тема отдельной статьи. В итоге нашли единственно возможный вариант, 88,4 кв. метра. Про переезд и начальные шаги ремонта в этой квартире писала ЗДЕСЬ.

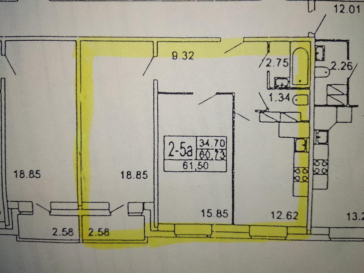
Исходная планировка квартиры от застройщика была такая (дом новый, квартира черновая, что добавило ей много баллов в моих глазах - не надо переделывать чужой ремонт):

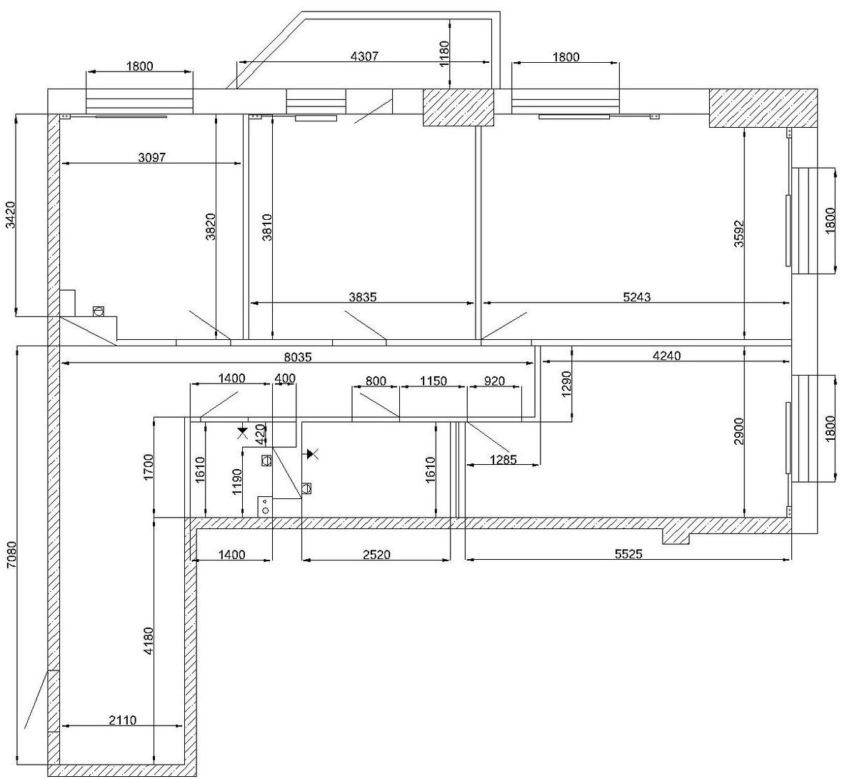
Квартира после перепланировки, жирным отображены все новые стены из пазогребня.

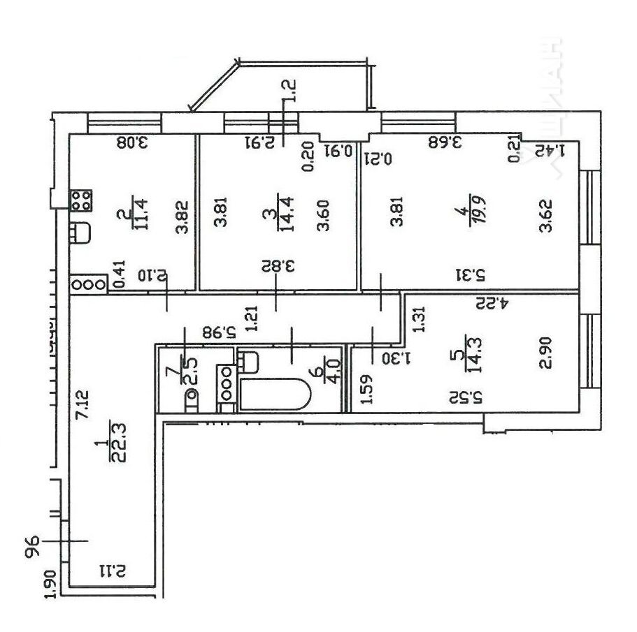
Для понимания распределения помещений план с мебелью:

После перепланировки (с мебелью). Из личного архива автора.
После перепланировки (с мебелью). Из личного архива автора.
  • Получились 3 одинаковые комнаты почти по 12 метров (детская 1, детская 2 и спальня), в каждой комнате запроектированы встроенные шкафы-купе.
  • Часть комнаты под номером 5 (спальня) отведена под кабинет мужа (ранее в эту часть вообще был сделан вход в комнату, непонятная мне потеря площади).
  • Санузел и ванная немного расширены за счёт коридора. Удалось установить просто огромных размеров ванную, а также сделать двойную раковину (моя мечта!), теперь у нас нет утренних драк между детьми за место у неё :) Также в туалете запроектирована полноценная раковина, что тоже для нас необходимо.
  • В коридоре выделена зона для кладовой, в ней же расположена система водоснабжения от кухни.
  • Также в коридоре сделаны оригинальные треугольные шкафы - очень вместительные для самых разных предметов быта.

  • Кухня объединена с частью жилой комнаты - получилась кухня-гостиная.
  • В длинном и довольно бессмысленном коридоре сделаны огромные шкафы-купе.
  • На балконе остекление в пол со всех сторон - там будет мой кабинет и зона для релакса (24 этаж если что :))).

И предвосхищая вопросы и критику:

  1. Все изменения в квартире произведены с соблюдением всех действующих норм и правил.
  2. Никакие несущие стены не были тронуты (внутри квартиры их и не было, только по периметру).
  3. Санузел и ванная расширены за счёт коридора - это разрешено.
  4. Балкон не присоединён к комнате.
  5. Кухня расширена за счёт жилой комнаты, если в квартире не газ, а электроплита, то это разрешено.

Вот такую идеальную для себя квартиру я сделала своими руками. Над этой планировкой я работала долго, выверяла каждый сантиметр. В итоге, прожив в этой квартире уже два года, я могу честно сказать - не пожалела ни об одном решении. Очень удобно здесь всё.

А то, в каком виде эта квартира была запроектирована застройщиком, никуда не годится (см. первую планировку).

Единственное, что напрягает, но не меня, а мужа - это ломаные углы, под них выпиливать потолочные и напольные плинтусы чуть сложнее, чем под 45 градусов (так как ремонтируемся мы самостоятельно) :)
А ещё гости путаются в наших лабиринтах. Говорят: "Голова начинает кружиться от ваших непонятных стен" :)

А вообще обожаю это дело - планировки и перепланировки. Увлекательнейшее занятие! :)

Продолжение следует...

Хронология статей на тему нашей самостоятельной стройки дома - ЗДЕСЬ

Хронология статей на тему наших самостоятельных ремонтов - ЗДЕСЬ

Всегда благодарна за участие в развитии канала (пальчик вверх, подписка), это стимулирует и дальше подробно рассказывать об этапах нашей стройки, ремонтов и пр. Быть может кому-то наш опыт пригодится!