Добавить в корзинуПозвонить
Найти в Дзене
Павел Бибиксаров

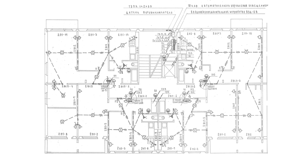
Схема проводки в панельном доме. Серия 1-464-д83.

В этой статье речь пойдет о такой важной теме, как электрическая проводка в панельном доме. А если быть точнее, мы разберемся с устройством электропроводки на примере дома серии 1-464Д-83. Почему именно эта серия? Такие дома являются одними из самых распространенных в российских регионах. Знакомый дом?
1-464д — (83, 84, 85) – всесоюзная серия домов, которая была спроектирована в далеком 1966
Оглавление

В этой статье речь пойдет о такой важной теме, как электрическая проводка в панельном доме. А если быть точнее, мы разберемся с устройством электропроводки на примере дома серии 1-464Д-83. Почему именно эта серия? Такие дома являются одними из самых распространенных в российских регионах. Знакомый дом?

-2

1-464д — (83, 84, 85) – всесоюзная серия домов, которая была спроектирована в далеком 1966 году. Производились они на местных ДСК и застраивались в период с 1966 по 1998 гг. В зависимости от года и места застройки некоторые детали в этих домах могут незначительно отличаться (вид фасада, расположение вентиляционной шахты, расположение стояков и т.п.).

Над заголовком статьи находится схема проводки в панельном доме серии 1-464-д83 взятая из альбома технических решений 1966 года. На ней много обозначений и обычному человеку читающему данную статью такая схема может показаться непонятной. Уберем все лишнее и переведем схему в более понятный вид. Так как нас интересуют только кабельный трассы мы не стали обозначать выключатели, розетки и лампы освещения.

-3

Вот и вся этажная  схема проводки в панельном доме. На схеме не обозначен этажный электрощит. Это не ошибка, в зависимости от дома щиты могут располагаться в различных местах.

Черными линиями обозначены кабельный трассы. Кабель прокладывается в пустотах плит по потолку и стенам. Видите диагональные линии? Нет, это тоже не ошибка. В таких домах кабель прокладывается по диагонали наикратчайшим путем. Круглыми точками обозначены места соединения проводов (распределительные коробки). Располагаются распределительные коробки вверху панельной плиты под самым потолком. Обычно такие коробки легко найти – они закрыты пластиковой выпирающей крышкой. Но довольно часто встречаются распределительные коробки, заделанные штукатурным раствором.  Найти их можно обычным простукиванием, благо сейчас у Вас есть схема.

Проводка в стенах

Теперь рассмотрим, каким образом прокладывается кабель в стенах. Для этого опять же, заглянем в историю и обратимся к альбому технических решений.

-4

Так как нас интересует только электропроводка, убираем со схемы все лишнее.

-5

Как мы видим, в стенах кабель также прокладывается по кратчайшему пути, по диагонали.

Интересные моменты

Теперь пару слов об особенностях разводки. Возможно многие вещи покажутся вам странными, но попрошу не удивляться.

В таких домах плохая звукоизоляция. Но проблема не только в тонких стенах и полах. Главный минус таких домов – сквозные розетки. Причем сквозные они не только в вашей квартире. Открутите розетку в смежной с соседом стене. Что вы видите?

-6

Правильно – розетку соседа. Вот вам и первый источник звука.

Второй бонус к звукоизоляции – распределительные коробки. Да, они тоже сквозные. Демонтируете свою распределительную коробку – получаете доступ к проводке соседа.

Но не стоит огорчаться, проблема со смежными розетками и распределительными коробками легко решается. При устройстве новой инженерной электрики вся старая проводка удаляется, а распределительный коробки и выключатели попросту заделываются. Меньше сквозных отверстий – меньше шума.

Надеюсь данная статья помогла пролить свет на устройство инженерной электрики в вашем доме.