Добавить в корзинуПозвонить
Найти в Дзене
INMYROOM

Бомбическая квартира в хрущевке. Спойлер: расширили санузел за счет коридора и уместилось ВСЕ!

Предлагаем вам своими глазами увидеть тотальное преображение унылой двушки от дизайнера Евгении Матвеенко.
Оглавление

Типовые квартиры в хрущевских постройках не отличаются высоким уровнем уюта. В корне изменить ситуацию поможет грамотный ремонт, который выполнен руками профессионалов.

Предлагаем вам своими глазами увидеть тотальное преображение унылой двушки от дизайнера Евгении Матвеенко.

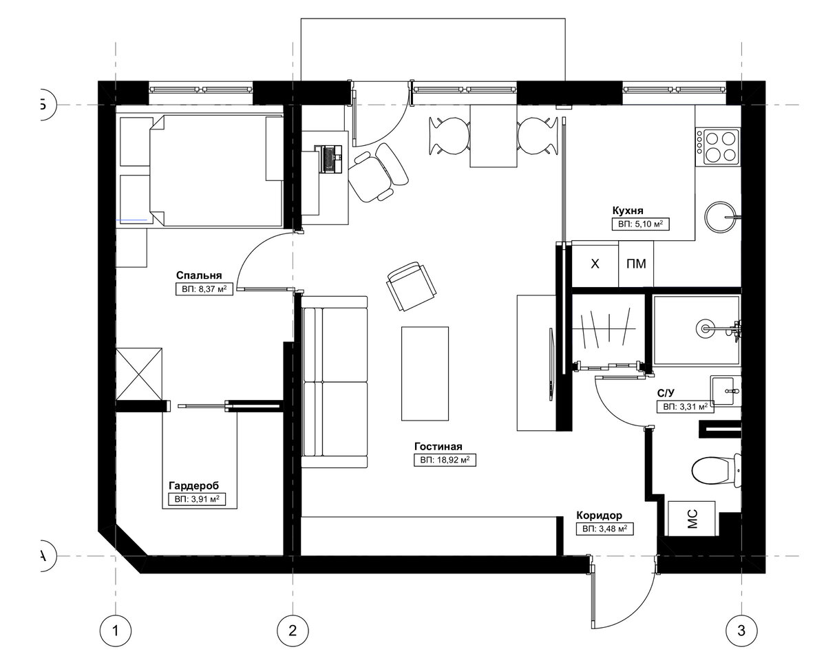
Перепланировка

Обеденный стол из кухни перенести в гостиную, а в прихожей поставили встроенный шкаф. Визуально обеденную зону отделили от рабочей зоны посредством раздвижной стеклянной перегородки, которая при необходимости прячется в стену.

-2
-3
-4

Так называемую «комнату-вагон» частично переоборудовали под гардеробную и частично – под спальню. Вдоль окна поставили кровать с выдвижными ящиками, куда можно складывать вещи.

-5
-6

Увеличить площадь санузла удалось за счет коридора. Санфаянс со стиралкой убрали за перегородку, поэтому они не мешает во время водных процедур.

-7

Гардеробная

На верхних полках подвесных кухонных шкафов есть место для хранения бокалов, бытовой техники и всякой мелочи.

В большом шкафу в прихожей расположена вместительная секция под антресоль – туда поместятся сезонные принадлежности.

В ванной также имеются дополнительные ниши для гигиенических средств и тому подобной атрибутики.

-8

Отделка

Интерьер практически полностью реализован с применением натуральных материалов с природными текстурами.

Санузел отделали керамогранитом под мрамор и древесину, стены в комнатах покрасили краской, а пол оформили паркетом.

-9
-10

Декор

Пространство выполнено в нейтральных оттенках – сером и белом, с небольшими горчично-желтыми вкраплениями.

Мебель подобрана только самая необходимая, чтобы не загромождать квадратные метры. Кровать, диван, стеллажи и торшер нашли в ИКЕА.

-11

Необычным декоративным решением стала тайская картина с розовым слоном, которую повесили в гостиной. Во-первых, она перекликается с остальной цветовой гаммой, а, во-вторых, напоминает о путешествиях в экзотические страны.

Если вам понравился интерьер, следите за нашими публикациями. Скоро раскроем небольшие секреты обустройства этой кухни в хрущевке.

Посмотрите наши матрасы и кровати для спальни и детской.
Подарок 🎁 1000 ₽ на первый заказ от 20 000 руб. Введите промокод ZEN при заказе на INMYROOM (действуют ограничения).

-12

Ставьте лайк и подписывайтесь на канал INMYROOM.RU , чтобы видеть наши публикации в своей ленте!

Еще больше вариантов дизайна типовых российских квартир смотрите на нашем youtube-канале INMYROOM TV . А в нашем маркетплейсе вы можете купить тысячи красивых предметов мебели и декора.

Смотрите нас в Youtube , Instagram , Facebook , Вконтакте