Найти в Дзене
Блог недостроителя

Как рассчитать опалубку на ленточный фундамент. Ее стоимость. И что выгоднее? Доска или ламинированная фанера.

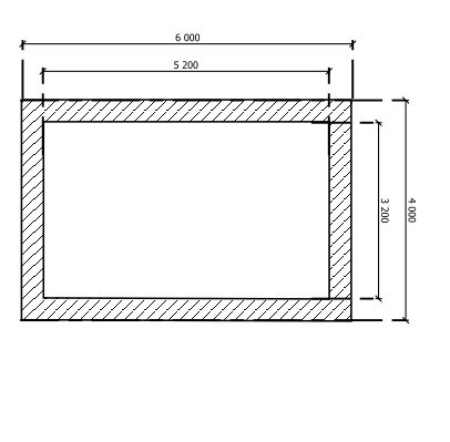
Фундамент 6м на 4м ( высота ленты 600 мм) для примера.
Для опалубки чаще все используют доску, либо ламинированную фанеру. Как правило - опалубку монтируют не на всю глубину планируемого фундамента, для экономии материала.
Для начало нужно вычислить периметр внешний стенок фундамента.
Тут все просто:
Оглавление

Фундамент 6м на 4м ( высота ленты 600 мм) для примера.

Для опалубки чаще все используют доску, либо ламинированную фанеру. Как правило - опалубку монтируют не на всю глубину планируемого фундамента, для экономии материала.

Для начало нужно вычислить периметр внешний стенок фундамента.

Тут все просто:

(6000+4000)*2=20000мм или 20 м

Далее не стоит забывать про внутренние стенки. Нам необходимо вычислить периметр внутренних стен. Не забывайте, что внутренние стены по длине меньше наружных. Из длины нужно вычесть толщ. фундамента. У нас в примере толщ. стенки фундамента 400 мм.

(6000-(400+400)+4000-(400+400))*2=168000мм или 16,8м

Далее общая длина опалубки 20+16,8=36,8м

36,8(Р)* 0,6(h) = 22,1 м2 опалубки.

-2

Ламинированная опалубка

А теперь высота лента. Для таких маленьких фундаментов, как правило, стандарт 600мм. Очень удобны готовые ламинированные листы для опалубки, которыю можно купить или взять в аренду. Вам нужно просто найти те, которыя будут соответствовать вашей высоте. У нас в примере – это 600 мм. Вам необходимо приобрести не менее 36,8м.п. И стыковать либо втык втык, либо в нахлест, если берете больше по метражу.

Стоимость:

В аренде она приобретается в квадратах. В продаже за лист.

Лист ламинированной фанеры толщ. 12 мм за 1м2 примерно 450 рублей.

Наши 22,1 м2 обойдуться нам 9945 рублей.

В нашем регионе стоимость аренды 1м2 25 рублей в сутки.

На 5 дней аренды:

36,8м(Р)*0,6м( h )*25руб*5дней=2760 рублей.

Экономично. Купить естественно дороже. И если у вас нет идей, куда вы потом приобщите эту опалубку, то лучше взять в аренду.

Опалубка из доски.

Нам понадобиться ДОСКА 6-метровая и 4-метровая доска 150мм*50мм или 200*50. Нужно, рассчитать сколько досок по количеству нам нужно:

600( h )/150=4

600( h )/200=3

Получается или 4 или 3 доски на каждую сторону в зависимости, какую вы купите.

-3

Не забывайте про внутренние стены, и нужно понимать, что обрезки останутся. И если вы возьмете все 6-метровые доски, то обрезок останется больше. Стыковать по 2 метра не рекомендуется. Бетон может выдавить опалубку.

Итак, нам необходимо:

Если доска 150*50

4(доски)*4 стороны(как внутренние, так и наружные) = 16 шт 6-метровых и 16 шт 4-метровых

Если доска 200*50

3(доски)*4 стороны(как внутренние, так и наружные) = 12 шт 6-метровых и 12 шт 4-метровых

Стоимость:

В нашем регионе стоимость обрезной доски по штучно:

150*50*4000 – 314,40 рублей
150*50*6000 – 471,60 рублей
200*50*4000 – 419,20 рублей
200*50*6000 – 628,80 рублей

Итого на наш фундамент 4м на 6м:

16*471,6+16*314,4=12576 рублей

12*419,2+12*628,8=12576 рублей.

Приобретая доску не по штучно, а по кубам, вы не значительно уменьшите сумму.

0,6( h )* 0,05(толщ. Доски)* 6м(длина)*4(стороны)+ 0,6( h )* 0,05(толщ. Доски)* 4м(длина)*4(стороны)=1,2м3

Стоимость 1 м3 в нашем регионе 9500 рублей.

Наши 1,2 м3 обойдутся вам в 11400 рублей.

Путем расчетов наглядно видно, что экономичнее и проще брать в аренду ламинированную опалубку.

  • Удачи вам в вашем строительстве. Если вам понравилась статья, ставьте лайк, подписывайтесь на мой канал, ваше внимание будет вдохновлять меня на новые подвиги в написание статей))))))