Друзья, всем привет!
В этой записи я вам покажу проект каркасного дома размером 7х11,6 м. с большой открытой террасой.
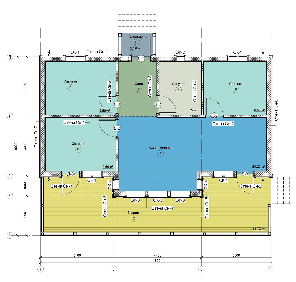
По традиции начнём с планировки. Как видите на фото ниже, в доме расположены следующие помещения:
1. Крыльцо 2,19 м2
2. Терраса 29,72 м2
3. Холл 5,34 м2
4. Кухня-гостиная 24,2 м2
5. Спальня 9,6 м2
6. Спальня 9,6 м2
7. Санузел 5,75 м2
8. Спальня 8,53 м2
Общая площадь с учётом крыльца и террасы получается 94,92 м2.
Особенностью данного дома, является наклонный потолок, выполненный по стропилам.
Фундамент дома выполнен из винтовых свай диаметром 108 мм. с наваренными оголовками 200х200 мм. Сверху, на оголовки устанавливается деревянный ростверк в виде составных балок собранных из доски 45х195 мм.
Цокольное перекрытие собирается из доски 45х195 мм., с утеплением 200 мм между балок перекрытия. Сверху на балки укладывается чёрный пол из плит ОСП-3 толщиной не менее 18 мм.
Наружные стены запроектированы из доски 45х195. В качестве способа обеспечения жёсткости дома, предусмотрена врезка укосин в наружные и внутренние стеновые панели дома. Утепление стен между стоек каркаса составляет 200 мм. Что бы получить толщину утепления наружных стен в 250 мм, вы можете выполнить горизонтальную обрешётку из бруска 50х50 снаружи или изнутри дома с дополнительным слоем утеплителя.
Стропила дома выполнены из доски 45х195 мм. с утеплением 200 мм. между стропил. Что бы получить толщину утепления крыши в 250 мм, вы можете выполнить дополнительную обрешётку из бруска 50х50 изнутри дома с дополнительным слоем утеплителя 50 мм.
Далее уже идут этапы наружной и внутренней отделки, которую каждый может сделать на свой вкус.
Друзья, скачать данный проект и ведомость материалов к нему, вы можете у меня на сайте по ссылке https://www.karkasproekt.com/kd-68
Если вам понравился проект, не забудьте поставить лайк и подписаться на канал.
Если вам нужен индивидуальный проект каркасного дома переходите по ссылке https://www.karkasproekt.com/design
Все типовые проекты можно посмотреть на моём сайте в каталоге https://www.karkasproekt.com/catalog-c7tk
С уважением, Дмитрий.
