Найти в Дзене
INMYROOM

В тесноте, да не в обиде: на 16 м² разместили кухню, столовую, спальню, гостиную и кабинет. ВИДЕО

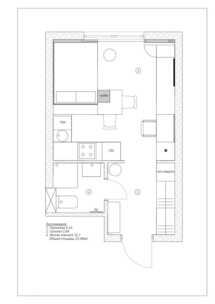
23 квадратных метра – несомненно, ограниченный метраж. Но он вполне подходит для обустройства комфортного жилого пространства. Дизайнер оформила студию в скандинавском стиле и уместила на 15,7 квадратах аж пять полноценных зон. Посмотрим, как это было реализовано.
Оглавление

Эта небольшая квартира-студия предназначена для молодой пары. 23 квадратных метра – несомненно, ограниченный метраж. Но он вполне подходит для обустройства комфортного жилого пространства. Дизайнер Анна Смолякова смогла оформить студию в скандинавском стиле и уместить на 15,7 квадратах аж пять полноценных зон. Посмотрим, как это было реализовано.

-2

Концепция

В квартире старались расположить все по максимуму. За основу дизайн-проекта была взята линеарная графика и ритмы. А чтобы интерьер выглядел целостным, важна каждая деталь – именно на этом и делали акцент.

Малогабаритку планировали сделать многофункциональной, но при этом оставить компактной. Такое решение прекрасно подходит современным и амбициозным людям, которые ценят свое время и деньги.

-3

Кухня

Отдельного внимания заслуживает кухонная зона: ее отделили от спальни перегородкой из вертикальных реек. Чтобы не сыпался мусор с рабочей поверхности, смонтировали бортик-фартук. Дневной свет поступает в помещение через рейки под натяжным потолком, что делает пространство освещенным даже в пасмурные дни.

-4

Кухонный гарнитур со всей необходимой встроенной техникой изготовили на заказ. Он включает в себя посудомоечную и стиральную машину, плиту с 4 конфорками, духовку и раковину. Столешница плавно переходит в обеденный стол, внизу которого вмонтирована прикроватная тумба.

Верхние кухонные модули установлены до потолка, поэтому интерьер смотрится органично. Просторная варочная поверхность дает возможность поставить чайник и СВЧ, а холодильник располагается в нише возле стола и не загромождает квадратные метры. Таким образом на кухне предусмотрено достаточно мест для хранения.

-5

Отделка

Готовая отделка в квартире уже была, поэтому в ходе ремонта изменили цвет стен, на полу положили бесшумный и влагостойкий кварц-винил, а также установили матовые натяжные потолки со встроенным освещением. Комнаты выполнили в довольно спокойной гамме, с редкими включениями серо-зеленых и персиковых оттенков.

На кухне использовали 3 цветовых решения: молочные фасады в нижней части, оттенок капучино в столешнице и темно-ореховую горизонтальную текстуру. В качестве акцента выступает асимметричная ниша с торцом, полками из стекла и подсветкой.

-6

Верхнее освещение создается с помощью встроенных спотов для основного рассеянного света, а локальное генерируется подвесным светильником Maytoni в середине стола и бра у кровати.

Вместо душевой в санузле обустроили раковину с зеркалом, а вот белую отделку стен оставили в исходном виде.

-7
-8

Мебель

Напротив вписанной в нишу кровати зафиксирован телевизор на панели, поэтому смотреть его очень удобно после рабочего дня или перед сном.

-9
-10
-11
-12

В гостиной стоит шкаф с полками и местом для ТВ, а также с мини-диваном для 2-3 человек. Прямо под этим диваном размещены выдвижные ящики, в которых можно хранить необходимые предметы. Это комфортная зона для работы удаленного формата.

-13

Шкаф в прихожей заказали по дизайнерским эскизам. В нем 3 модуля: два для хранения вещей на штангах и один для бытовых предметов. Благодаря зеркальным дверям, он почти не выделяется в общем пространстве.

-14
-15

Итак, давайте посчитаем сколько функциональных зон в этой уютной кухне-гостиной удалось разместить дизайнеру? Пишите в комментариях сколько у вас получилось! И насколько удобно было бы жить в таком интерьере?

Посмотрите наши обеденные, барные и офисные стулья.
Подарок 🎁 1000 ₽ на первый заказ от 20 000 руб. Введите промокод ZEN при заказе на INMYROOM (действуют ограничения).

-16

Ставьте лайк и подписывайтесь на канал INMYROOM.RU , чтобы видеть наши публикации в своей ленте!

Еще больше вариантов дизайна типовых российских квартир смотрите на нашем youtube-канале INMYROOM TV . А в нашем маркетплейсе вы можете купить тысячи красивых предметов мебели и декора.

Смотрите нас в Youtube , Instagram , Facebook , Вконтакте