Добавить в корзинуПозвонить
Найти в Дзене

Зачем нужны чертежи в дизайн проекте квартиры или дома?

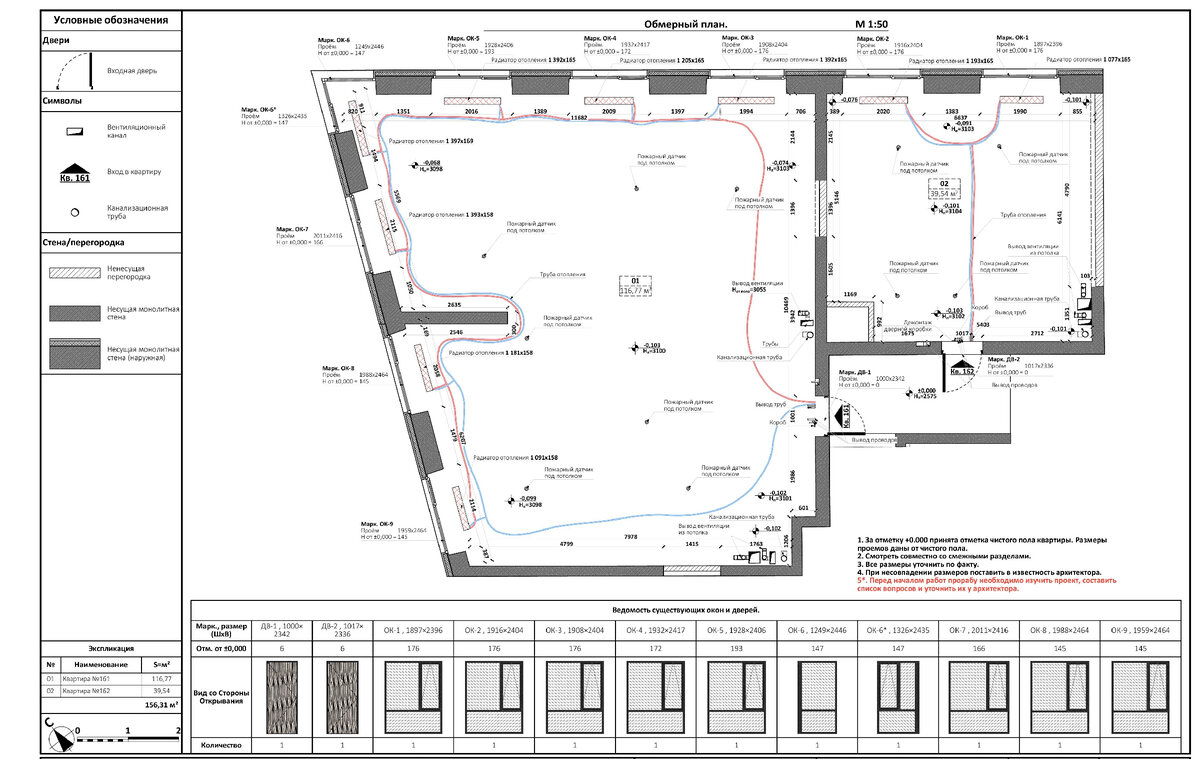
Ценность дизайн проекта – это грамотные чертежи. Распространенная ошибка владельцев квартир и домов – заказывать у дизайнера интерьера только визуализацию и принимать работу без чертежей. Чертежи – это не просто набор линий, это набор опыта, знаний эргономики, понимания комфортных размеров, оптимальной технической реализации и т.д. Согласитесь, что комфорт проживания имеет такое же значение, как и внешняя красота интерьера. Специалист понимает значение эргономики в дизайн проекте, и прежде чем приступить к работе над дизайн проектом, он узнает о привычках, образе жизни, характере и физиологических особенностях владельцев. Грамотные чертежи позволяют реализовать ремонт без ошибок, так как по ним будут работать строители, и учитывают расположение каждой детали в интерьере. Дизайн проект, как правило, включает в себя следующие чертежи: - обмерный план или план существующего помещения. Он позволяет оценить существующую планировку, возможные изменения и изучить инженерные особенности объект

Ценность дизайн проекта – это грамотные чертежи. Распространенная ошибка владельцев квартир и домов – заказывать у дизайнера интерьера только визуализацию и принимать работу без чертежей.

Чертежи – это не просто набор линий, это набор опыта, знаний эргономики, понимания комфортных размеров, оптимальной технической реализации и т.д.

Согласитесь, что комфорт проживания имеет такое же значение, как и внешняя красота интерьера. Специалист понимает значение эргономики в дизайн проекте, и прежде чем приступить к работе над дизайн проектом, он узнает о привычках, образе жизни, характере и физиологических особенностях владельцев.

Грамотные чертежи позволяют реализовать ремонт без ошибок, так как по ним будут работать строители, и учитывают расположение каждой детали в интерьере.

Дизайн проект, как правило, включает в себя следующие чертежи:

- обмерный план или план существующего помещения. Он позволяет оценить существующую планировку, возможные изменения и изучить инженерные особенности объекта.

- демонтажный план, который содержит схему и очередность монтажа перегородок, пола и т.д.

-2

планировочное решение, где указаны места для расстановки мебели и техники.

-3

А также: план освещения, план привязки сантехнического оборудования, план привязки розеток и выключателей, план потолка, план пола, план сантехники, план стен и т.д.в зависимости от типа объекта и проводимых там работ. Каждый из чертежей содержит точные размеры, инструкции и отображает все детали каждого помещения.

План освещения (привязки)
План освещения (привязки)

Размеры – это важно. Недавно к нам обратилась клиентка на консультацию с вопросом: «Какого размера должна быть ниша?». Ни строители, ни дизайнер интерьера, который разрабатывал для нее дизайн проект, не могли ответить на вопрос и сказали, что она сама должна решить. Для нас сложно представить, как обыватель может знать ответы на такие вопросы. Мы объяснили, что стандартная ниша – 2 м, 100 см, и что можно сделать нестандартного размера, но каждые 10 см это плюс 20% к стоимости ниши. Конкретно в ее случае, оптимально бы выглядела ниша размером 2 м 300 см, но это плюс 40% к стоимости. Мы рассказали об этом и предоставили выбор.

Это еще одна демонстрация, почему чертежи и размеры важны, потому что без них не только строители не смогут выполнить свою работу качественно, но и высока вероятность того, что увеличение запланированного бюджета будет неизбежным.

Присоединяйтесь к нашим социальным сетям!

VK

Телеграм

YouTube

Подробнее о нашей дизайн студии, команде и услугах, вы можете узнать на нашем сайте.

#дизайнеринтерьера #планировочноерешение #дизайнпроект #чертежиквартиры #чертежипланировки #обмерныйплан #разработкадизайнпроекта #рабочиечертежиквартиры #планировкаквартиры #улучшениепланировки