Найти в Дзене
INMYROOM

Двухэтажный дуплекс 80 м² для неординарной заказчицы

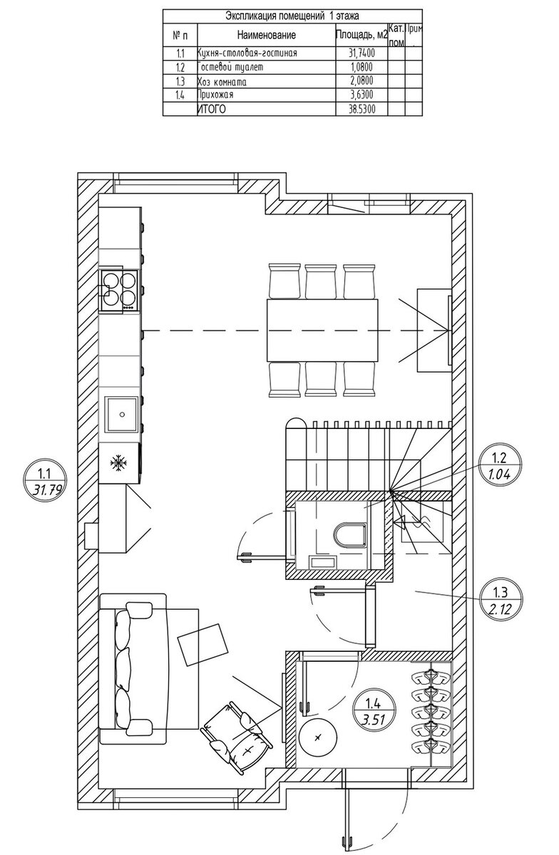
Вкратце Дизайнер Екатерина Проскурина из KPDesign оформила двухэтажный дуплекс в Подмосковье для двух человек и кота. Источником вдохновения для создания эклектичного интерьера стала заказчица — взрослая женщина, неординарная и разносторонняя, любящая путешествия и жизнь во всех проявлениях. В функциональном плане разместили в имеющемся пространстве кухню-гостиную-столовую, спальню и кабинет. В отделке и мебели ставку сделали на необычные яркие сочетания: например, зеленого с насыщенным розовым. Подробности Дуплекс — это дом на двух хозяев, с двумя разными входами. У этого дуплекса есть собственный небольшой участок земли с выходом с задней стороны дома для устройства террасы, барбекю, мини-сада. На первом этаже произвели перепланировку: поменяли местами кухню и столовую, открыли пространство под лестницей. Трехконтурный котел разместили в составе кухонного гарнитура, что позволило не выделять под него отдельное помещение. Под лестницей разместили туалет и стиральную машину. На второ
Оглавление

Вкратце

Дизайнер Екатерина Проскурина из KPDesign оформила двухэтажный дуплекс в Подмосковье для двух человек и кота. Источником вдохновения для создания эклектичного интерьера стала заказчица — взрослая женщина, неординарная и разносторонняя, любящая путешествия и жизнь во всех проявлениях. В функциональном плане разместили в имеющемся пространстве кухню-гостиную-столовую, спальню и кабинет. В отделке и мебели ставку сделали на необычные яркие сочетания: например, зеленого с насыщенным розовым.

 📷
📷

Подробности

Дуплекс — это дом на двух хозяев, с двумя разными входами. У этого дуплекса есть собственный небольшой участок земли с выходом с задней стороны дома для устройства террасы, барбекю, мини-сада. На первом этаже произвели перепланировку: поменяли местами кухню и столовую, открыли пространство под лестницей. Трехконтурный котел разместили в составе кухонного гарнитура, что позволило не выделять под него отдельное помещение. Под лестницей разместили туалет и стиральную машину. На втором этаже возвели стены, разместив там две комнаты и ванную.

 📷
📷

 📷
📷

Для кухни выбрали линейный гарнитур: газовый котел поместили в шкаф, который визуально является продолжением гарнитура. Выдержали симметрию в конструкции: по краям гарнитура сделали высокие шкафы с бытовой техникой, в центре — рабочая зона. Под варочной поверхностью находятся ящики для ложек и вилок. Саму варочную поверхность немного сдвинули, чтобы освободить место для рабочей зоны.

 📷
📷

Цветовые акценты добавили в интерьер с помощью обоев — и уже к ним подобрали краску. Краска Mons трех цветов: «Итальянская роза», «Мускатный орех» и «Королевский зеленый». Золотисто-коричневые оттенки дерева сочетаются с пепельно-розовым, травянисто-зеленым, зеленым «тиффани», оранжевым, бордовым. Золотая фурнитура на мебели мягко дополняет цветовую гамму. Хотелось передать в интерьере вкус, запах и цвет путешествий и сказок.

 📷
📷

 📷
📷

«Текстиль подбирали, когда приехали все элементы мебели. Мы долго размышляли, каких цветов еще хотим добавить интерьеру. Решили делать шторы не однотонными, а цветными с рисунком. Так на первом этаже появились шторы в золотисто-коричневую полоску. Полоски хорошо сочетаются с реечным ограждением лестницы и с подлокотниками кресла», — делится Екатерина Проскурина.

 📷
📷

«Для этого проекта хотелось максимально необычных деталей. Я подарила заказчице кашпо «Елена» с традесканцией. Друзья поддержали антропоморфную тему и подарили вазу с лицом. Самовары, зонтик, корыто на шкафу, расписные чайники, гжель, винтажная посуда с мимозой — все из личной коллекции хозяйки», — рассказывает дизайнер.

 📷
📷

 📷
📷

 📷
📷

На первом этаже находится небольшой санузел под лестницей. В нем поместились унитаз с инсталляцией, рукомойник, гигиенический душ, работающий от смесителя.

 📷
📷

 📷
📷

Заказчица отказалась от гардеробных в пользу увеличения комнат. Хранение организовали в прихожей в виде шкафа для уличной сезонной одежды и большого гардеробного шкафа в спальне хозяйки. Небольшой платяной шкафчик стоит в кабинете для гостей дома.

 📷
📷

Зеркальные панно были последними приобретениями клиентки и дизайнера. Хотелось больше отражений в доме. Встречает гостей панно и портрет кота, который тоже живет в доме и облюбовал хозяйскую спальню.

Больше фото тут:

Двухэтажный дуплекс 80 м² для неординарной заказчицы