Найти в Дзене
INMYROOM

Яркая семейная квартира, в которой нашлось место для отдыха и работы

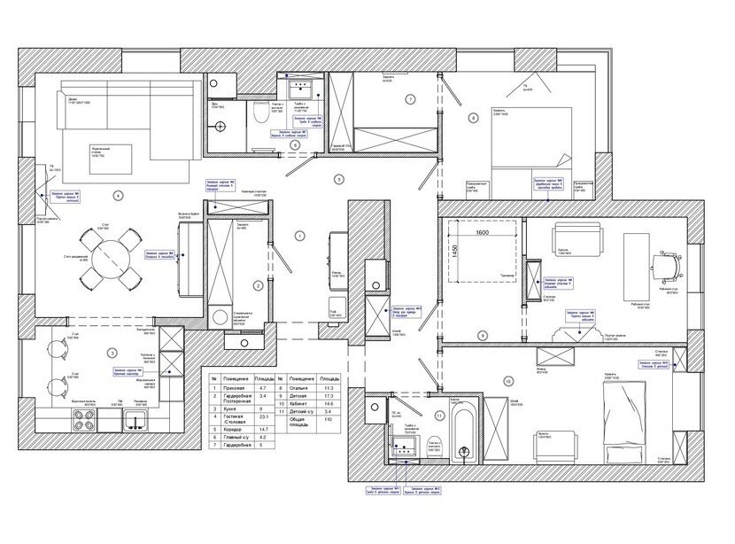
Вкратце Все началось с покупки двух соседних квартир, которые команде Enjoy Home во главе с Надей Зотовой надо было превратить в удобное и функциональное пространство не только для отдыха, но и работы. В итоге в одной части обустроили огромную общественную зону кухни-гостиной, спальни перевели в самые тихие комнаты и спроектировали два санузла. Подробности Заказчица с мужем купили две соседние квартиры общей площадью 110 квадратных метров и хотели объединить их в одну с сохранением двух входов. Это связано с работой: заказчик часто принимает посетителей дома, и нужно было сделать так, чтобы они попадали к нему напрямую, не окунаясь по дороге в семейный быт. Одно из достоинств квартиры — множество окон, которые выходят сразу на три стороны. Получилось расположить жилые и хозяйственные помещения максимально комфортно. Одна часть — это общественное пространство кухни, столовой и гостиной. Здесь семья проводит время вместе, поэтому дизайнер предусмотрела наличие ТВ-зоны, большого обе
Оглавление

Вкратце

Все началось с покупки двух соседних квартир, которые команде Enjoy Home во главе с Надей Зотовой надо было превратить в удобное и функциональное пространство не только для отдыха, но и работы. В итоге в одной части обустроили огромную общественную зону кухни-гостиной, спальни перевели в самые тихие комнаты и спроектировали два санузла.

 📷
📷

Подробности

Заказчица с мужем купили две соседние квартиры общей площадью 110 квадратных метров и хотели объединить их в одну с сохранением двух входов. Это связано с работой: заказчик часто принимает посетителей дома, и нужно было сделать так, чтобы они попадали к нему напрямую, не окунаясь по дороге в семейный быт.

 📷
📷

 📷
📷

Одно из достоинств квартиры — множество окон, которые выходят сразу на три стороны. Получилось расположить жилые и хозяйственные помещения максимально комфортно. Одна часть — это общественное пространство кухни, столовой и гостиной. Здесь семья проводит время вместе, поэтому дизайнер предусмотрела наличие ТВ-зоны, большого обеденного стола и барной стойки с видом на город — для быстрых перекусов.

 📷
📷

 📷
📷

Очень красивый кухонный гарнитур, в котором дизайнер сочетала зеленую эмаль и рыжий шпон, сделали на заказ. «Десять лет назад никто его не хотел, а сейчас он неожиданно стал модным, — рассказывает Надя Зотова. — Он хорошо смотрится в сочетании с латунью и холодными серыми и зелеными оттенками. Выглядит ярко, но благородно».

 📷
📷

Заказчица пришла к Наде Зотовой за ее фирменным стилем. «Она хотела яркий эклектичный интерьер», — говорит дизайнер. Для стен подобрали нерастиражированные оттенки краски: для гостиной взяли не серый, а сложный желтоватый цвет, в спальне использовали сочный ягодный оттенок, в кабинете — цвет морской волны. На пол во всех комнатах положили натуральное дерево: один вид покрытия помогает объединить такие разные интерьеры.

 📷
📷

Винтажная мебель и декор — еще один фирменный прием Нади Зотовой. В этом проекте без них тоже не обошлось: светильники и стулья вокруг обеденного стола, антикварный камин из Флоренции создают ретронастроение и добавляют интерьеру душевности и уюта.

Другие элементы, которые тоже связывают интерьер воедино, — классические проемы с фрамугами, двери с филенками, карнизы и плинтусы серо-голубого оттенка, решетчатые экраны радиаторов. Почти под каждым окном дизайнер сделала диванчики: отсюда открываются отличные виды.

 📷
📷

 📷
📷

 📷
📷

 📷
📷

Другую часть квартиры поделили между спальней, детской и домашним офисом. Кабинет обустроили совсем рядом со вторым входом. Соседство с детской — не самое очевидное решение, но в итоге получилось удобно для всех. Здесь же у входа находится один из санузлов.

 📷
📷

Почти всю мебель и фурнитуру спроектировали специально для этого интерьера и изготовили в мастерской Enjoy Home: например, лавандовый диван и журнальные столики в гостиной, кровать в спальне с шикарным деревянным изголовьем и прикроватные тумбы.

 📷
📷

 📷
📷

 📷
📷

 📷
📷

Больше фото тут:

Яркая семейная квартира, в которой нашлось место для отдыха и работы