Добавить в корзинуПозвонить
Найти в Дзене
INMYROOM

Стильная евродвушка 39 м² с цветной мебелью и встроенными шкафами

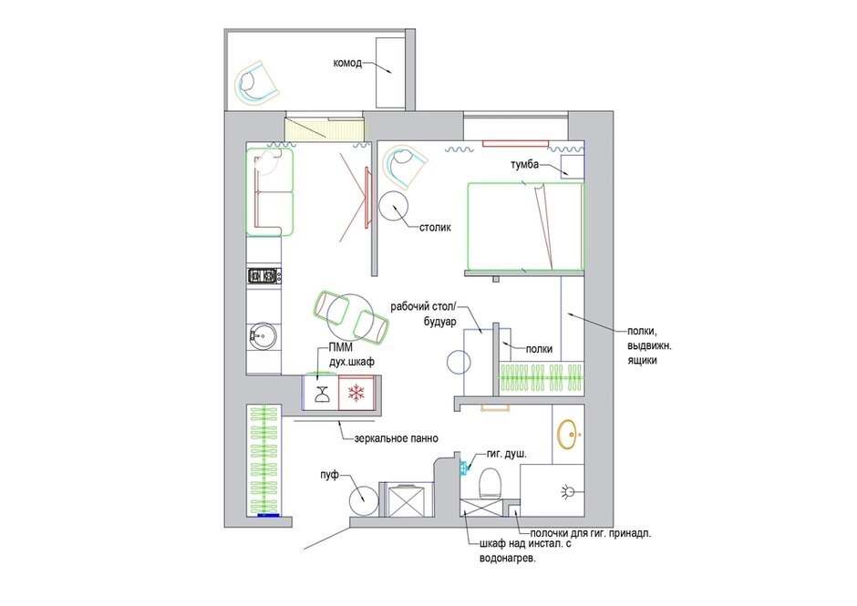
Вкратце Квартира предназначена для мамы заказчицы. Основными задачами было разместить на 39 квадратных метрах обособленную полноценную спальню, гардеробную, найти место для работы за ноутбуком. При этом кухня должна была «парить» и выглядеть максимально легкой. Все пожелания удалось реализовать благодаря профессионализму дизайнера Маргариты Калининой. Подробности Была сделана полная перепланировка, в результате которой появились отдельная спальня, полноценный гардероб и кухня-гостиная в формате open-space. Вся корпусная мебель встроенная, поэтому пространство кажется легким и свободным. Кухонный гарнитур состоит из двух частей — кухня с рабочей поверхностью и встроенные шкафы-колонны. «Я впервые использовала зеркальный цоколь с подсветкой на кухне. За счет этого появился тот самый эффект парения и легкости», — говорит дизайнер. «Реализацию этого проекта я могу назвать цена = качество. Мы экономили там, где это было возможно, но в тоже время не скупились на материалы, отвечающие
Оглавление

Вкратце

Квартира предназначена для мамы заказчицы. Основными задачами было разместить на 39 квадратных метрах обособленную полноценную спальню, гардеробную, найти место для работы за ноутбуком. При этом кухня должна была «парить» и выглядеть максимально легкой. Все пожелания удалось реализовать благодаря профессионализму дизайнера Маргариты Калининой.

 📷
📷

Подробности

Была сделана полная перепланировка, в результате которой появились отдельная спальня, полноценный гардероб и кухня-гостиная в формате open-space. Вся корпусная мебель встроенная, поэтому пространство кажется легким и свободным.

 📷
📷

Кухонный гарнитур состоит из двух частей — кухня с рабочей поверхностью и встроенные шкафы-колонны. «Я впервые использовала зеркальный цоколь с подсветкой на кухне. За счет этого появился тот самый эффект парения и легкости», — говорит дизайнер.

 📷
📷

 📷
📷

«Реализацию этого проекта я могу назвать цена = качество. Мы экономили там, где это было возможно, но в тоже время не скупились на материалы, отвечающие за комфорт. Например, основная отделка стен — это однотонные обои, а на полу — пробка, которая изготовлена конкретно под этот объект. Обои лаконичные, нейтральные, хорошо подходящие по цвету, а пробка тактильно приятная, теплая и очень уютная. Для рельефа, игры фактур в акцентных местах применили полиуретановые панели и фреску», — рассказывает Маргарита Калинина.

 📷
📷

Гостиная зона представляет собой компактный раскладной диван с зоной для чтения и телевизором напротив.

 📷
📷

В гостиной на окне использовали тяжелую ткань с элементами ягодного цвета по двум сторонам. В пространстве кухни-гостиной это сочетание смотрится как нельзя лучше. Портьера перекликается с цветом гарнитура, а на границе с диваном получается контраст.

 📷
📷

На лоджии для окна выбрали белую ткань по фактуре схожей с букле.

В небольшой квартире использовали совершенно разноплановые двери, которые смотрятся органично. В гардероб ведет дверь скрытого монтажа, в спальню — двустворчатая перегородка со стеклом, в ванной комнате установили дверь стандартного формата с наличником, но со стеклянной матовой вставкой по центру.

 📷
📷

 📷
📷

 📷
📷

«Я стараюсь проектировать интерьеры таким образом, чтобы планировочное решение, сочетание материалов, фактур, форм уже несли некий декоративный смысл. Например, в изголовье кровати стена разбита на асимметричные участки — панели под потолок, акцентное пятно обоев лососевого цвета, зеркало у окна, и все это завершает асимметричное расположение яркой кровати относительно декора стен», — рассказывает дизайнер.

На входе предусмотрели вместительный встроенный шкаф с отделкой под дерево. Его функционал — для повседневных вещей. Но есть фишка в углу шкафа — там находится лаз с лотком для кота. Также на входе, за пределами грязной зоны, расположен еще один шкаф со стиральной машиной.

В отделке санузла использовали 4 вида плитки — однотонной и с принтом. В ванной разместилась инсталляция, подвесная тумба с рельефной цветной накладной раковиной, душевая со встроенными нишами-полками.

Больше фото тут:

Стильная евродвушка 39 м² с цветной мебелью и встроенными шкафами