Добавить в корзинуПозвонить
Найти в Дзене
INMYROOM

Лофт-студия 32 м², в которой уместили все — и даже гостевой санузел

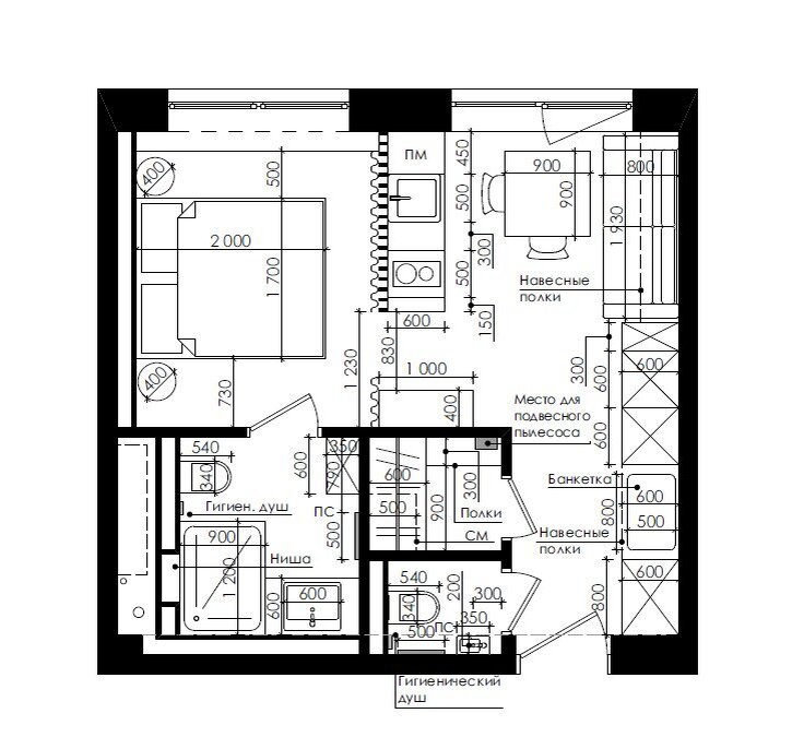
Вкратце Дизайнер Марина Саркисян оформила небольшую студию в стиле лофт для заказчицы, топ-менеджера банка. На скромных 32 квадратах удалось разместить не только полноценную спальню, но и гостевой санузел, гардеробную, удобную кухню. При этом вопрос зонирования решили с помощью мебели и текстиля — никаких перегородок. Подробности Основные зоны в процессе перепланировки поменяли местами: это было возможно, так как по документам помещение «нежилое». Мойку и варочную панель вынесли в остров. Трубы идут под уклоном от ванной по стене, через зону спальни в изголовье кровати. Глубина короба для сантехнических труб позволила сделать по всей длине стены полку, на которую будет удобно поставить книги или декор. При входе выстроена система шкафов. Шкаф для верхней одежды, далее банкетка с ящиками для хранения обуви, за ней — высокие шкафы, которые относятся к кухне. В них разместили встроенный холодильник, встроенную духовку с функцией СВЧ и встроенную кофеварку. Стены в студии выкраше
Оглавление

Вкратце

Дизайнер Марина Саркисян оформила небольшую студию в стиле лофт для заказчицы, топ-менеджера банка. На скромных 32 квадратах удалось разместить не только полноценную спальню, но и гостевой санузел, гардеробную, удобную кухню. При этом вопрос зонирования решили с помощью мебели и текстиля — никаких перегородок.

 📷
📷

Подробности

Основные зоны в процессе перепланировки поменяли местами: это было возможно, так как по документам помещение «нежилое». Мойку и варочную панель вынесли в остров. Трубы идут под уклоном от ванной по стене, через зону спальни в изголовье кровати. Глубина короба для сантехнических труб позволила сделать по всей длине стены полку, на которую будет удобно поставить книги или декор.

 📷
📷

При входе выстроена система шкафов. Шкаф для верхней одежды, далее банкетка с ящиками для хранения обуви, за ней — высокие шкафы, которые относятся к кухне. В них разместили встроенный холодильник, встроенную духовку с функцией СВЧ и встроенную кофеварку.

 📷
📷

 📷
📷

 📷
📷

Стены в студии выкрашены в светло-серый цвет, а мебель и элементы отделки — темных оттенков. Фасады кухни двухцветные: под бетон и с ярко выраженной текстурой дерева. На одной из стен присутствует керамогранит под состаренный кирпич (тот же, что в ванной комнате, только в другом цвете), на другой стене — керамогранит под дерево, который используется на полу по всей студии. Единое покрытие очень практично и позволяет немного расширить пространство, избежав ненужного деления на зоны на полу.

 📷
📷

 📷
📷

Спальня отделена от кухни шторой. Эту зону подчеркнули керамогранитом под состаренное дерево, которое переходит с пола на стены. Кровать простого дизайна серого цвета. «Бра в изголовье кровати мы заказывали по каталогу, не видели вживую. Оказались очень необычные по отделке — имитация кожи и металла, отлично вписались в интерьер, добавили нужный акцент», — рассказывает дизайнер.

 📷
📷

В санузле и ванной комнате использовали крупноформатный керамогранит 600×600 мм. В ванной он замиксован с плиткой под кирпич.

В гостевом санузле есть все необходимое, включая небольшой полотенцесушитель, компактную раковину на столешнице, гигиенический душ, унитаз и высокое зеркало. На стенах и полу одинаковый крупноформатный керамогранит, такой же, как в ванной комнате. Смесители и аксессуары в черном цвете.

Больше фото тут:

Лофт-студия 32 м², в которой уместили все — и даже гостевой санузел