Найти в Дзене

Загородный дом проекта SCANDINAVIA 262

Проект SCANDINAVIA 262 разработан в Финляндии с учетом эргономики жилого пространства. Внутреннее устройство дома тщательно продумано с целью обеспечения максимального удобства и комфорта. Здание имеет два этажа. В соответствии с современными тенденциями загородного строительства на первом этаже располагаются помещения для работы, отдыха, приема гостей и технические помещения, а спальные помещения находятся на втором этаже дома. Общая площадь дома – 262 кв. м, жилая площадь – 145 кв. м. На первом этаже площадью 172 кв. м располагаются: На втором этаже площадью 90 м2 находятся: Если вам понравился этот проект, вы можете прямо сейчас заказать строительство подобного дома на своем загородном участке, и мы учтем все ваши пожелания. «Raivola House» – живите в согласии с природой! Адрес компании: Выборгский район, пгт Рощино, ул. Железнодорожная 4Б, корпус 3. Телефон: +7 (812) 603-77-30 e-mail: info@raivola-house.ru

Проект SCANDINAVIA 262 разработан в Финляндии с учетом эргономики жилого пространства. Внутреннее устройство дома тщательно продумано с целью обеспечения максимального удобства и комфорта. Здание имеет два этажа. В соответствии с современными тенденциями загородного строительства на первом этаже располагаются помещения для работы, отдыха, приема гостей и технические помещения, а спальные помещения находятся на втором этаже дома. Общая площадь дома – 262 кв. м, жилая площадь – 145 кв. м.

Дом проекта SCANDINAVIA 262, построенный в Ленинградской области
Дом проекта SCANDINAVIA 262, построенный в Ленинградской области
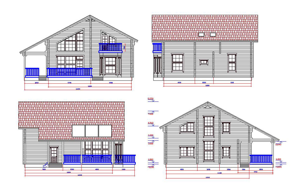
Фасады дома проекта SCANDINAVIA 262
Фасады дома проекта SCANDINAVIA 262

На первом этаже площадью 172 кв. м располагаются:

  • гостиная площадью 38 кв. м;
  • кабинет площадью 21 кв. м;
  • кухня-столовая площадью 25 кв. м;
  • холл площадью 15 кв. м;
  • санузел с душевой кабиной;
  • две отдельные крытые террасы;
  • вспомогательные и технические помещения.
План первого этажа дома проекта SCANDINAVIA 262
План первого этажа дома проекта SCANDINAVIA 262

На втором этаже площадью 90 м2 находятся:

  • две спальни площадью 18 и 21 кв. м;
  • спальня площадью 21 кв. м с балконом;
  • холл площадью 14 кв. м;
  • два санузла с душевыми кабинами.
План второго этажа дома проекта SCANDINAVIA 262
План второго этажа дома проекта SCANDINAVIA 262

Если вам понравился этот проект, вы можете прямо сейчас заказать строительство подобного дома на своем загородном участке, и мы учтем все ваши пожелания.

«Raivola House» – живите в согласии с природой!

Адрес компании: Выборгский район, пгт Рощино, ул. Железнодорожная 4Б, корпус 3.

Телефон: +7 (812) 603-77-30

e-mail: info@raivola-house.ru