Добавить в корзинуПозвонить
Найти в Дзене
INMYROOM

Крошечная эко-студия 24,5 м² с золотой кухней

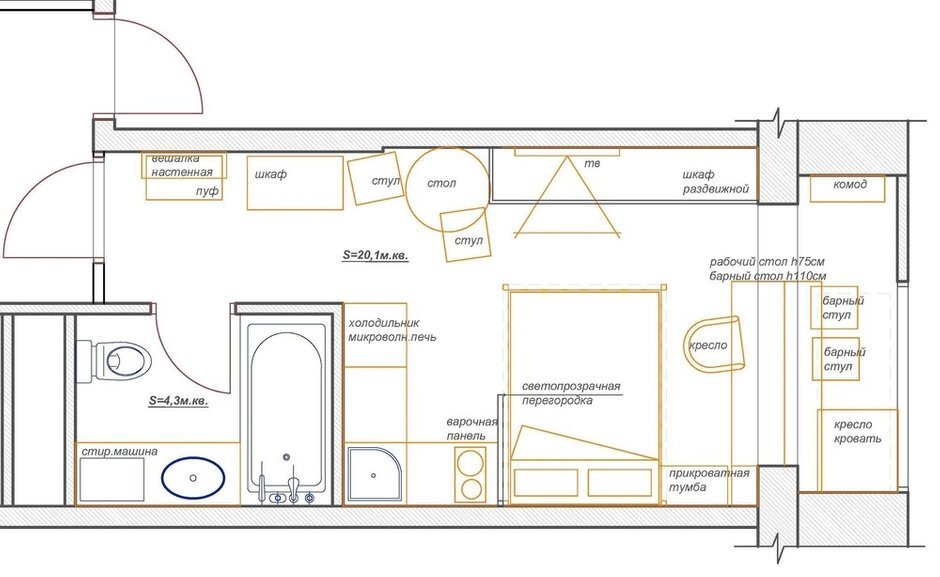
Вкратце Дизайнер Анна Новопольцева оформила маленькую студию в новостройке для аренды. На 24,5 кв. м нужно было разместить все необходимое для комфортной жизни, при этой оставаясь в рамках ограниченного бюджета. В ход пошли нестандартные решения по зонированию и мебели. В итоге получился функциональный и очень уютный интерьер с полноценным спальным местом, столовой и даже рабочим столом. Подробности Квартира представляет собой вытянутый прямоугольник с лоджией. Зонирование решили сделать с помощью расстановки и грамотного использования мебели и резных перегородок, пропускающих свет. Это позволило создать приватную атмосферу в спальной зоне, но оставить освещенными кухню и прихожую. Для стен использовали краску, на полу — кварц-винил. «Белый цвет стен выбрали не случайно, необходимо было максимально расширить пространство и сделать его светлым. Плюс хотелось поддержать выбранную стилистику и подчеркнуть натуральный цвет дерева», — рассказывает дизайнер. Основная система хранения
Оглавление

Вкратце

Дизайнер Анна Новопольцева оформила маленькую студию в новостройке для аренды. На 24,5 кв. м нужно было разместить все необходимое для комфортной жизни, при этой оставаясь в рамках ограниченного бюджета. В ход пошли нестандартные решения по зонированию и мебели. В итоге получился функциональный и очень уютный интерьер с полноценным спальным местом, столовой и даже рабочим столом.

 📷
📷

Подробности

Квартира представляет собой вытянутый прямоугольник с лоджией. Зонирование решили сделать с помощью расстановки и грамотного использования мебели и резных перегородок, пропускающих свет. Это позволило создать приватную атмосферу в спальной зоне, но оставить освещенными кухню и прихожую.

 📷
📷

Для стен использовали краску, на полу — кварц-винил. «Белый цвет стен выбрали не случайно, необходимо было максимально расширить пространство и сделать его светлым. Плюс хотелось поддержать выбранную стилистику и подчеркнуть натуральный цвет дерева», — рассказывает дизайнер.

 📷
📷

 📷
📷

Основная система хранения — шкаф, выполненный на месте из готовых резных перегородок, использованных в качестве раздвижных дверей. За ними скрывается система хранения: полки, штанга, отдельно стоящий комод. Также за перегородкой располагается ТВ. В коридоре предусмотрен распашной готовый шкаф для верхней одежды.

 📷
📷

От оконного блока между комнатой и лоджией отказались, между ними сделали двухъярусный стол-подоконник. Со стороны жилой зоны это рабочий стол для учебы или работы, со стороны окна — барная стойка, где можно отдохнуть, глядя в окно.

 📷
📷

Большая часть мебели, декора, комплектующих приобреталась в «Леруа Мерлен».

 📷
📷

Кухонный гарнитур разместили углом и отгородили от спального места перегородкой. Часть техники отдельно стоящая для экономии бюджета.

В санузле места хватило для размещения ванной, большой тумбы с раковиной и унитаза. На полу — керамогранитная плитка, на стенах — краска плюс плитка. В качестве декора и для визуального расширения пространства использовали зеркала разных форм и размеров.

Больше фото тут:

Крошечная эко-студия 24,5 м² с золотой кухней