Найти в Дзене
INMYROOM

Лофт-двушка 50 м² в старом кирпичном доме с видом на сад Эрмитаж

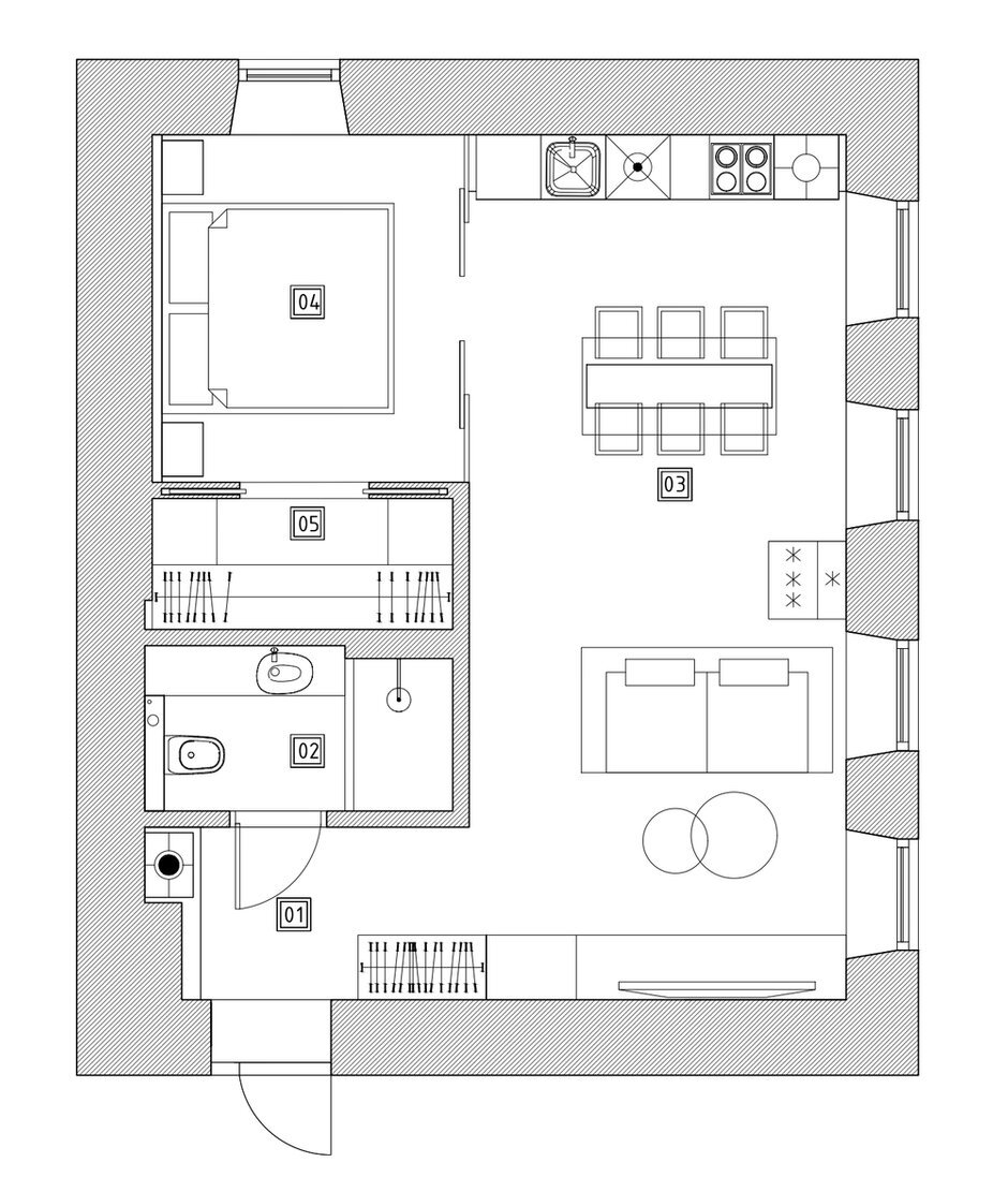
Вкратце Дизайнер Александра Останкова создала модный и функциональный интерьер в стиле лофт для молодой девушки с собакой. Квартира расположена в старом кирпичном доме 1917 года постройки. Окна гостиной выходят на сад Эрмитаж: помимо красивого вида, еще слышна музыка, можно наблюдать танцующие пары — это создает особую атмосферу. В результате перепланировки на 50 квадратах удалось создать классное пространство для музыкальных вечеринок и душевных посиделок и приватную зону для сна и отдыха. Подробности Три окна выходят на одну сторону — они расположены в просторной кухне-гостиной. Еще одно окошко есть на соседней стене — его отдали под спальню, которую отделили от общей зоны раздвижной перегородкой. В квартире газ, поэтому кухню оставили на прежнем месте. У хозяйки много книг и пластинок — для них спроектировали огромный стеллаж в гостиной. Еще одно необычное место хранения — для коллекции кроссовок заказчицы. Дом старый, при расчистке стен от штукатурки открылась красивая кирпич
Оглавление

Вкратце

Дизайнер Александра Останкова создала модный и функциональный интерьер в стиле лофт для молодой девушки с собакой. Квартира расположена в старом кирпичном доме 1917 года постройки. Окна гостиной выходят на сад Эрмитаж: помимо красивого вида, еще слышна музыка, можно наблюдать танцующие пары — это создает особую атмосферу. В результате перепланировки на 50 квадратах удалось создать классное пространство для музыкальных вечеринок и душевных посиделок и приватную зону для сна и отдыха.

 📷
📷

Подробности

Три окна выходят на одну сторону — они расположены в просторной кухне-гостиной. Еще одно окошко есть на соседней стене — его отдали под спальню, которую отделили от общей зоны раздвижной перегородкой. В квартире газ, поэтому кухню оставили на прежнем месте. У хозяйки много книг и пластинок — для них спроектировали огромный стеллаж в гостиной. Еще одно необычное место хранения — для коллекции кроссовок заказчицы.

 📷
📷

 📷
📷

Дом старый, при расчистке стен от штукатурки открылась красивая кирпичная кладка — решили оставить как элемент декора. И во многом она повлияла на основную стилистику интерьера.

 📷
📷

По просьбе заказчицы вместо привычного стола сделали большую барную стойку высотой 110 см и шесть стульев.

Полы во всей квартире, в том числе и в спальне, сделаны из керамогранита с подогревом. Это было пожелание заказчицы. Площадь небольшая, пространства перетекают из одного в другое, это решение сделало интерьер более целостным.

 📷
📷

«Холодильник изначально планировали поставить в кухонном гарнитуре сбоку от раковины, при проектировании кухни ниша под него была заложена. Но по очень хорошей цене заказчица купила красивый и вместительный пузатый холодильник, который в нишу никак не помещался. В итоге он встал в простенке между окнами, рядом с барной стойкой. В пустующую нишу рядом с мойкой встроили шкаф из металла для хранения вина. Его изготавливали в кузнице, там же, где и стеллаж. В дверце делали перфорированную сетку — еще одна отсылка к стилю лофт. Это придало брутальности кухне», — рассказывает дизайнер.

 📷
📷

Барный стол с «рекой» сделан на заказ, привезли его в собранном виде (его размеры 180×90 см, высота 100 см): внести его в квартиру, поднять по лестнице и, самое главное, пронести в прихожей, где уже были установлены шкафы, оказалось непростой задачей.

 📷
📷

 📷
📷

«ТВ-стеллаж в гостиной изготовили по мотивам винтажной мебели Restoration Hardware — нужного размера фабрика не изготавливает, поэтому нам пришлось импровизировать. Отдельно заказали каркас из металла, покрасили порошковой краской, а полки и ящики изготовили из дуба», — рассказывает дизайнер.

 📷
📷

 📷
📷

 📷
📷

От ванны решили отказаться в пользу душевой. Все стены отделаны керамогранитом, предусмотрели большое зеркало для визуального расширения пространства и большую столешницу. Мебель под раковину изготавливалась на заказ из МДФ вместе с полочками с подсветкой.

Больше фото тут:

Лофт-двушка 50 м² в старом кирпичном доме с видом на сад Эрмитаж