Добавить в корзинуПозвонить
Найти в Дзене
INMYROOM

Как обновили старинную трешку 60 м² в Питере

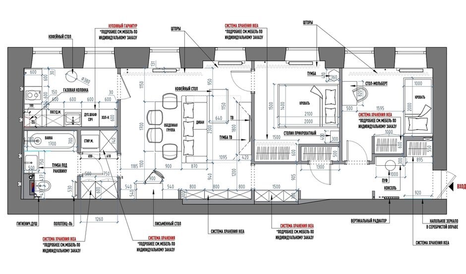
Вкратце Эта квартира находится в здании первой половины XVIII века, построенном архитектором Цезарем Кавосом. Заказчики решили сдавать ее посуточно и пригласили дизайнеров из AM| Interior studio довести планировку до ума и создать стильную обстановку, где будет приятно находиться. Подробности Заказчик хотел сделать как можно больше отдельных комнат, разместить постирочную зону и объединить санузел с ванной с целью визуального увеличения площади. В квартире много окон, но все они выходят на одну сторону, поэтому образовался длинный коридор. Его зонировали посередине порталом и разными типами напольного покрытия. Оставили две отдельные спальни, гостиную отделили от кухни при помощи стеклянной двери, что визуально расширило пространство и одновременно отсекло газовую колонку от жилых комнат. На кухне имеется встроенный холодильник, СВЧ, духовой шкаф, посудомоечная машина, плита на две конфорки, вытяжка и газовая колонка. Стиральная машина, сушильная машина и хранение бытовой техники в
Оглавление

Вкратце

Эта квартира находится в здании первой половины XVIII века, построенном архитектором Цезарем Кавосом. Заказчики решили сдавать ее посуточно и пригласили дизайнеров из AM| Interior studio довести планировку до ума и создать стильную обстановку, где будет приятно находиться.

 📷
📷

Подробности

Заказчик хотел сделать как можно больше отдельных комнат, разместить постирочную зону и объединить санузел с ванной с целью визуального увеличения площади. В квартире много окон, но все они выходят на одну сторону, поэтому образовался длинный коридор. Его зонировали посередине порталом и разными типами напольного покрытия. Оставили две отдельные спальни, гостиную отделили от кухни при помощи стеклянной двери, что визуально расширило пространство и одновременно отсекло газовую колонку от жилых комнат.

 📷
📷

На кухне имеется встроенный холодильник, СВЧ, духовой шкаф, посудомоечная машина, плита на две конфорки, вытяжка и газовая колонка. Стиральная машина, сушильная машина и хранение бытовой техники вынесены в транзитную зону перед ванной комнатой, где они скрыты от глаз и не «захламляют» пространство. В кухне есть несколько подвесных и напольных модулей для хранения продуктов, также возможно использование подоконников для хранения.

 📷
📷

 📷
📷

 📷
📷

 📷
📷

Для отделки использовали краску, ее легко реставрировать при необходимости. В проекте планировалась фреска с картиной Пабло Пикассо «Авиньонские девицы», но заказчик принял решение, что хочет сделать картину, чтобы впоследствии ее можно было заменить на другой сюжет.

 📷
📷

 📷
📷

 📷
📷

 📷
📷

 📷
📷

В ниши вписали готовые шкафы ИКЕА, что существенно сэкономило бюджет. При этом визуально они выглядят как заказные элементы.

 📷
📷

 📷
📷

В отделке спальни использовали приглушенные тона краски и яркий текстиль и декор оттенка охры. Это сочетание делает обстановку более насыщенной и фактурной. Молдинги помогают создать атмосферу интерьера в стиле неоклассика.

 📷
📷

 📷
📷

Ванную комнату объединили с туалетом: поместились ванная, подвесной унитаз с коллекторной группой над ним, в этой же зоне предусмотрели полки для хранения бытовой химии, для хранения есть большая тумба под раковиной.

Больше фото тут:

Как обновили старинную трешку 60 м² в Питере