Найти в Дзене
INMYROOM

Сама нежность: элегантная евродвушка 68 м²

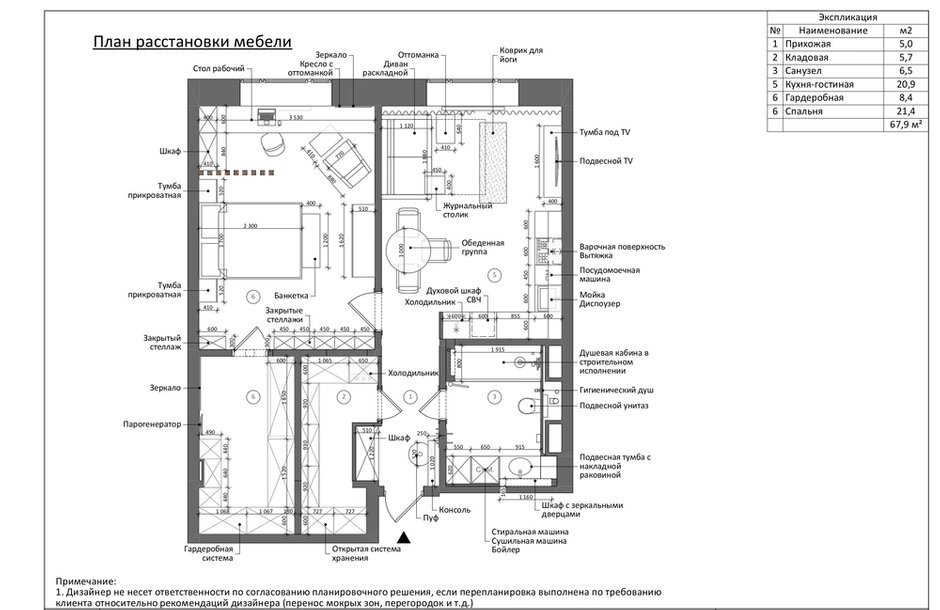
Вкратце Дизайнер Василиса Максимаджи оформила квартиру для заказчицы, которая планирует жить одна, поэтому интерьер делала исключительно под себя. Необходимо было много мест и помещений для хранения, поэтому предусмотрели вместительные гардеробную и кладовую. У хозяйки большая библиотека, поэтому для нее нужен был большой стеллаж. Также хотелось большую кухню, чтобы было удобно готовить. Подробности В изначальной планировке была большая нефункциональная прихожая и маленькие кладовая и гардеробная. В результате перепланировки сократили прихожую, сохранив ее функционал, увеличили гардеробную при спальне и кладовую. Демонтировали практически все перегородки, кроме стен санузла и стены между кухней и спальней — в ней сделали проем. Главной задачей было увеличить количество помещений для хранения — у хозяйки много одежды, обуви, косметики и женских аксессуаров. При этом важно было сохранить «грязную» зону прихожей и сделать ее функциональной. В ней есть все, что нужно: шкаф, пуф, небольша
Оглавление

Вкратце

Дизайнер Василиса Максимаджи оформила квартиру для заказчицы, которая планирует жить одна, поэтому интерьер делала исключительно под себя. Необходимо было много мест и помещений для хранения, поэтому предусмотрели вместительные гардеробную и кладовую. У хозяйки большая библиотека, поэтому для нее нужен был большой стеллаж. Также хотелось большую кухню, чтобы было удобно готовить.

 📷
📷

Подробности

В изначальной планировке была большая нефункциональная прихожая и маленькие кладовая и гардеробная. В результате перепланировки сократили прихожую, сохранив ее функционал, увеличили гардеробную при спальне и кладовую. Демонтировали практически все перегородки, кроме стен санузла и стены между кухней и спальней — в ней сделали проем.

Главной задачей было увеличить количество помещений для хранения — у хозяйки много одежды, обуви, косметики и женских аксессуаров. При этом важно было сохранить «грязную» зону прихожей и сделать ее функциональной. В ней есть все, что нужно: шкаф, пуф, небольшая консоль с ящиком для мелочей, открытые крючки для мокрой одежды.

 📷
📷

Заказчица любит готовить, поэтому предусмотрели большую кухню с множеством мест хранения. Двухуровневые верхние модули на нажимных механизмах, в нижнем модуле предусмотрена посудомоечная машина и место для сушильного ящика (обычно сушилку на кухне располагают в верхних модулях, здесь она в нижнем). Под мойкой есть фильтр и диспоузер для измельчения отходов.

 📷
📷

 📷
📷

Красивое сочетание глубоких серо-синих фасадов кухни и ручек под золото подчеркнули золотистыми прожилками мрамора на фартуке. У производителя кухни были только стандартные модули, поэтому нужно было смонтировать короб над кухонными шкафами, чтобы уложиться в этот размер. Потолки в квартире около трех метров. Украсили этот короб рельефными гипсовыми панелями, так гладкие фасады кухни и рельеф короба играют на контрасте, подчеркивая друг друга.

Цветовая палитра интерьера помогает создать ощущение расслабленности, уюта, женственности и нежности. Присутствует много теплого дерева, легкие белые и розовые оттенки. На контрасте с этой легкостью работает темный насыщенный благородный цвет кухни в сочетании с золотой фурнитурой. Элементы золота проходят через всю квартиру: ручки на кухне, на шкафах, бра в прихожей, сантехника и душевая перегородка в санузле, крючки, светильники в спальне, золотые ножки у рабочего стола — все имеет золотую фурнитуру.

 📷
📷

 📷
📷

 📷
📷

 📷
📷

Рельефная панель за телевизором в изначальном виде состоит из гипсовых панелей форматом 60×60 см, они клеятся на стену, шкурятся и красятся. У ломанных панелей всегда сложный узел с примыканием к предметам другого сечения, таким как тумба под ТВ и классический карниз. Тумба под ТВ по факту врезана в панель, то есть в панели сделан выпил в размер тумбы, встроенной в это отверстие.

Спальня — самое нежное и элегантное помещение. Розовый оттенок стен, бежевая кровать с мягкими подушками, разные сценарии освещения, скругленные подвесные светильники создают очень уютную атмосферу. Предусмотрели туалетный столик для макияжа и рабочий стол, единый с подоконником. Большой стеллаж с подсветкой для книг хозяйки и скрытая дверь в гардеробную находятся напротив окна.

 📷
📷

Предусмотрели зонирование пространства для работы и сна с помощью реечной перегородки. Чтобы перегородка не смотрелась стандартно, изменили сечение реек с прямоугольного на квадратное.

 📷
📷

Одну стену занимает вместительный стеллаж для книг и декоративных предметов хозяйки. Дверь в гардеробную визуально скрыта благодаря повторяющийся отделке стеновой панели с книжным стеллажом.

 📷
📷

В спальне на полу паркетная доска в цвет керамогранита под дерево в прихожей. Она создает тактильно приятные ощущения и добавляет благородства и уюта комнате.

Интерьер санузла светлый, легкий, с золотыми элементами в сантехнике. Здесь использовали дорогую сантехнику, чтобы ею было удобно и приятно пользоваться. Необычный полотенцесушитель с крючками для сушки полотенец смотрится изящно и нестандартно. Справа от раковины находится колонна со стиральной и сушильной машинами, сверху — место под бойлер. Правее колонны есть еще одна система хранения, внизу корзина для грязного белья, сверху — место для хозяйственных принадлежностей.

В душевой предусмотрели встроенную полочку с подсветкой для хранения шампуней. Керамогранит под дерево в душевой не скользит. Использовали большеформатный керамогранит под мрамор и в цвет него покрасили стены.

Компактное пространство коридора смотрится легко благодаря использованию разной отделки в качестве зонирования. Двери в санузел и кладовую расположены напротив друг друга по одной оси, что сохраняет композиционный ритм и красоту. При этом двери между собой не пересекаются, так коридор получился относительно широким.

Больше фото тут:

Сама нежность: элегантная евродвушка 68 м²