Добавить в корзинуПозвонить
Найти в Дзене
INMYROOM

Красивый проект трешки 60 м² в стиле современная классика

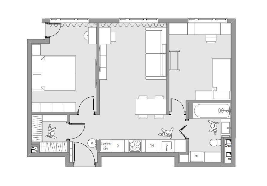
Вкратце Архитектор-дизайнер Екатерина Пимкина создала проект евротрешки 60 кв. м для семьи с ребенком. Одной из основных задач было обустройство просторной и функциональной кухни-гостиной, которая подойдет для семейного досуга и для приема гостей. Также нужно было предусмотреть гардеробную и лаунж-зону в спальне. А детскую оформить так, чтобы ребенок был в восторге. Подробности В квартире три окна, поэтому разделить пространство на функциональные зоны получилось сразу. Кухня оказалась в зоне бывшего коридора, а сама кухня-гостиная проходная — через нее можно попасть в санузел и в детскую комнату. Мы уже рассказывали, что изначально дизайнер предложила заказчикам два варианта оформления кухни. Хозяева выбрали более строгий контрастный дизайн. Столешница, фартук и обрамление гарнитура выполнены в камне с черно-белым рисунком. Также здесь предусмотрена подсветка — она добавляет графичности. Екатерина Пимкина убрала верхние шкафы, зато добавила прозрачный шкаф для бокалов и вина. Над
Оглавление

Вкратце

Архитектор-дизайнер Екатерина Пимкина создала проект евротрешки 60 кв. м для семьи с ребенком. Одной из основных задач было обустройство просторной и функциональной кухни-гостиной, которая подойдет для семейного досуга и для приема гостей. Также нужно было предусмотреть гардеробную и лаунж-зону в спальне. А детскую оформить так, чтобы ребенок был в восторге.

 📷
📷

Подробности

В квартире три окна, поэтому разделить пространство на функциональные зоны получилось сразу. Кухня оказалась в зоне бывшего коридора, а сама кухня-гостиная проходная — через нее можно попасть в санузел и в детскую комнату.

 📷
📷

Мы уже рассказывали, что изначально дизайнер предложила заказчикам два варианта оформления кухни. Хозяева выбрали более строгий контрастный дизайн. Столешница, фартук и обрамление гарнитура выполнены в камне с черно-белым рисунком. Также здесь предусмотрена подсветка — она добавляет графичности. Екатерина Пимкина убрала верхние шкафы, зато добавила прозрачный шкаф для бокалов и вина.

 📷
📷

Над обеденным столом повесили несколько светильников с тонкими геометричными деталями — смотрится изящно. Черный каркас стола со столешницей под камень дополнили мягкими стульями с блестящими металлическими ножками.

 📷
📷

Гостиная зона смотрится благородно и строго за счет большого количества черных и графитовых деталей — искусство, декоративные подушки, римская штора с принтом, ковер. Вертикальные бра отлично вписались в обстановку.

 📷
📷

Зону ТВ выделили богатой лепниной, она выкрашена в цвет стены, не выделяется, но добавляет роскоши интерьеру. Зеркальное полотно дополнили элементом из того же материала, что используется в отделке гарнитура.

 📷
📷

На контрасте со строгой и элегантной кухней-гостиной выполнен интерьер легкой и романтичной спальни. Присутствие оттенков сиреневого — одно из основных пожеланий заказчицы.

 📷
📷

 📷
📷

Необходимо было предусмотреть небольшой уголок для уединения. Им стала лаунж-зона около окна с небольшим диваном, отгороженная от всей остальной спальни декоративной ширмой в стиле модерн.

 📷
📷

Самым ярким и эмоциональным помещением стала детская. Ее юный хозяин увлекается динозаврами — это и легло в основу интерьера. Сочетание различных фактур, контрастных цветов и динамичных линий помогли создать спальню мечты для ребенка. «Все очень нравится, но можно еще черепашек-ниндзя на потолок», — добавил ее юный хозяин на презентации интерьера его комнаты.

Больше фото тут:

Красивый проект трешки 60 м² в стиле современная классика