Добавить в корзинуПозвонить
Найти в Дзене
АнглияДом

Шесть особенностей рынка недвижимости Великобритании

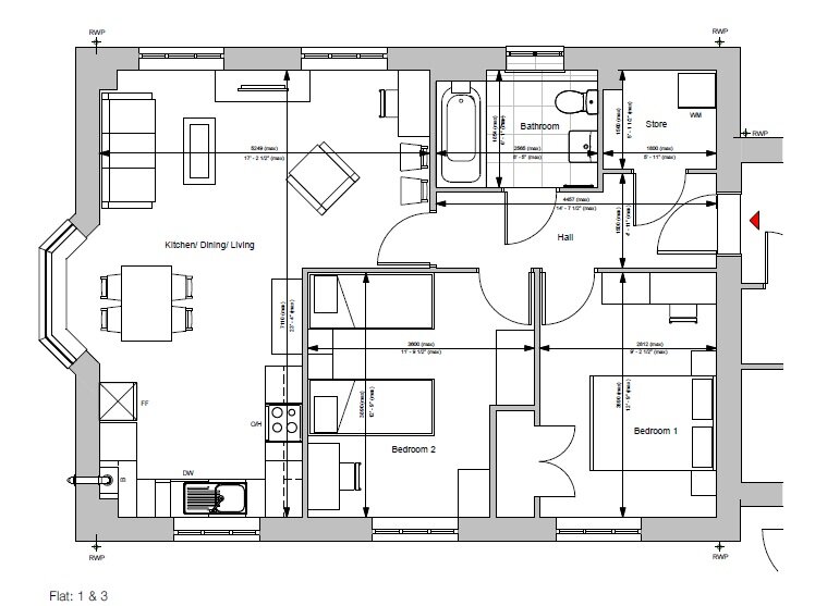
Человек, который ранее не сталкивался с рынком недвижимости Великобритании, обнаружит в нем довольно много «сюрпризов», которые могут поставить в тупик и потребуется много времени, чтобы разобраться в некоторых особенностях. Мы, руководствуясь своим опытом, попробовали здесь систематизировать те отличия, которые бросаются в глаза человеку, привыкшему к «пост-советскому» пространству. Итак, какие же основные отличия? 2. В объявлениях часто не указывается площадь квартиры. Вы видите объявление, но площадь может быть не указана вовсе. А ведь квартира, например, с двумя спальнями, может быть и 50 кв. метров и 150 кв. метров. Считается, что для начала достаточно указать количество спален. Чтобы понять, какова же площадь квартиры, необходимо запросить план. Иногда план размещен в объявлении, но из него все равно ничего не понятно. Почему? Потому что существует 3-я особенность. 3. В Великобритании используется английская система мер длины, расстояний, площади и других размеров. Площадь поме

Человек, который ранее не сталкивался с рынком недвижимости Великобритании, обнаружит в нем довольно много «сюрпризов», которые могут поставить в тупик и потребуется много времени, чтобы разобраться в некоторых особенностях. Мы, руководствуясь своим опытом, попробовали здесь систематизировать те отличия, которые бросаются в глаза человеку, привыкшему к «пост-советскому» пространству. Итак, какие же основные отличия?

  • 1. Недвижимость измеряется спальнями. В объявлении указывается не количество комнат, а количество спален. Что это значит? В любом абсолютно объекте, будь то дом, квартира, или террас-хаус, существует так называемая «ливинг рум» (living room), то есть большая комната – гостиная, которая не считается спальней и соответственно не учитывается в объявлении. Гостиная может быть объединена с кухней, а может быть изолирована от кухни, зависит от планировки. Чаще, это общее с кухней большое помещение, имеющее зональные разграничения. Таким образом, квартира с одной спальней – 1bedroom apartment – это фактически 2-х комнатная квартира в нашем понимании. Соответственно, 2 bedroom – это 3-х комнатная квартира. И так далее.
1bedroom apartment
1bedroom apartment

2. В объявлениях часто не указывается площадь квартиры. Вы видите объявление, но площадь может быть не указана вовсе. А ведь квартира, например, с двумя спальнями, может быть и 50 кв. метров и 150 кв. метров. Считается, что для начала достаточно указать количество спален. Чтобы понять, какова же площадь квартиры, необходимо запросить план. Иногда план размещен в объявлении, но из него все равно ничего не понятно. Почему? Потому что существует 3-я особенность.

Angliadom
Angliadom

3. В Великобритании используется английская система мер длины, расстояний, площади и других размеров. Площадь помещений измеряется в кв. футах. Расстояние до ближайшего супермаркета – в милях или ярдах. Соответственно, для того, чтобы представить размер помещения или удаленность от социальной инфраструктуры в привычной нам метрической системе, необходимо понимать соотношение кв. фута к кв. метру, ярда к метру, а мили к километру. Например, вы видите, что площадь квартиры 1624 кв. футов. Сколько это в кв. метрах?

Angliadom
Angliadom

4. В Великобритании иная система подсчета этажей. Этажи считаются не с первого, а с нулевого. Называется этот этаж «ground floor». Таким образом, если указано, что квартира на 1 этаже (first floor), это означает, что она фактически на 2. Соответственно, если квартира на втором (second floor) этаже – значит, что она на 3. Как видно из картинки, в Америке используется стандартная система подсчета этажей. Кстати, не всегда ground floor считается нежелательным. Часто квартиры на самом нижнем этаже строятся с выходом в собственный сад и это считается большим преимуществом, так как вы владеете собственным участком земли, кроме недвижимости.

Angliadom
Angliadom

5. Отсутствует «Право собственности» на квартиру в нашем понимании. Полное право собственности вы можете приобрести только на дом. Этот вид собственности называется «freehold». В случае приобретения дома вы владеете как самим домом, так и участком земли под домом и вокруг него. В случае же приобретения квартиры, вы не можете владеть землей, на которой построен многоквартирный дом, так как вся земля уже давно кому-то принадлежит. В этом случае вы приобретаете недвижимость на праве, которое именуется «leasehold». Фактически, это долгосрочный лизинг. Сейчас все новые квартиры продаются преимущественно в лизинг на 999 лет. Фактически, это не отличается от полной собственности. Разница в том, что вы платите ежегодно небольшую сумму за аренду земли, на которой стоит дом – ground rent. Ну и главная особенность – вы должны согласовывать все свои действия по перепланировки помещения с ландлордом (landlord) – владельцем земли. Подробнее о видах владения собственностью вы можете прочитать у нас на сайте:

Земельное право и виды владения собственностью Великобритании
Angliadom
Angliadom

6. Обязательное сопровождение сделок с недвижимостью солиситором. Солиситор – это адвокат. Специалист по юридическому праву, имеющий специальную квалификацию для сделок в сфере недвижимости. Обе стороны сделки- как продавец, так и покупатель должны иметь своего солиситора, который в обязательном порядке сопровождает сделку. Фактически, продавец и покупатель не общаются напрямую. Все общение происходит через солиситоров. Солиситор обеспечивает чистоту и прозрачность сделки, проверят деньги и документы. Транзакции денежных средств также происходят через солиситоров. Такая система позволяет избежать мошенничеств и злоупотреблений на рынке недвижимости. Конечно, процедура покупки довольно сильно затягивается. Но такой порядок, который выработался за несколько веков и считается правильным.

-6