Найти в Дзене
INMYROOM

ИКЕА vs дизайнер. Как оформили двушку 58 м² в типовой «панельке»: 2 решения (бесплатно)

Сегодня мы покажем два классных решения для оформления двушки площадью 58 м² в доме серии КОПЭ-85. Первый вариант разработала дизайнер Мила Колпакова, а второй – мы нашли на сайте ИКЕА в разделе «Квартиротека». Смотрим!
Оглавление

Сегодня мы покажем два классных решения для оформления двушки площадью 58 м² в доме серии КОПЭ-85. Первый вариант разработала дизайнер Мила Колпакова, а второй – мы нашли на сайте ИКЕА в разделе «Квартиротека». Смотрим!

1. Решение дизайнера

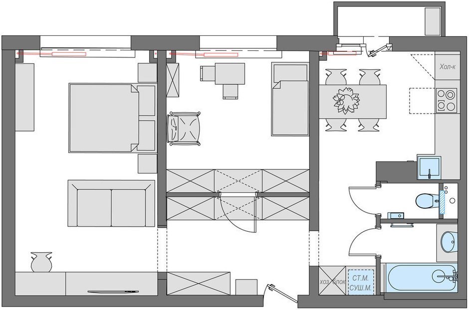
Мила Колпакова оформила эту квартиру для молодой семьи, у которой недавно родился ребенок. Для малыша отвели отдельную комнату, а вторую превратили в многофункциональное пространство, в котором появилась спальня, гостиная и кабинет. На кухне разместили все самое необходимое и даже обустроили обеденную зону для всей семьи.

От объединения санузла решили отказаться. Тем не менее получилось найти место для стирайльной машинки и даже вместительных систем хранения.

-2

Кухня

Кухонный гарнитур разместили вдоль одной стены и задействовали угол до вентиляционного короба. Шкафы сделали до потолка, чтобы организовать полноценные места для хранения. Стену с окном никак не задействовали, потому что там находится вход на балкон. В кухню сделали открытый проход из коридора. Это позволило визуально расширить помещение.

-3

Спальня-гостиная-кабинет

Для заказчиков была в приоритете полноценная двуспальная кровать, поэтому комнату пришлось просто зонировать с помощью дивана. Так получилась небольшая гостиная с рабочим столом в углу комнаты.

Детская

В детской комнате разместили кроватку и пеленальный столик, которые со временем заменятся на полноценную кровать и письменный стол. Для хранения в комнате организовали стеллаж и встроенные шкафы у входа.

-5

Ванная и санузел

В раздельный санузел вместили только все самое необходимое, а стиральную машину встроили в нишу в коридоре.

-6

2. Решение ИКЕА

Дизайнеры ИКЕА также оформили квартиру для семьи с ребенком. От большой двуспальной кровати отказались в пользу дивана, что позволило сделать многофункциональную гостиную.

-7

Кухня

Гарнитур на кухне расположили в точности, как и дизайнер в предыдущем проекте, но со своими нюансами. Например, вентиляционный короб на этой кухне задействовали. На нем расположили узкую полку, которая является продолжением кухонной столешницы. Под ней спрятали складную стремянку-табурет, которая при необходимости станет дополнительным стулом.

В обеденной зоне над столом повесили открытую полку для посуды и под ней рейлинг с органайзерами. Кстати, саму кухню отделили от коридора дверью в отличие от предыдущего проекта.

Гостиная-трансформер

Двуспальную кровать в этом проекте заменили на раскладной угловой диван с ящиками для хранения постельного белья. Полноценного рабочего места здесь нет, зато у окна расположили комфортное кресло, в котором можно расслабиться, почитать книгу или немного поработать. В гостиной предусмотрено много мест для хранения – это комод, стеллажи и гардеробная зона с зеркалом и системой ПАКС, которую можно скрыть шторой.

Детская

Ребенок в этой семье немного старше, поэтому по функционалу комнаты различаются. Здесь у окна мы видим больше свободного пространства для игр, обучения и творчества. Другая часть комнаты отведена для сна и хранения. Вдоль стены расположили детскую кровать, а возле вход а в комнату единственный шкаф. Кстати, зеркало ДРОММАРЕ на стене возле кровати безопасно, оно изготовлено из мягкого пластика.

Ванная и санузел

Санузел также оставили раздельным, но предусмотрели больше систем хранения, чем в предыдущем варианте. Кстати, стиральную машину расположили напротив раковины. В предыдущем проекте ее вынесли в прихожую и встроили в нишу. Вот как раз это место дизайнеры ИКЕА использовали для организации небольшой кладовой.

А какое из этих двух решений понравилось именно вам? Делитесь в комментариях.

Ставьте лайк и подписывайтесь на канал, чтобы видеть наши публикации в своей ленте!

Еще больше вариантов дизайна типовых российских квартир смотрите на нашем youtube-канале INMYROOM TV. А в нашем маркетплейсе вы можете купить тысячи красивых предметов мебели и декора.