Добавить в корзинуПозвонить
Найти в Дзене

Все этапы ремонта в старом фонде: "отрицание, гнев, торг, депрессия и принятие"...

Американский психолог вывела 5 этапов прохождения у людей принятия проблемы. Она говорила про серьёзные жизненные ситуации: про болезни или смерти близких.
Но это легко можно перенести на тот же стресс и гамму чувств, которые мы испытываем при затяжном сложном ремонте.
Мой ремонт позади, самое время рассказать про свои стадии принятия в нём...

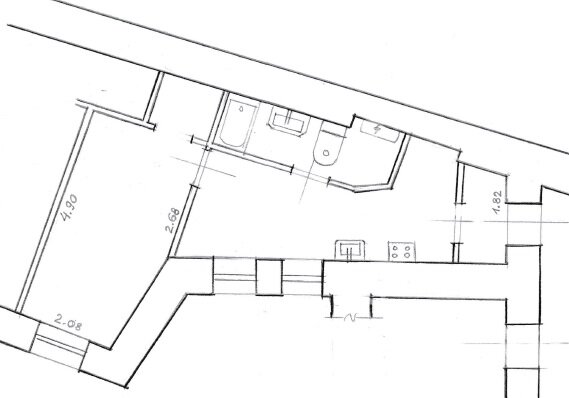
Однокомнатная квартира в 35 метров в доме 1905 года. Коммунальную квартиру пол века назад разделили пополам за счёт длинной фановой трубы в коридоре (сейчас уже такой фокус не пройдёт по законодательству). Мне досталась часть с сужающей кухней в виде "пистолета", ванной на кухне у чёрного входа.

Первым делом решили перенести ванну в коридор (это возможно, там фановая труба). Коридор большой и ненужный, поэтому из него хорошо получиться ванная комната и отдельная гардеробная в спальне. Для этого снесли и перенесли не несущие стены (второе фото в карусели ниже):

Радость покупки кварты в любимом Петроградском районе у Петропаловской крепости быстро прошло. И наступил период отрицания, когда начали рассчитывать смету по демонтажу квартиры.

фото квартиры при входе до ремонта
фото квартиры при входе до ремонта

Демонтаж квартиры всё же произошёл. С трудом и с большим количеством потерь нервных клеток. Наступила пора гнева.

Гнев был на заканчивающие деньги и на бесконечный процесс реконструкции квартиры (выстраивания новых стен, выравнивания старых стен, смену трёх окон и т.д.).

фото квартиры после демонтажа
фото квартиры после демонтажа

Гнев перетекал в торг, с попыткой экономить на всём, что только можно, и понимание, что экономить на важных вещей невозможно (на той же смене всей старой проводки). И наступила депрессия.

фото спальни квартиры до ремонта
фото спальни квартиры до ремонта

Депрессия не отпускала долго: и когда нашли в спальне два слоя старого паркета (невозможно было восстановить), и когда нашли замурованную дверь в соседнюю квартиру (напомню, раньше квартира была единой, проход был и через коридор и через спальню). И множество подобных "сюрпризов".

фото спальни и гардеробной в процессе демонтажа
фото спальни и гардеробной в процессе демонтажа

Но когда закончились уже все все деньги (и свои и заемные), когда потеряна была надежда о завершение ремонта пришло принятие, что всё идёт по плану, что всё получиться и конечно ремонт завершиться.

Есть ролик на канале про процесс ремонта до чистовой отделке этой квартиры. СМОТРЕТЬ

Сейчас ремонт закончен! Ура! И этого того стоило! Результат обязательно размещу на канале.

Всем терпения и быстрого принятия в ремонте!