Найти в Дзене
Ресог-перепланировка

Согласование перепланировки нежилого помещения пошагово.

В данной статье мы пошагово рассмотрим такой процесс согласования перепланировки нежилого помещения. Согласование перепланировки нежилого помещения в жилом доме. Рассмотрим процесс согласования такого помещения, которое расположено на первом этаже или подвале многоквартирного дома (его встроенной или пристроенной части), для тех случаев, когда перепланировка только планируется. Сюда же можно отнести такую перепланировку, которая произведена, но не «засвечена» в каких-либо юридических документах (прежде всего, на планах БТИ- Бюро технической инвентаризации), если не затрагивались несущие конструкции. Шаг 1. Получаем этажный план БТИ и экспликацию к нему на перепланируемое помещение или здание без вызова обмерщика на объект. Иными словами, надо получить план БТИ из их архива. План заказывается на все помещения, которые находятся в собственности или аренде, даже если переустройство предусмотрено только в некоторых из них. Также из БТИ необходимо получить выписку из технического паспорта н
Оглавление

В данной статье мы пошагово рассмотрим такой процесс согласования перепланировки нежилого помещения.

Согласование перепланировки нежилого помещения в жилом доме.

Рассмотрим процесс согласования такого помещения, которое расположено на первом этаже или подвале многоквартирного дома (его встроенной или пристроенной части), для тех случаев, когда перепланировка только планируется.

Сюда же можно отнести такую перепланировку, которая произведена, но не «засвечена» в каких-либо юридических документах (прежде всего, на планах БТИ- Бюро технической инвентаризации), если не затрагивались несущие конструкции.

Шаг 1. Получаем этажный план БТИ и экспликацию к нему на перепланируемое помещение или здание без вызова обмерщика на объект. Иными словами, надо получить план БТИ из их архива. План заказывается на все помещения, которые находятся в собственности или аренде, даже если переустройство предусмотрено только в некоторых из них. Также из БТИ необходимо получить выписку из технического паспорта на здание или строение по форме 1а и справку о состоянии здания (форма 5).

Шаг 2. Заказываем техническое заключение на перепланировку. Это техническое заключение содержит результаты профессионального обследования здания и помещения, оценку состояния несущих конструкций, а также приводит выводы о возможности и безопасности реализации планируемой перепланировки.

Если при ремонте планируется изменять несущие конструкции (к примеру, устроить в них проем), то данное техзаключение должно согласно пункту 1.4.7 Приложения 1 к ППМ №508 быть оформлено проектной организацией, являющейся разработчиком проекта здания. Если несущие конструкции при перепланировке не затрагиваются, то техзаключение можно выполнить в любой организации, имеющей допуск СРО на выполнение таких обследований.
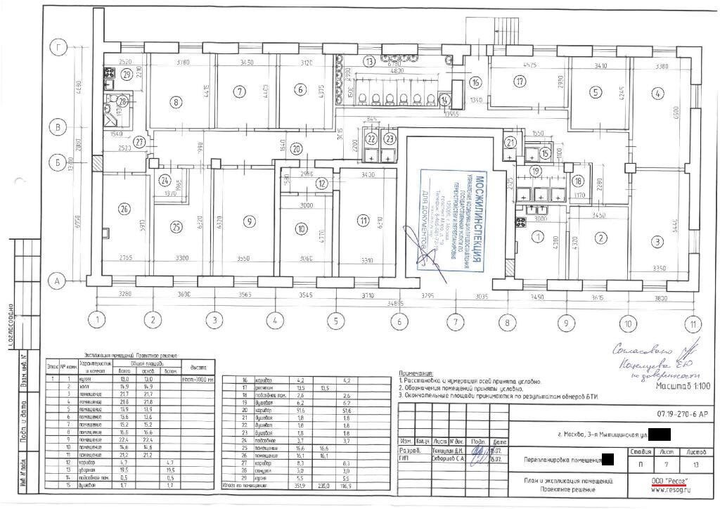
Лист из проекта с согласованной планировкой нежилого помещения
Лист из проекта с согласованной планировкой нежилого помещения

Шаг 3. Заказываем проект перепланировки в организации, имеющей допуск СРО на разработку такой документации. Проект выполняется на всю площадь, находящуюся в собственности или аренде, даже если перепланировка затрагивает только часть помещений. Иначе затем будет невозможно зарегистрировать изменения в ЕГРН. Также проект должен соответствовать всем требованиям законодательства. Иными словами, перепланировка не должна нарушать никаких существующих норм.

Шаг 4. Согласно п. 1.8 Прилож. № 3 к ППМ № 508 на основании проекта перепланировки получаем экспертное заключение и акт санитарной экспертизы в «Центре гигиены и эпидемиологии».

Экспертное заключение «Центра гигиены и эпидемиологии»
Экспертное заключение «Центра гигиены и эпидемиологии»

Шаг 5. Если при ремонте затрагивается фасад здания, то Жилинспекция по межведомственному взаимодействию отправит проект согласно п. 13 Прилож. № 1 ППМ №508 на утверждение в Комитет архитектуры и градостроительства. Настоятельно рекомендуем перед подачей документов сходить туда на консультацию и узнать пройдёт ли изменение Вашего фасада их согласование.

Шаг 6. Сдаем следующие документы напрямую в Жилинспекцию того округа, в котором расположен объект:

- Заявление;

- Доверенность от юридического лица + копия;

- Копия паспорта доверенного лица;

- Заверенная копия устава;

- ИНН;

- ОГРН;

- Банковская карточка предприятия;

- Приказ об утверждении проектной документации или визирование титула проекта;

- Заверенные копии приказа о назначении генерального директора и протокола;

- Проект перепланировки + копия

- Техзаключение + копия;

- Документы БТИ + копия (поэтажный план и экспликация, форма 1а и форма 5);

- Заключение «Центра гигиены и эпидемиологии» +копия;

- Нотариально заверенную копию регистрации права собственности или договор аренды;

Если собственником нежилого помещения является физическое лицо, то тогда не надо представлять документы, относящиеся к юридическому лицу. Вместо них достаточно будет паспорта, а для визирования титула проекта- обычной подписи с расшифровкой.

В некоторых случаях перепланировки могут потребоваться согласование с дополнительными инстанциями: к примеру, разрешение ОПС (Отдела подземных сооружений) при затрагивании придомовой территории, или документы по общему собранию жильцов, если при ремонте каким-либо образом затрагивается общедомовое имущество. Рассмотреть все эти случаи в рамках одной статьи невозможно.

Шаг 7. После рассмотрения поданных документов в течение 30 рабочих дней Жилищная инспекция, если всё соответствует нормам, выдаёт разрешение на перепланировку.

Согласование перепланировки нежилого помещения- разрешение на ремонт.
Согласование перепланировки нежилого помещения- разрешение на ремонт.

Шаг 8. Выполняем саму перепланировку. Или делаем паузу, как будто она выполняется.

Шаг 9. На объект вызываем инспектора Жилищной инспекции, который проверяет выполненную перепланировку на соответствие согласованной. Если все нормально, то он выдает акт о выполненной перепланировке.

Шаг 10. Вызываем на объект техника БТИ, который фиксирует новую планировку нежилого помещения.

Шаг 11. Выполняем техплан у кадастрового инженера и вносим изменения в ЕГРН.

Согласование перепланировки нежилого помещения в нежилом здании.

В этом случае перепланировка согласовывается сразу в БТИ. К ним достаточно подать проект перепланировки и техзаключение, разработанные проектным бюро с соответствующим допуском СРО на данный тип работ. На их основании перепланировка фиксируется в БТИ, составляется техплан и вносятся изменения в ЕГРН. Главное, чтобы перепланировка не относилась к реконструкции, так как тогда придется получать разрешение на строительство, а не согласовывать перепланировку. Мероприятия, не являющиеся реконструкцией здания, перечислены в ППМ №432 от 27 августа 2012, который действует до сих пор и в который вносились только правки. То, что планируемые работы не являются реконструкцией, подтверждается письмом от проектировщиков, выполнявших проект перепланировки.

Надеемся наша статья показалась Вам полезной. Ставьте лайк и подписывайтесь на наш канал. Оставляйте свои комментарии. Также Вы всегда можете бесплатно проконсультироваться с нами по телефону 8 (495) 507-74-67.