Найти в Дзене

Новый проект офисно жилого здания

Жить и работать в одном здании это наверное удобно))
В одном из городов Европы есть старый район, с промышленными домиками постройки середины прошлого века, так вот между двумя такими домиками, бы старый проезд, шириной 6 метров.
Именно в этом месте мой заказчик решил построить себе современный офис, а заодно и небольшую квартирку для себя любимого.
Оглавление
Жить и работать в одном здании это наверное удобно))
Жить и работать в одном здании это наверное удобно))

В одном из городов Европы есть старый район, с промышленными домиками постройки середины прошлого века, так вот между двумя такими домиками, бы старый проезд, шириной 6 метров.

Именно в этом месте мой заказчик решил построить себе современный офис, а заодно и небольшую квартирку для себя любимого.

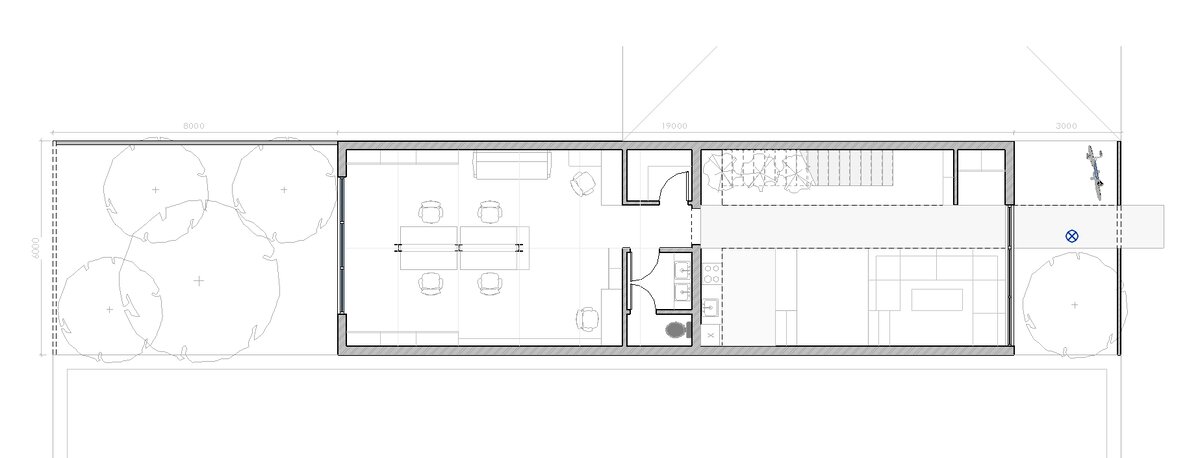
Планировка первого этажа
Планировка первого этажа

Как раз на первом этаже располагается офис и небольшие зоны для встречи гостей и переговоров, а на втором его квартирка.

Планировка второго этажа
Планировка второго этажа

В принципе ему кроме своего санузла и небольшой спальни, со своим рабочим местом больше ничего не нужно, так как кухня есть и внизу.

Вообще это место просто для временного проживания, так как за городом у него есть свой дом, а тут можно поспать когда устал или когда совсем неохота ехать за город.

В доме так же есть небольшой балкончик, так как вид от входной группы открывается красивый, на этот район города, со старыми зданиями, сейчас превращенными по большей части в современные офисы.

Так же есть три зеленые зоны, одна небольшая прямо при входе, вторая за домом, там как раз тихое и уединенной место, для того что бы просто расслабиться в тени деревьев. И третья самая интересная планируется на крыше, так как крыша будет плоская и эксплуатируемая, на ней он хочет разбить небольшой садик с цветами и невысокими кустарниками.

Меня просили пока разработать только главный фасад здания и планировки, хотя мне хотелось бы сделать этот проект целиком, с интерьерами, но посмотрим, может и дадут такую возможность.

А вы бы хотели жить и работать в одном месте?

Так же приглашаю вас посетить сайт нашего нового проекта, посвященный маленьким домам

https://www.nashmini.com/

А основной наш сайт находится по адресу:

https://homeinthewood.wixsite.com/home

Если возникнут вопросы или предложения, если возникнет желание просто пообщаться, добро пожаловать в комментарии или к нам на сайт, в раздел контакты.

Спасибо за уделенное внимание❗👍

Лайк и комментарий приветствуются❗👍

Подписывайтесь❗😉