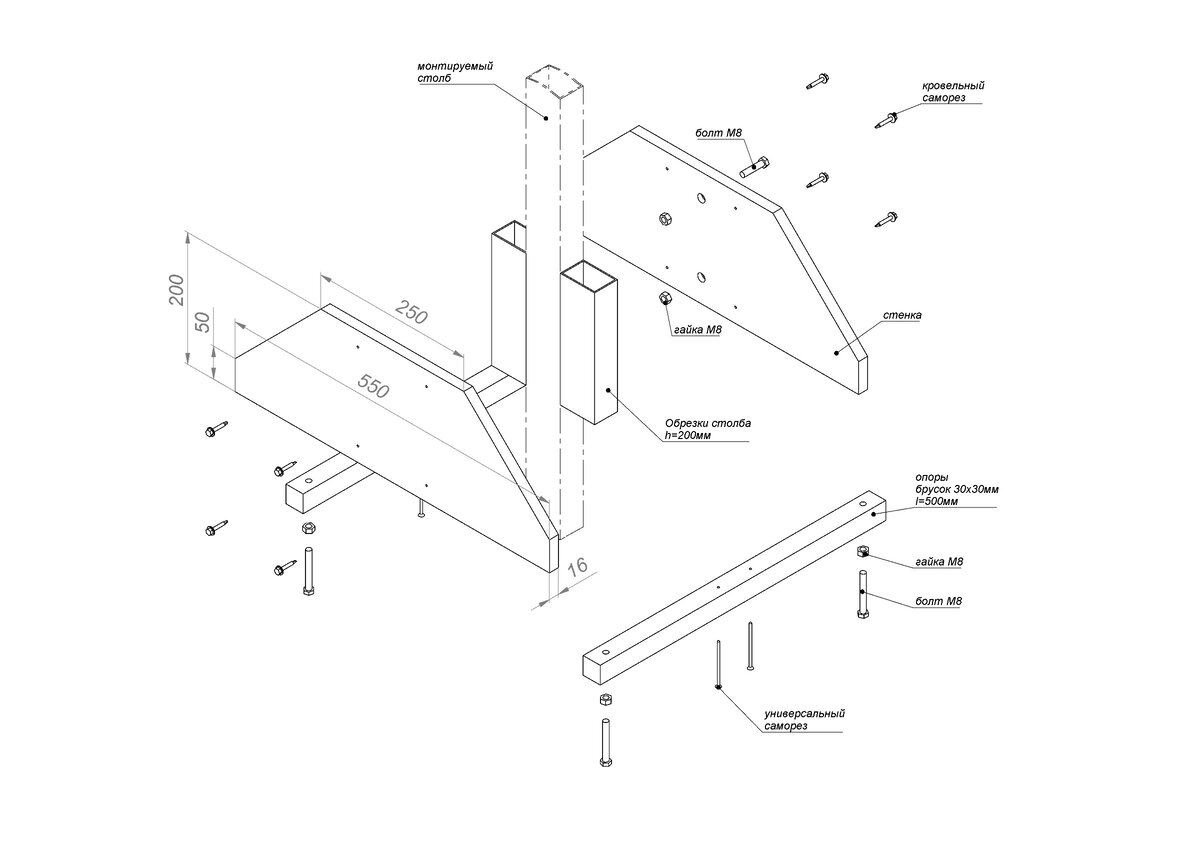
Если Вы сами решили установить забор на своем участке, то конечно же Вам хочется делать это в свое удовольствие, а не сопровождать работу негативными эмоциями. Пользуясь "дедовским" методом установки столбов камнями в распор я получил ряд своих негативных эмоций, когда эти камни постоянно падали у меня на дно. Скорее всего у меня такие руки, но из этого последовала идея создания приспособления о котором я Вам сегодня расскажу. Это приспособление позволяет очень точно, просто и быстро выравнять столбы, и задать высоту столба над уровнем земли. Оно очень легко в изготовлении, лично я потратил 2 часа на два таких приспособления. Ниже приведен чертеж этого приспособления Ниже я приведу ряд фотографий как я изготавливал это приспособление, думаю Вам будет все понятно, а если что то непонятно Вы всегда можете спросить меня об этом в комментариях. Если Вас заинтересовала эта статья, то можете так же почитать про "приспособление для установки перекладин забора" здесь. Спасибо за внимание:)
