Добавить в корзинуПозвонить
Найти в Дзене
A15R

Как я превратил гараж в пассивный доход. Часть 7. Реконструкция.

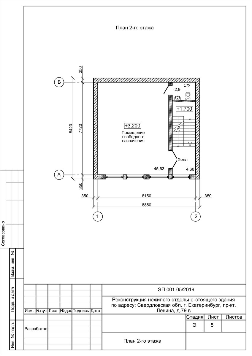
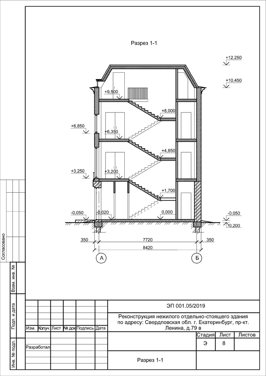
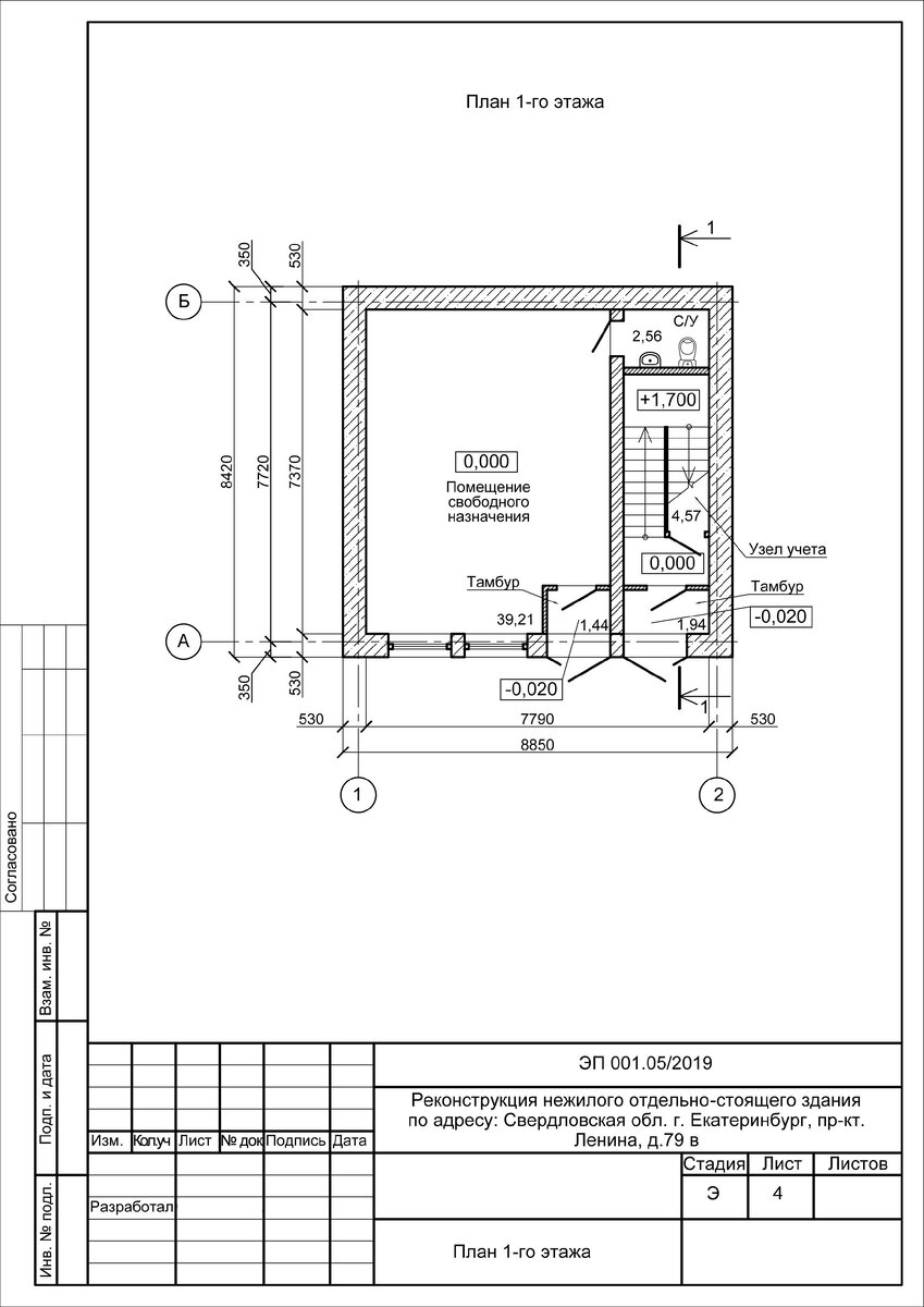
После достижения первоначально поставленных целей, проведения ремонта и сдачи объекта в аренду, передо мной встал вопрос максимально эффективного использования земельного участка. В моем случае увеличение полезных площадей возможно только вверх. В теории последовательность действий выглядит следующим образом: · Изучение ГПЗУ; · Разработка эскизного проекта; · Обследование здания; · Геологические изыскания; · Разработка проектной и рабочей документации; · Экспертиза; · Получение разрешения на реконструкцию в Минстрой; · Производство строительно-монтажных работ и ввод в эксплуатацию. Перечень документов для получения разрешения на строительство предусмотрены в части 7. Ст.51 ГрК РФ (важно, что реконструкция приравнивается к новому строительству и порядок действий идентичный). В части 17 ст. 51 ГрК РФ перечислены случаи, в которых разрешение на строительство получать не требуется, объект капитального строительства не входит в этот перечень. В части 2 ст.49 ГрК РФ, перечислено какая

После достижения первоначально поставленных целей, проведения ремонта и сдачи объекта в аренду, передо мной встал вопрос максимально эффективного использования земельного участка. В моем случае увеличение полезных площадей возможно только вверх.

В теории последовательность действий выглядит следующим образом:

· Изучение ГПЗУ;

· Разработка эскизного проекта;

· Обследование здания;

· Геологические изыскания;

· Разработка проектной и рабочей документации;

· Экспертиза;

· Получение разрешения на реконструкцию в Минстрой;

· Производство строительно-монтажных работ и ввод в эксплуатацию.

Перечень документов для получения разрешения на строительство предусмотрены в части 7. Ст.51 ГрК РФ (важно, что реконструкция приравнивается к новому строительству и порядок действий идентичный). В части 17 ст. 51 ГрК РФ перечислены случаи, в которых разрешение на строительство получать не требуется, объект капитального строительства не входит в этот перечень. В части 2 ст.49 ГрК РФ, перечислено какая проектная документация объектов капитального строительства не требует проведения экспертизы, так же согласно части 3 ст. 49 ГрКРФ Экспертиза проектной документации не проводится в случае, если для строительства или реконструкции объекта капитального строительства не требуется получение разрешения на строительство. В моем конкретном случае потребуется и разрешение на реконструкцию и экспертиза проектной документации.

Составление перечня всех расходов, план инвестиционных оплат и работ и составление плана окупаемости проекта соответствует последовательности действий, которые я описывал в части 3.

На практике, изучив ГПЗУ, здание оказалось в ограничении на действия по изменению внешних параметров.

Местоположение реконструируемого нежилого здания общественно-делового назначения расположено в защитной зоне объекта культурного наследия регионального значения, составляющей 100 м. Т.к. отсутствует утвержденная зона охраны объекта культурного наследия, защитная зона в 100 м принята в соответствии с Федеральным законом от 25.06.2002 г. №73-ФЗ «Об объектах культурного наследия народов Российской Федерации». Это означает, что мне требуется провести работы по установлению зоны охраны объекта культурного наследия. Я запросил коммерческое предложение в НПЦ ГБУК СО (Государственное бюджетное учреждение культуры Свердловской области «Научно-производственный центр по охране и использованию памятников истории и культуры Свердловской области»), стоимость разработки проекта зон охраны объекта культурного наследия составила сумму эквивалентную сумме проведения работ по подключению здания к сетям водоснабжения и канализации. В данный момент, возможность проведения работ по подготовке документов для реконструкции отсутствует.

Итоги проекта, плюсы и минусы инвестиций я подведу в следующей статье.