Найти в Дзене

Просторный дом для 6 соток

Прекрасный дом вписанный в участок.
Вот чувствовал же что, что то делаю не так, наконец пришло понимание этого момента. Мы же все что делаем, мы фактически проектируем и строим кубик, да он может быть вытянутый, прямоугольный или состоять из нескольких кубиков, но это все равно кубик.
Оглавление
Прекрасный дом вписанный в участок.
Прекрасный дом вписанный в участок.

Вот чувствовал же что, что то делаю не так, наконец пришло понимание этого момента. Мы же все что делаем, мы фактически проектируем и строим кубик, да он может быть вытянутый, прямоугольный или состоять из нескольких кубиков, но это все равно кубик. Ну и конечно этот самый кубик начинаем двигать по участку, 3 метра от забора, 5 метров, да все равно он остается кубиком. В дереве, оштукатуренный или в кирпиче, да ерунда, все равно это кубик на участке.
Да он имеет право на жизнь, но участки мы почти не используем. А тут как и с планировками подход должен быть, зачем потерянные пространства или коридоры вокруг дома (те самые три метра от забора). Ведь чем больше мы их сократим, тем более выгодно можно будет поставить дом на участке, тем больше места останется, а тут как и всегда, опять же все упирается в деньги, каждая сотка это довольно крупная сумма, так почему не сократить необходимые сотки.
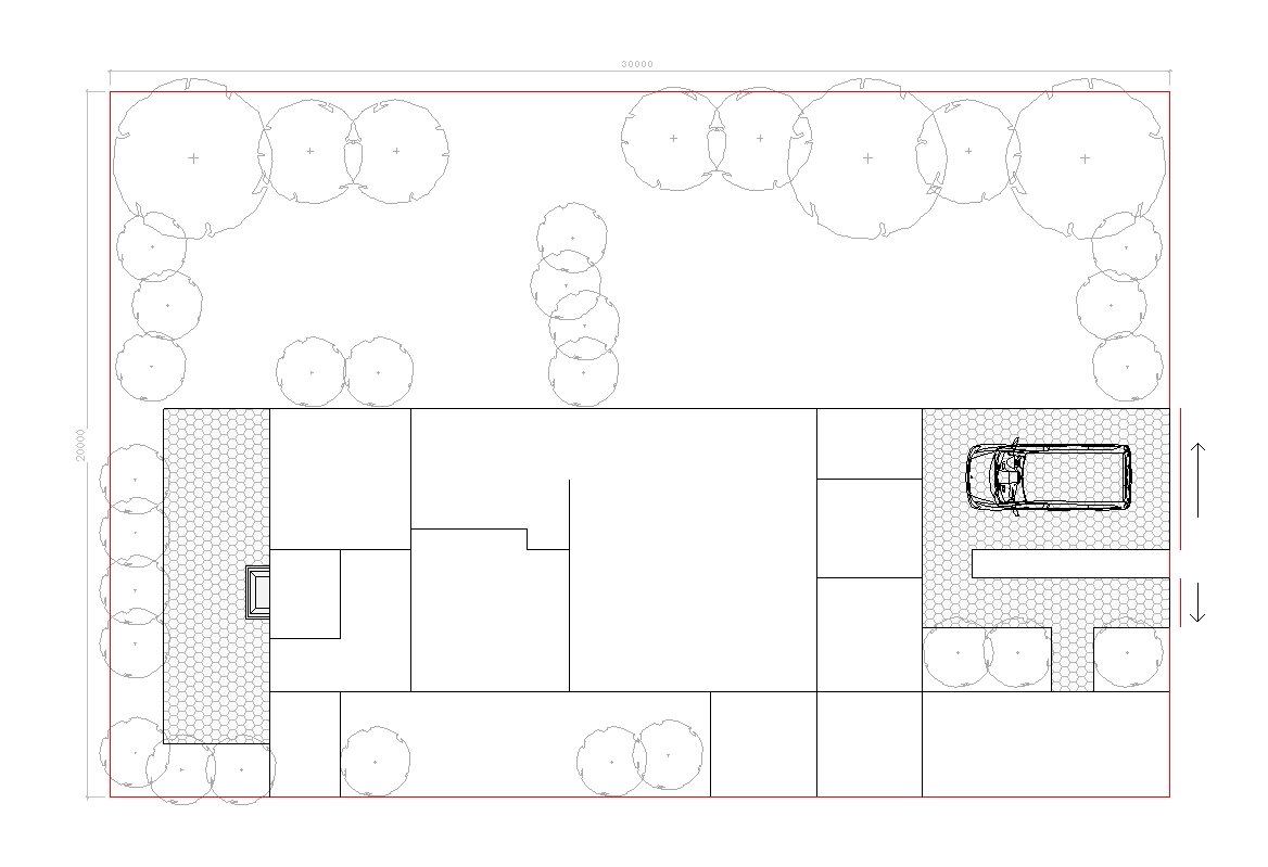
В качестве примера выкладываю проект дома 120 кв. м., плюс 40 кв. м. сараи, плюс внутренний дворик с выходом из спален, плюс место для барбекю и частично эксплуатируемая кровля, плюс навес под машину и небольшая мастерская и половина участка свободна. А сам участок всего 6 соток, то есть довольно стандартный размер 20х30 метров.

Немного о том как это все делается, для начала эскиз, можно так или ручками на бумажке просто кружками отметить все помещения.

Эскиз планировки дома и участка
Эскиз планировки дома и участка

После накидывается все в чертежной программе, что то приходится исправлять

Планировочные решения, с привязкой к участку
Планировочные решения, с привязкой к участку

Потом поднимается обьем

Вид на заднюю часть дома и зону для барбекю
Вид на заднюю часть дома и зону для барбекю
Вид на мини дворик, с выходами из спален
Вид на мини дворик, с выходами из спален
Вид с полупрозрачной кровлей, видно планировку дома в обьеме.
Вид с полупрозрачной кровлей, видно планировку дома в обьеме.
Вид на вьездную группу, навес под машину и участок
Вид на вьездную группу, навес под машину и участок

И в самом конце, когда все уже нравится, делается визуализация дома.

Вид на навес для машины и двор
Вид на навес для машины и двор
Вид на навес для машины и вход в дом
Вид на навес для машины и вход в дом
Вид на двор и окна кабинета.
Вид на двор и окна кабинета.
Общий вид на участок
Общий вид на участок
Общий вид на участок
Общий вид на участок

Так же приглашаю вас посетить сайт нашего нового проекта, посвященный маленьким домам

https://www.nashmini.com/

А основной наш сайт находится по адресу:

https://homeinthewood.wixsite.com/home

Если возникнут вопросы или предложения, если возникнет желание просто пообщаться, добро пожаловать в комментарии или к нам на сайт, в раздел контакты.

Спасибо за уделенное внимание❗👍

Лайк и комментарий приветствуются❗👍

Подписывайтесь❗😉