Добавить в корзинуПозвонить
Найти в Дзене

Дизайн интерьера и визуализация таунхауса 60 м2

Планировочное решение с расстановкой мебели для таунхауса. Всегда начинаю свою работу в планировочных решений - это основа, самый начальный этап, исходя из которого строится все остальное. Итак поехали, дано: Жители - молодая пара с планами пополнения семейства в ближайшем будущем. Имеем два этажа. На первом этаже кухонная зона с небольшой зоной отдыха у окна, в центре - обеденный стол на 4 персоны. На втором этаже санузел и гостиная с большим диваном, рабочее место и проектор для просмотра кино. Т.к. второй этаж имеет высоту 4500 мм, в глубине дома, решено было сделать антресоль-спальню. Многие интересуются, а как же устроена работа дизайнера интерьера. Поэтому этот проект хочу сделать для вас с подробным поэтапным ходом работы. Обещала сделать для вас подробный проект с поэтапным построением, но так сильно увлеклась процессом моделирования интерьера, что совсем забыла делать скриншоты по ходу работы..эх, очнулась когда было почти все готово, как нибудь в следующий раз, на другом пр
Оглавление

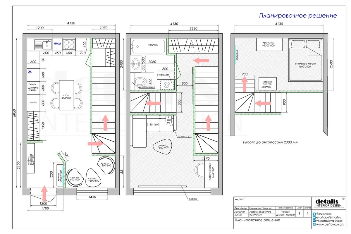
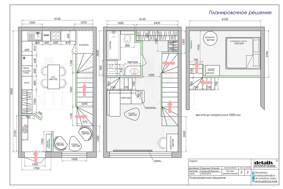
Планировочное решение с расстановкой мебели для таунхауса.

Всегда начинаю свою работу в планировочных решений - это основа, самый начальный этап, исходя из которого строится все остальное.

Итак поехали, дано:

Жители - молодая пара с планами пополнения семейства в ближайшем будущем.

Имеем два этажа. На первом этаже кухонная зона с небольшой зоной отдыха у окна, в центре - обеденный стол на 4 персоны.

На втором этаже санузел и гостиная с большим диваном, рабочее место и проектор для просмотра кино. Т.к. второй этаж имеет высоту 4500 мм, в глубине дома, решено было сделать антресоль-спальню.

-2

Многие интересуются, а как же устроена работа дизайнера интерьера. Поэтому этот проект хочу сделать для вас с подробным поэтапным ходом работы.

Обещала сделать для вас подробный проект с поэтапным построением, но так сильно увлеклась процессом моделирования интерьера, что совсем забыла делать скриншоты по ходу работы..эх, очнулась когда было почти все готово, как нибудь в следующий раз, на другом проекте расскажу всю поднаготную работы, которая "приводит" к красивым картинкам, которые вы видите.

Перейдем к дизайну дома.

На первом этаже прихожая, небольшая зона отдыха у окна и большая кухня с зоной столовой. В кухне разместился большой встроенный гарнитур до самого потолка, встроенную духовку с микроволновкой разместили повыше - в пенале, чтобы было удобно готовить. Варочная по центру, а мойка в углу, там располагаются все коммуникации. В одном из шкафов спрятан котёл отопления и подогрева воды. Под лестницей расположена вместительная кладовка, в которой полочки для хранения и место для велосипеда. под лестничным маршем - встроенный шкаф.

Посмотрим картинки первого этажа, так будет понятнее))

-3
-4
-5
-6
-7
-8
-9
-10
-11
-12

На втором этаже таунхауса располагается просторная гостиная - основная комната, в которой семья будет проводить большую часть времени.

Там же в гостиной - "рабочий кабинет" у окна, санузел и еще один большой шкаф для хранения. Вместо обычного телевизора в комнате проектор.

Экран вверху большого панорамного окна, опустив его вниз, можно расположиться на диване и посмотреть "телек".

В санузле мы расположили ванную со стеклянными шторками, инсталляцию, зеркало с подсветкой над раковиной и стиральную машинку под лестницей.

На третьем этаже, который надстроили, обустроилась небольшая спальня, сразу предусмотрели небольшую детскую кроватку и пеленальный комодик.

Проект находится на стадии согласования, потом в альбоме проекта будут новые скорректированные изображения.

-13
-14
-15
-16
-17
-18

-20