Добавить в корзинуПозвонить
Найти в Дзене
INMYROOM

5 крутых идей на кухне-гостиной, которые может повторить каждый

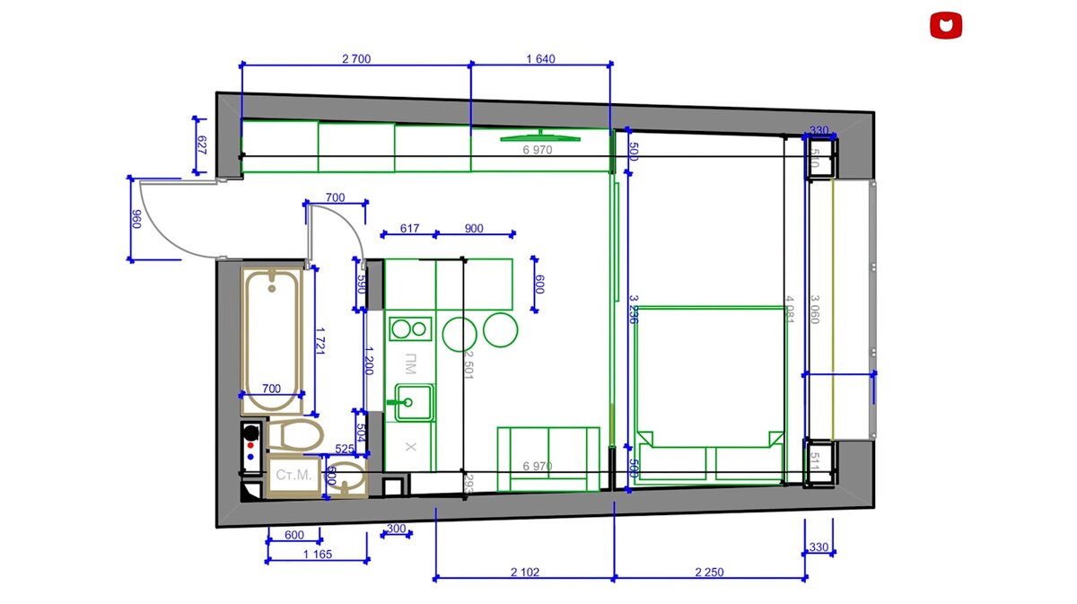
Возможно ли организовать полноценную кухонную зону с гостиной всего на 12 квадратах? Именно это и сделала дизайнер Екатерина Уланова в крошечной однушке общей площадью 29 м².
Ввиду ограниченного пространства и бюджета, кухню решили совместить с гостиной. Несмотря на небольшие габариты, она оборудована всем необходимым для жизни: холодильником, духовкой с функцией СВЧ, варочной панелью,
Оглавление

Возможно ли организовать полноценную кухонную зону с гостиной всего на 12 квадратах? Именно это и сделала дизайнер Екатерина Уланова в крошечной однушке общей площадью 29 м².

Ввиду ограниченного пространства и бюджета, кухню решили совместить с гостиной. Несмотря на небольшие габариты, она оборудована всем необходимым для жизни: холодильником, духовкой с функцией СВЧ, варочной панелью, посудомоечной машиной.

Как удалось все это уместить – читайте дальше.

-2

1. Функциональные открытые полки

Екатерина спланировала специальные ниши с розетками для мелкой бытовой техники: кофе-машины, чайника и др. На одной из полок расположен удобный «фонтан» от IKEA, позволяющий в любой момент попить воды. Все устройства всегда под рукой – не нужно ничего искать и переносить с места на место. В нишах также предусмотрены дополнительные розетки.

-3
-4

2. Стильный и экономичный фартук

Изюминку фартуку на кухне придает необычное оформление зелеными стеклоблоками, которые соединяют кухню с ванной. При включенном свете в санузле они дают мягкое зеленое освещение на кухне. Также это очень бюджетное решение для фартука, за которым легко ухаживать. Цена 1 стеклоблока с Авито всего 35 рублей. Екатерина использовала 18 штук.

-5

3. Экологичные фасады

Кухонные фасады ИКЕА КУНГСБАККА выполнены из переработанных пластиковых бутылок. Экологичные шкафы и столешница из дуба - еще одна изюминка этой маленькой кухни.

-6
-7

Раковину Екатерина выбрала из искусственного камня, а индукционную варочную поверхность на две конфорки. Хозяин живет один, поэтому такой выбор вполне очевиден. Мини-кухня полностью оснащена всей техникой, предусмотрена и встроенная вытяжка.

-8

4. Барная стойка

Современная барная стойка была изготовлена под заказ. За ней спрятали полноценную посудомоечную машину. Два полубарных стула в стиле лофт дополняют общую концепцию кухонной зоны и идеально сочетаются с зелеными стеклоблоками и мягким диваном.

-9
-10

5. Техника 2в1

Идеальным решением для маленького метража на кухне станет техника, которая совмещает с себе несколько функций. Например, духовой шкаф, который выбрала для своего проекта Екатерина, совмещает в себе функции СВЧ-печи и гриля. Таким образом на минимальной площади получилась максимально оснащенная техникой кухня.

-11

Для хозяина-холостяка, обожающего путешествовать, такая кухня – идеальный вариант.

Посмотрите наши прямые, угловые, со спальным местом диваны. Подарок 🎁 1000 ₽ на первый заказ от 20 000 руб. Введите промокод ZEN при заказе на INMYROOM (действуют ограничения).

-12

Ставьте лайк и подписывайтесь на канал INMYROOM.RU, чтобы видеть наши публикации в своей ленте!

Еще больше вариантов дизайна типовых российских квартир смотрите на нашем youtube-канале INMYROOM TV. А в нашем маркетплейсе вы можете купить тысячи красивых предметов мебели и декора.

Смотрите нас в Youtube, Instagram, Facebook, Вконтакте