Найти в Дзене
INMYROOM

Как жить на широкую ногу на 28 квадратах в Москве. Неужели большая кровать влезла?

В пределах крошечной однушки не так-то просто развернуться на полную – вечно не хватает места. Но эта квартира вовсе не выглядит тесной, несмотря на скромный метраж 28 м².
Много света, пространства и красивой мебели – именно так дизайнеры Оксана Станиславова и Алена Дзуцева решили проблему ограниченной жилплощади.
Оглавление

В пределах крошечной однушки не так-то просто развернуться на полную – вечно не хватает места. Но эта квартира вовсе не выглядит тесной, несмотря на скромный метраж 28 м².

Много света, пространства и красивой мебели – именно так дизайнеры Оксана Станиславова и Алена Дзуцева решили проблему ограниченной жилплощади.

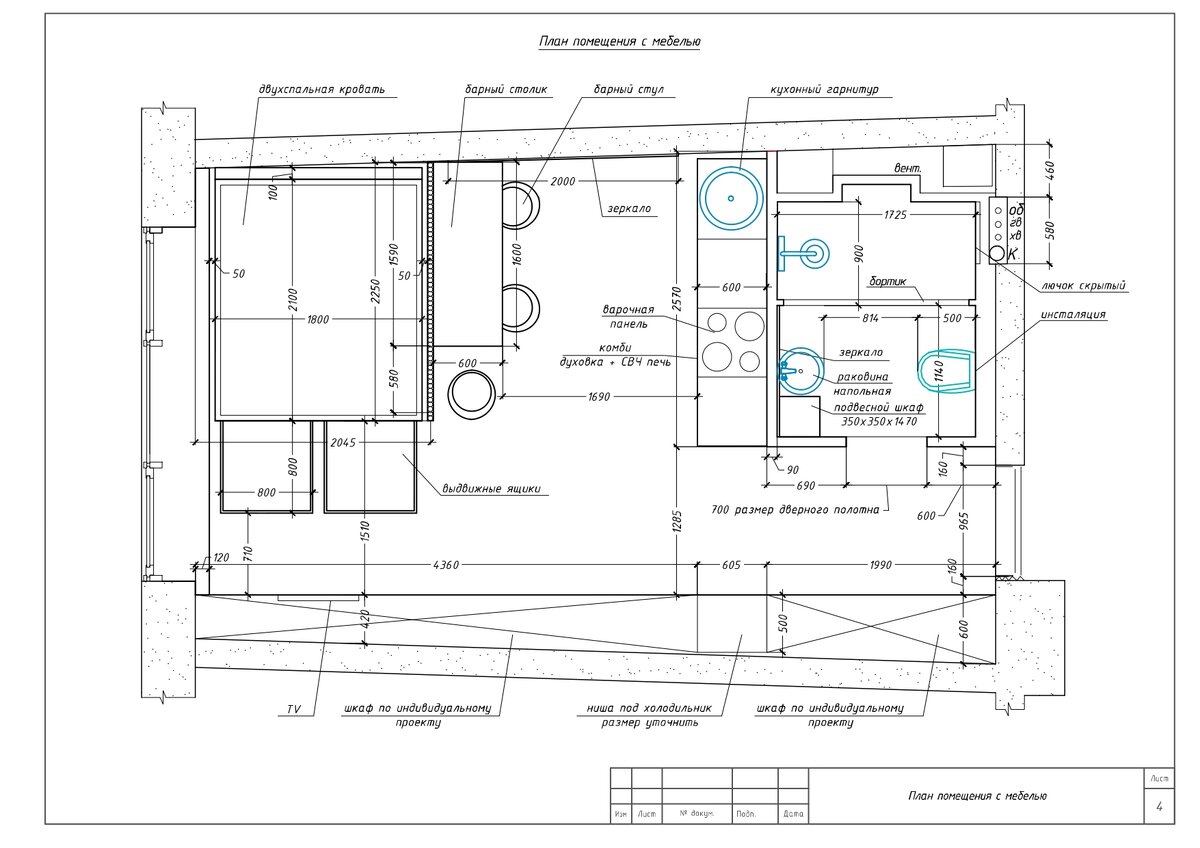
Планировка

Хозяин малогабаритки, молодой студент, попросил студию SODA оформить ее максимально функционально и стильно. Помимо кухни и спальни, нужно было организовать удобную систему хранения.

Исходная форма квартиры – трапециевидная: широкая у входа и узкая у окна. Среди преимуществ изначальной планировки можно было выделить высокие потолки, большое окно и один из последних этажей. Все это дизайнеры использовали во благо – у окна разместили спальню и отделили ее от кухни перегородкой, а ближе ко входу оборудовали ванную.

-2

Кухня и санузел

Поскольку готовить собственник планировал редко, было решено установить варочную панель всего с двумя конфорками.

-3

Визуально кажется, что шкафов слишком много, но на деле это не так. Нижний ярус полностью занимает бытовая техника – стиралка, посудомойка и духовка. На верхнем ярусе хранится посуда и кухонная утварь, а холодильник встроен в шкаф.

-4
-5
-6
-7

В санузле органично соседствуют стекло и керамогранит под камень, а также мраморная раковина, установленная на полу. Душевая кабина шириной 90 см имеет довольно большую стеклянную перегородку, поэтому дверь ставить не стали. Ванная комната в целом получилась минималистичной, как любит большинство мужчин.

-8
-9

Система хранения

Системе хранения заказчик просил уделить особое внимание, поэтому всю мебель изготавливали по эскизам. В квартире был установлен гигантский шкаф во всю стену длиной 7,5 м и высотой 3 м. Это позволило разместить там не только одежду, но и технику, а также ТВ-зону.

Для хранения сезонных вещей повесили высокие и функциональные антресоли.

-10

Отделка и декор

В качестве отделки дизайнеры выбрали краску, керамогранит, стекло, кожу, текстиль и прочие качественные материалы. Умело совместив их в интерьере, им удалось добиться деликатного и в меру броского декора. Так, выигрышно смотрятся в пространстве кожаные стулья, зеркало и люстра с латунной рамкой, не говоря уже о барной стойке из искусственного камня.

-11

Благодаря дизайнерской задумке, мебель на кухне и шкаф выглядят однотонными, кухонные шкафы и фартук – с глянцевым блеском, а шкаф — наполовину матовым. При этом все части помещения воспринимаются как одно целое.

-12

Нам интерьер очень понравился. Выглядит свежо и неизбито. А как вам?

Посмотрите наши матрасы и кровати для спальни и детской.
Подарок 🎁 1000 ₽ на первый заказ от 20 000 руб. Введите промокод ZEN при заказе на INMYROOM (действуют ограничения).

-13

Ставьте лайк и подписывайтесь на канал INMYROOM.RU, чтобы видеть наши публикации в своей ленте!

Еще больше вариантов дизайна типовых российских квартир смотрите на нашем youtube-канале INMYROOM TV. А в нашем маркетплейсе вы можете купить тысячи красивых предметов мебели и декора.

Смотрите нас в Youtube, Instagram, Facebook, Вконтакте