Добавить в корзинуПозвонить
Найти в Дзене

Проёмы в несущих стенах

Семь лет назад, чтобы узаконить выполнение проемов в несущих стенах было достаточно дополнительно к основному комплекту чертежей проекта перепланировки добавить чертежи и расчет конструктора. Очень показательным является проект элитной квартиры на улице Галактионова в Казани, расположенной на последнем этаже, в котором мне удалось узаконить выполнение 6 проемов в несущих стенах. Такая потребность была вызвана оригинальным планировочным решением, которое полностью удовлетворяло все потребности клиентов. Этот проект знаменателен тем, что я выполняла его под ключ, а именно дизайн, отделку и согласование проекта перепланировки. Более того, конструктор кроме расчетов выдала нам указания к производству работ по укреплению проемов, и я лично осуществляла надзор и контроль. Как обычно, рабочие решили облегчить себе жизнь и привезли какие-то левые тонкие уголки, которые даже близко не подходили под спецификацию. Когда же им пришлось привезти металлические изделия, указанные в проекте, они мен
Пример первый. Фактический запрет на выполнение проемов в несущих стенах.
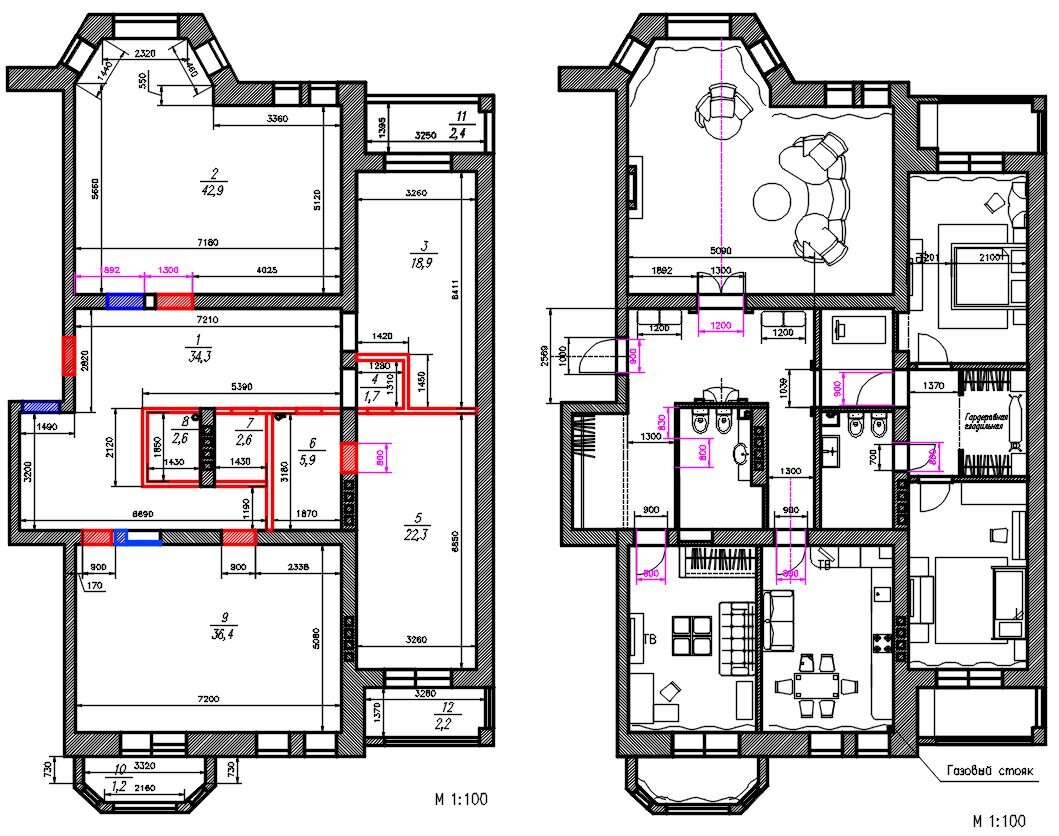
Пример первый. Фактический запрет на выполнение проемов в несущих стенах.

Семь лет назад, чтобы узаконить выполнение проемов в несущих стенах было достаточно дополнительно к основному комплекту чертежей проекта перепланировки добавить чертежи и расчет конструктора. Очень показательным является проект элитной квартиры на улице Галактионова в Казани, расположенной на последнем этаже, в котором мне удалось узаконить выполнение 6 проемов в несущих стенах. Такая потребность была вызвана оригинальным планировочным решением, которое полностью удовлетворяло все потребности клиентов. Этот проект знаменателен тем, что я выполняла его под ключ, а именно дизайн, отделку и согласование проекта перепланировки. Более того, конструктор кроме расчетов выдала нам указания к производству работ по укреплению проемов, и я лично осуществляла надзор и контроль. Как обычно, рабочие решили облегчить себе жизнь и привезли какие-то левые тонкие уголки, которые даже близко не подходили под спецификацию. Когда же им пришлось привезти металлические изделия, указанные в проекте, они меня проклинали, так как конструктор по старой советской традиции, заложила такой запас прочности, что швеллера или двутавры, которые выгрузили у подъезда были просто неподъемные! Но все-таки работа была выполнена грамотно, и я спокойна и уверена в безопасности перепланировки и надежности новых проемов.

-2

Что же происходит сейчас с проемами в несущих стенах?

-3

После многочисленных инцидентов с обрушением зданий из-за неграмотной перепланировки, чиновники, недолго думая, решили снять с себя эту головную боль и создали такой регламент, по которому просто не реально получить разрешение на устройство проема в несущей стене. Идея очень простая - теперь такие работы относятся не к перепланировке, а к реконструкции, а реконструкция общедомовой собственности, которой являются несущие стены и даже подоконные блоки, должна быть одобрена практически 100% количеством собственников. Это невозможно по двум причинам. Во-первых, если дом многоэтажный, то среди сотни жильцов всегда найдутся упертые соседи, которые не только ничего не подпишут, они даже дверь не откроют. А во-вторых, сами Администрации всячески препятствую появлению такого прецедента. У меня был такой опыт. В одно-подъездном доме мы собрали подписи всех собственников. Так администрация предъявила нам некие подвальные помещения, собственников которых мы так и не смогли найти. А клиентам, которые поехали сами в администрацию выяснять что же происходит, открытым текстом сказали, что не хотят создавать прецедент. И есть еще один фактор. При покупке квартиры, как правило, люди хотят побыстрее заселиться и у многих не хватает терпения пройти весь этот путь до конца и получить разрешение, а если ремонт уже сделан, то идти в суд люди боятся, ведь никто не даст им гарантии, что суд узаконит перепланировку, по которой получен отказ в администрации. Важно также понимать, что судьи тоже не хотят брать на себя ответственность и убедить их в принятии нужного для вас решения очень сложно.