Добавить в корзинуПозвонить
Найти в Дзене

Баня на двоих. Наша маленькая, но не совсем бюджетная баня.

Я никогда не была заядлой любительницей бани. Я в ней просто ничего не понимала. У меня баня ассоциировалась с моим детством, когда мы с мамой раз в неделю ходили в городскую баню мыться. Мы жили тогда в частном доме без удобств и это было просто необходимостью. Потом мы получили квартиру и баню заменила ванная. Шли годы, менялись квартиры, менялись ванные. И так было до тех пор, пока мы с мужем н

Я никогда не была заядлой любительницей бани. Я в ней просто ничего не понимала. У меня баня ассоциировалась с моим детством, когда мы с мамой раз в неделю ходили в городскую баню мыться. Мы жили тогда в частном доме без удобств и это было просто необходимостью. Потом мы получили квартиру и баню заменила ванная. Шли годы, менялись квартиры, менялись ванные. И так было до тех пор, пока мы с мужем не построили свой дом. Муж просто бредил баней. Я только и слышала: "Хочу баню", "Эх, если бы сейчас была баня...".

Напомню, что мы переехали в загородный дом в самом начале 2013 года, а в 2015 году начали строительство бани. Так как лишних денег у нас не было, а у мужа руки золотые, строить баню он решил сам.

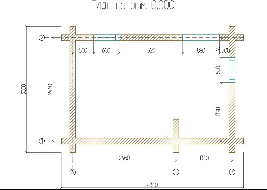
Было решено делать небольшую баню для двоих. Просмотрено большое количество проектов и форумов, но мужа все не устраивало. В итоге, как и дом, баня делалась по индивидуальному проекту. Так как бюджет был ограничен, расчет шел на уменьшение отходов бруса. Стандартная длина бруса 6 метров, и поэтому все привязано к этому размеру. У соседей огромные бани с телевизорами, спутниковыми антеннами и т.д. Мы решили что нас вполне устроит вот такая планировка.

Планировка бани
Планировка бани

Установили опалубку под баню.

Опалубка
Опалубка

Залили фундамент

Готовый фундамент
Готовый фундамент

Все под строгим контролем

-4

Заказали и привезли брус.

Смета на домокомплект бани и пиломатериал
Смета на домокомплект бани и пиломатериал

Материал бруса ель.
Материал бруса ель.
Все пронумеровано, собирать очень просто.
Все пронумеровано, собирать очень просто.

Муж начал собирать баню.

На фундаменте предусмотрена площадка для теплового щитка
На фундаменте предусмотрена площадка для теплового щитка

Крышу покрыли металлочерепицей

-10

-11

Чтобы не топить улицу был сложен кирпичный однооборотный щиток

-12

Установлена печь из нержавейки с закрытой каменкой.

-13

Выкопан септик с использованием бесплатных покрышек, смонтирована система слива воды в зимнее время.

-14

Подведена холодная вода из дома. Труба заглублена всего на 20 сантиметров. Так как на участке естественный уклон, то расчет на то, что воду из трубы зимой мы будем сливать.

Укладка водяной трубы
Укладка водяной трубы

Теплообменник для нагрева воды установлен на печную трубу, на стене бак из нержавейки емкостью 60 литров. На печи установлен парогенератор.

-16

Смонтирован полок для парки шириной 80 см, для двоих более чем достаточно. Высота от пола до потолка получилась 230 см. После парки и проветривания внизу вполне комфортная температура. Для проветривания есть окна в парной и предбаннике. Для удержания пара потолок и стены до двери проложены металлической фольгой.

Смонтирован полок для парки шириной 80 см, для двоих более чем достаточно.
Смонтирован полок для парки шириной 80 см, для двоих более чем достаточно.

Предбанник небольшой, но мы именно так и хотели. Толпой ходить в баню не приучены, чай и пиво пьем на веранде.

Снаружи покрасили краской на водной основе , парную покрыли льняным маслом, предбанник прозрачным лаком.

-19

Почти готовая банька

Вот такая получилась  банька на двоих.
Вот такая получилась банька на двоих.

Собаки естественно принимали самое активное участие в строительстве

-21

Уложили отмостку из бесплатного натурального камня с соседнего карьера с последующей посадкой газонной травы.

-22

В итоге баня с отмосткой приобрела вот такой вид:

-23

Тестирование проводилось летом 2016 года.

Медово-соляная маска
Медово-соляная маска

-25

Спустя три года впечатления только самые положительные. Вторую баню мы строили бы точно также.

Теперь я отношусь к бане как к месту, где можно набраться сил, отдохнуть. провести косметические процедуры. После бани я чувствую себя свежей и отдохнувшей. Летом мы наливаем в бак холодную воду и обливаемся ей, а зимой купаемся в снегу. Раньше я и не подозревала, какое это удовольствие.

Хочу отметить что строили полностью своими силами с помощью сына и зятя за что им большое спасибо.

Если вам интересны мои публикации поставьте палец вверх и подпишитесь на мой канал и тогда они будут чаще появляться в вашей ленте новостей, поделитесь рассказом с друзьями в соц. сетях и тогда они будут чаще появляться в вашей ленте новостей. А я буду стараться писать еще. Спасибо за внимание!

Связаться со мной можно через личную страничку в контакте https://vk.com/id352204112

Моя группа в контакте Куклы Марины Еремеевой https://vk.com/kuklamechta2018

И Кухня нарядная и стильная https://vk.com/kuhnyamechta