Найти в Дзене
4living

Малогабаритная однушка в Иране

Проект «Azari Architects Studio»

Зачастую именно конфигурация и площадь квартиры диктует дизайнерское решение оформления жилого пространства. Этот проект – прекрасный пример внимательного отношения к обустройству комфортного жилья на малом количестве квадратных метров. 

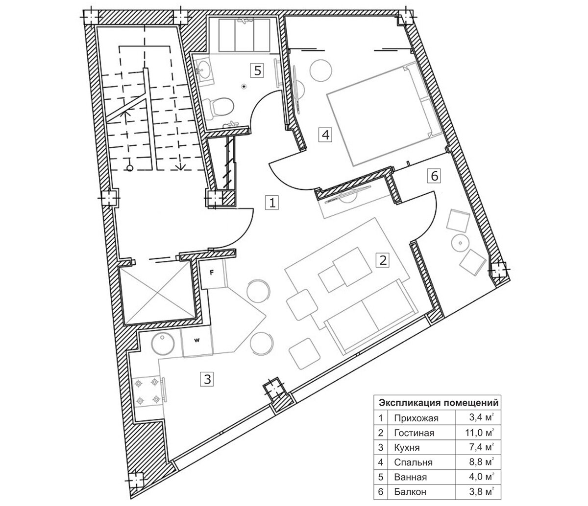
Сведения о квартире: однокомнатная квартира общей площадью 38,4 кв. м в Тегеране.

Владельцы квартиры: супружеская пара.

Пожелания клиентов: создать функциональный интерьер квартиры, предназначенной для временного проживания либо аренды. 

-2

План однокомнатной квартиры после перепланировки.

Планировка малогабаритной квартиры в столице Ирана имела своеобразную конфигурацию, которая и определила решение дизайнеров объединить прихожую, гостиную и кухню в единое жилое пространство и тем самым выкроить место для спальни. Новая планировка малогабаритной квартиры позволила визуально расширить маленькое пространство и сделать его более комфортным для проживания супружеской пары.

Для экономии пространства в кухне вместо отдельно стоящего стола было решено оборудовать обеденную зону с помощью полуостровной столешницы, а холодильник сделать встроенным, чтобы он не выделялся на фоне мебели. Это создало визуально цельную картину кухонного гарнитура.

Гостиная представляет собой небольшое пространство с диваном, ТВ-панелью, полками, набором пуфиков и оригинальными низкими столиками.

Скрытыми от посторонних глаз оказались только спальня и ванная комната. Для придания спальне более современного вида одна из стен отделана объемными деревянными панелями с теплой текстурой.

Санузел было решено сделать в гамме, созвучной с общей стилистикой квартиры — мозаика и плитка подобраны в теплых охристых цветах, в тон деревянным элементам. Отделка мозаикой с рисунком «микс» очень удачно выделяет стену душевой.

В целом квартира получилась достаточно светлой, выдержанной в едином стиле, функциональной и комфортной для проживания. 

-3

Чтобы не загромождать пространство, в гостиной были использована пара мини-столиков разной высоты, которые при необходимости можно сложить.

-4

Из гостиной есть выход на балкон, где после дневной жары можно насладиться вечерней прохладой.

-5

Рабочая кухонная поверхность переходит в угловую столешницу, заменяющую обеденный стол.

-6

Чтобы визуально сгладить ломаную конфигурацию спальни, шкаф закрыли зеркальными дверцами.

-7

Как альтернатива ванне была выбрана просторная душевая кабина с керамическим поддоном и стеклянной дверью-перегородкой.