Добавить в корзинуПозвонить
Найти в Дзене
Живой разум

Возможно ли в СНТ зарегистрировать дворец?

Удалось ли мне это сделать? Ответ будет в статье...
Оглавление

В своей практике я довольно часто встречал какие-то необычные случаи. Сегодня я бы хотел поделиться одним из таких случаев.

Как все начиналось

Началось все обыкновенно. Заказчик обратился с просьбой зарегистрировать жилой дом на территории СНТ.

Заказчиком был юрист одного юридического лица, с которым мы часто работали и работаем. Единственный момент, который меня смутил, это то, что площадь домика, по оценкам Заказчика, составляет примерно 1400 кв.м.

Данное значение впритык подходит к максимально разрешенной площади застройки на той территории, да и сам домик в СНТ с площадью 1400 кв.м смотрится необычно.

Ну, делать нечего, договор подписали, аванс получили, к работе приступили.

Произвели выезд, а там…

Выезд на объект

Территория данного СНТ охраняется отдельным пунктом охраны, для приезда необходимо заранее оформлять пропуска, а иначе на тебя спустят голодных собак.

Внешне домик из себя ничего особенного не представляет, за исключением больших витражных окон в человеческий рост и, конечно, того факта, что площадь домика примерно 1400 кв.м.

При этом внутри было представлено убранство, достойное если не королей, то каких-нибудь послов из других стран точно.

Подвал

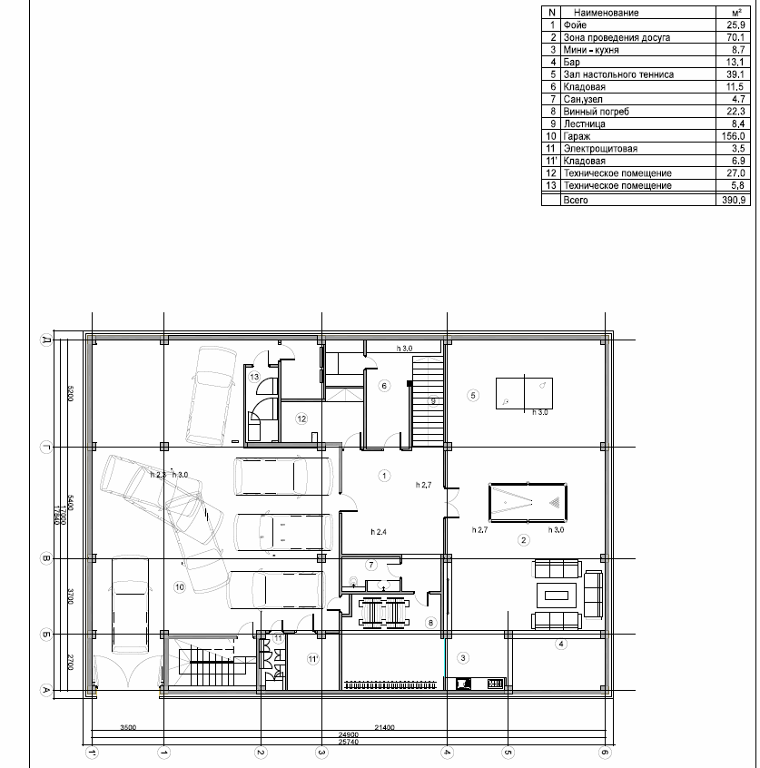
В подвале можно обнаружить вполне себе вместительный гараж на 5 автомобилей.

-2

Припарковав свой Феррари внутри этого дома, можно сразу перейти в винный погреб и взять бутылочку Каберне Совиньон.

С данной бутылочкой можно отправиться в бар, а можно насладиться игрой в настольный теннис или бильярд в огромном просторном помещении, где также удобно разместилась гостевая.

1-й этаж

Если проводить время настолько активно нет желания, то на 1-м этаже очень удобно расположился бассейн, массажная, хамам, где можно расслабиться от тяжелых трудовых будней.

-3

Для визуального наслаждения на 1-м этаже также обустроено пространство под оранжерею, где можно спокойно выращивать цветы в лучших традициях заката карьеры Дона Корлеоне.

2-й этаж

2-й этаж я бы охарактеризовал как «этаж прислуги», т.к. здесь большое количество гардеробных, спален, прачечная, кухня.

Также на этом этаже есть отдельный тренажерный зал с площадью хорошей однушки, для покупки которой в Москве нужно потратить весомую часть своей жизни.

Мансарда представлена исключительно спальными комнатами.

На каждом этаже есть гостиные и комнаты отдыха, а также санузлы, чтобы не переживать по поводу неудобных лестниц.

Само здание возведено из кирпича, поэтому прослужит век, а то и больше.

Основные конструкции возведены, но отделка еще была не завершена и, самое обидное, бассейн не выложен плиточкой, поэтому плавать в нем пока нельзя.

Информацию о кадастровом номере и адресе данного домика я, понятное дело, размещать не могу.

Завидую ли я?

Когда люди говорят, что "хочу себе отдельный домик у озера, чтобы жить там", я себе буду представлять исключительно такой дом.

-4
Я бы хотел себе такой дом. Но я не завидую, потому что Феррари я, например, тоже хочу, но также, как и этот дом, он мне не нужен.

Рассказ о данном домике я повел исключительно с той целью, чтобы дать понять, что кое-кому на Руси все-таки жить то хорошо. Да и проблем с регистрацией особых не было, чего просто невозможно представить в стандартной ситуации. Очевидно, что без сопровождения здесь не обошлось.

Данные люди занимаются строительным бизнесом, деньги из бюджета не воруют, благодаря им, люди могут купить квартиру или просиживать свою жизнь в удобном теплом офисе.

Данный случай наглядно продемонстрировал мне очередной раз, что если ты хочешь хорошо жить (под «хорошо» я имею в виду достаточное финансовое состояние), то необходимо много раз подумать, прежде чем начать применять себя где-либо, т.к. в независимости от того, много у тебя знаний и опыта или нет, основным фактором является твоя способность «держать нос по ветру».