Найти в Дзене
stroyysam

Как планирую обычную, бюджетную парную. Про баню, неопытному пользователю, часть вторая.

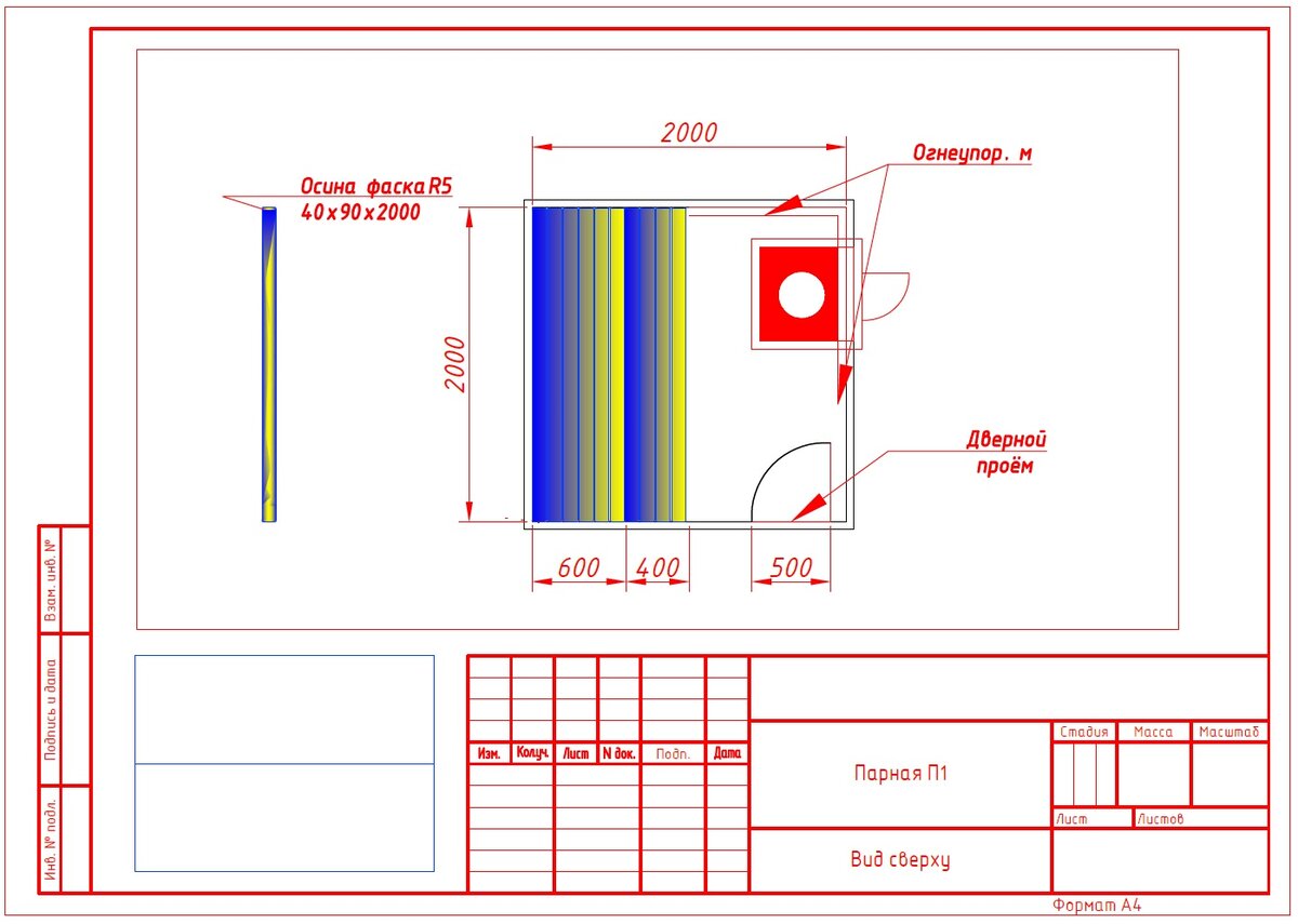
Обычная парная в бюджетной бане это так называемая «8 кубовая» парная. Всё просто: 8м3 это 2 х 2м по периметру, (4м2), и 2м высоты. 4 х 2 = 8.
Исходя из практики, именно минимальные 8м3 чистового размера парной обеспечивают минимально-идеальное соотношение цена-качество-функциональность.
Конечно, приходилось как «обжимать» эти размеры, особенно в квартирах, так и увеличивать в три раза в больших
Обычная парная в бюджетной бане это так называемая «8 кубовая» парная. Всё просто: 8м3 это 2 х 2м по периметру, (4м2), и 2м высоты. 4 х 2 = 8.

Исходя из практики, именно минимальные 8м3 чистового размера парной обеспечивают минимально-идеальное соотношение цена-качество-функциональность.

Конечно, приходилось как «обжимать» эти размеры, особенно в квартирах, так и увеличивать в три раза в больших банных комплексах. Но минимальную цену за материалы и работу под ключ мы называем, рассчитываем, исходя из этих размеров.

Для такой парной требуется как минимум: 20м2 вагонки, 20м/п полка, дверь с коробкой, и 100м/п пиломатериала различного сечения для устройства конструктива полков, стен и потолка.
Принципиальная схема
Принципиальная схема

В зависимости от качества исполнения, количество материала может увеличиваться, но в любом случае не больше чем 20%. Эти, оговоренные проценты, (в зависимости от предпочтений и пожеланий заказчика), закладываются в смету, (и доставку!), сразу.

Размер парной 2х2м универсален, и удобен тем, что не зависимо от расположения печи, всегда есть возможность разумно устроить дверь и два полка, максимально функционально. Первый полок для того, чтобы сидеть, шириной 40см, и высотой 40см от уровня чистового пола, - (трапа), и второй шириной 60см для лежания, через 40см от первого. Оба они занимают площадь + - 2м2.

Высота до потолка от уровня второго полка 115-120 см, это даёт возможность спокойно пользоваться вениками, как самому, так и другому человеку.

Конечно, если у вас есть возможность сделать парную просторнее, и вам это по каким-то причинам необходимо, (например, очень большая семья), лишние траты за материал и работу не пугают, вы располагаете мощной печью, и всегда свободным временем для протопки, то разумней сделать парную больше чем 8м3.

В парной на 8м3 спокойно могут комфортно «греться», париться, по два-три человека, каждые пятнадцать-двадцать минут. На компанию до десяти человек на три-четыре часа, этих размеров вполне достаточно.

Криволинейные посадочные места и лежаки, закруглённые углы, подспинники, и прочие необходимые владельцу «красивости», изголовья, фонари, и т. д. в зависимости от сложности изготовления, и претензий к качеству, оплачиваются отдельно.

Обычно, при приемлемой шлифовки изделий, от 5-7000р за м2.

Начинайте отделку парной с потолка, и ТОЛЬКО после окончательной установки и проверки работы печи!

Огнеупорный или огнестойкий материал вокруг печи со всех сторон обязателен!
-2

Совет: не упирайте вагонку в пол! Отступите от 5 до 10см, обыграйте плинтус водостойким материалом пола, например тем же кафелем или керамогранитом. Обдумайте этот узел примыкания, он должен быть тёплым.

Серьёзно озадачьтесь утеплением или прогревом пола, вентиляцией, и водоотведением с применением греющего кабеля.

Утепление потолка сопоставимо с утеплением пола, и всегда превышает утепление стен, впрочем, это справедливо для любых жилых конструкций.

Личный совет от автора: продумайте и устройте хорошее окно в парилке, не пожалеете!

Ещё есть на эту тему:

Как собрать простейшую дверную коробку, своими руками, дёшево. Для парилки, межкомнатных дверей и не только.

Как собрать простую дверь в парилку из вагонки.

При строительстве бани, неопытному пользователю нужно понимать первый ключевой вопрос:

Диалог с читателем «про баню», О ТОМ ЧТО ФОЛЬГА И ВАТА НЕ НУЖНЫ, ПО БОЛЬШОМУ СЧЁТУ, привёл к ДЛИННОМУ ОТВЕТУ.

Пишите, что знаете!