Добавить в корзинуПозвонить
Найти в Дзене

Своими руками. Вольер. Фундамент.

На свой канал "Нет границ совершенству", я ввожу новый раздел в котором буду рассказывать о том, как много мы можем сделать своими руками. Нам совсем необязательно приглашать бригаду маляров, чтобы наклеить в комнате обои. И даже мебель мы способны изготовить самостоятельно. И еще много-много полезных советов, касающихся ремонта, строительства и дизайна будет в этом разделе. Но, чтобы моим любимым читателям- собаководам не пришлось скучать, попадая в этот раздел, в нем, кроме всего прочего, будет рассказываться о массе полезных предметов, которые пригодятся нашим питомцам. И начну я, пожалуй с вольера. Если у вас есть кусочек лишней земли, переселяйте собак на постоянное место жительства на улицу (кроме совсем крошечных собачек компаньонов). Проживание на свежем воздухе гораздо полезнее для собак, чем пребывание в теплой квартире. Они лучше одеваются, становятся крепче и, в целом - бодрее и здоровее. Есть только одно пожелание - до года, пока он растет и формируется, пусть щенок жив
Оглавление

На свой канал "Нет границ совершенству", я ввожу новый раздел в котором буду рассказывать о том, как много мы можем сделать своими руками. Нам совсем необязательно приглашать бригаду маляров, чтобы наклеить в комнате обои. И даже мебель мы способны изготовить самостоятельно. И еще много-много полезных советов, касающихся ремонта, строительства и дизайна будет в этом разделе.

Но, чтобы моим любимым читателям- собаководам не пришлось скучать, попадая в этот раздел, в нем, кроме всего прочего, будет рассказываться о массе полезных предметов, которые пригодятся нашим питомцам.

И начну я, пожалуй с вольера.

Если у вас есть кусочек лишней земли, переселяйте собак на постоянное место жительства на улицу (кроме совсем крошечных собачек компаньонов). Проживание на свежем воздухе гораздо полезнее для собак, чем пребывание в теплой квартире. Они лучше одеваются, становятся крепче и, в целом - бодрее и здоровее.

Есть только одно пожелание - до года, пока он растет и формируется, пусть щенок живет в доме. Там у него больше возможностей постоянно находиться у ваших ног. Именно поэтому у щенков, которые взрослели рядом с хозяином интеллект гораздо выше, чем у собак изначально вольерного содержания. У них даже взгляд другой, более осмысленный что ли...

Но после года - вольер. Приступим.

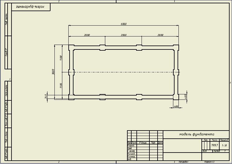
Сегодня будем заливать фундамент для вольера.

На чертеже все размеры указаны в миллиметрах.

-2

Размеры этого вольера рассчитаны на то, что в нем будет жить одна немецкая овчарка. Поэтому они годятся для пород размерами от немца и больше. Для более мелких пород размеры вольера могут быть уменьшены.

Нам понадобится:

1. Штыковая лопата

2. Совковая лопата

3. Емкость для приготовления бетона.

4. Два жестяных ведра

5. Сетка (для армирования фундамента) диаметром 3 мм и ячейками 100х100 мм, шириной 90 см - 18 м.

На 1 кубический метр бетона:

1. Щебень - 1300 кг

2. Песок - 700 кг

3. Цемент - 300 кг

4. Вода - 170 л

Я тут прикинула и на весь фундамент данного размера получила - цемент 720 кг, песок 1680 кг, щебень 3120 кг.

И еще для подушки понадобятся:

1. Песок - 0,4 кубических метра

2. Щебень - 0,4 кубических метра

Начинаем:

1.Копаем яму по периметру вольера глубиной 70 см, шириной - 34 см (в местах установки стоек ширина увеличивается до квадрата 40х40 см - видно на чертеже).

2. На дно ямы, по периметру, насыпаем 10 см песка и утрамбовываем ручной трамбовкой.

3. На песок, по периметру, насыпаем 10 см щебня и тоже утрамбовываем.

4. Устанавливаем (на одну из сторон) опалубку (на 20 см выше грунта) с креплением.

5. По центру ямы устанавливаем сетку.

6. Приготавливаем первую партию бетона ( в емкость, соблюдая пропорции засыпаем песок, щебень, цемент, заливаем воду и тщательно перемешиваем все совковой лопатой)

7. Заливаем фундамент.

8. Готовим вторую партию бетона и повторяем.

Если вы не осилите такой объем работы за один день - ничего страшного, можно доливать поэтапно. Единственное правило - выделенный на сегодня объем, должен быть залит до верху.

На случай дождя, накрываем фундамент пленкой.

Если температура воздуха на момент заливки фундамента составляет 15 - 20 градусов, то за 7 дней наш бетон наберет достаточную прочность и мы сможет начать устанавливать стойки.

Если температура воздуха 25 градусов и выше, то за бетоном надо ухаживать - 3 раза в день поливать (не переусердствуйте, поливаем из кружки, как комнатные цветы).

Если бы мы могли достать фундамент из земли, то как результат наших трудов, увидели бы вот такую конструкцию

-3

В следующей статье, я расскажу вам как изготовить и правильно установить опалубку.

Как всегда, я открыта для диалога. Все, что вам непонятно, вы можете отправить в виде вопросов на адрес tascha.63@mail.ru