Добавить в корзинуПозвонить
Найти в Дзене

Каркасный дом с мансардой. Чертежи каркаса.

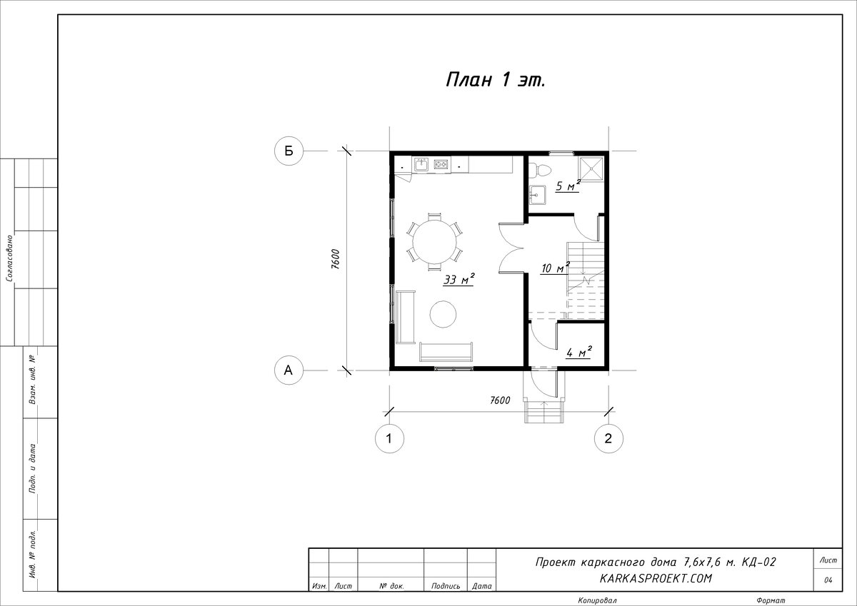
Габариты дома 7,6х7,6 м. Общая площадь 96 кв.м. Площадь застройки 59 кв.м. Высота 1 этажа по каркасу 2,5 м. Высота 2 этажа по каркасу 1,5-2,5 м.  Проект КД-02 имеет идеально правильный квадрат в основании, который обеспечивает удивительно разумную и рациональную планировку внутреннего пространства этого дома, площадь которого составляет 96 квадратных метров. На первом этаже дома размещены большая кухня-гостиная, площадью 33 кв.м, а так же санузел, тамбур и холл с лестницей на мансардный этаж. На втором этаже располагаются две просторных спальни по 16 кв.м. и холл. ​ Фундамент выполнен в виде монолитной мелко заглублённой фундаментной ленты, с устройством не пучинистой подушки и утеплённой отмостки. Для вентиляции подпола, в фундаменте предусмотрены специальные отверстия - продухи, которые следует открывать летом, что бы пространство подпола вентилировалось и было сухим, и закрывать в зимний период.  Цокольное перекрытие собирается из доски 50х200 мм., что на таких не больших пролёта
Внешний вид
Внешний вид

Габариты дома 7,6х7,6 м.

Общая площадь 96 кв.м.

Площадь застройки 59 кв.м.

Высота 1 этажа по каркасу 2,5 м.

Высота 2 этажа по каркасу 1,5-2,5 м.

 Проект КД-02 имеет идеально правильный квадрат в основании, который обеспечивает удивительно разумную и рациональную планировку внутреннего пространства этого дома, площадь которого составляет 96 квадратных метров. На первом этаже дома размещены большая кухня-гостиная, площадью 33 кв.м, а так же санузел, тамбур и холл с лестницей на мансардный этаж. На втором этаже располагаются две просторных спальни по 16 кв.м. и холл.

План 1 этажа
План 1 этажа
План 2 этажа
План 2 этажа

​ Фундамент выполнен в виде монолитной мелко заглублённой фундаментной ленты, с устройством не пучинистой подушки и утеплённой отмостки. Для вентиляции подпола, в фундаменте предусмотрены специальные отверстия - продухи, которые следует открывать летом, что бы пространство подпола вентилировалось и было сухим, и закрывать в зимний период.

-4

 Цокольное перекрытие собирается из доски 50х200 мм., что на таких не больших пролётах балок, гарантирует высокую жёсткость пола и отсутствие вибраций при ходьбе или играх детей, а так же нормальную толщину утеплителя - до 200 мм между балок перекрытия. 

-5

Междуэтажное перекрытие так же выполнено из доски 50х200, но в отличии от цокольного, балки междуэтажного перекрытия устанавливаются в 2 раза чаще.​

 Наружные стены собираются из доски 50х150. В качестве способа обеспечения жёсткости стен, предусмотрена обшивка плитами ОСП-3, толщиной 9 мм. Сама конструкция стен, выполнена по скандинавскому варианту, с врезным ригелем под верхней обвязкой стен и одинарными стойками по краям оконных и дверных проёмов.  Утепление стен между стоек каркаса составляет 150 мм. Что бы получить толщину утепления наружных стен в 200 мм, мы рекомендуем выполнить горизонтальную обрешётку из бруска 50х50 снаружи дома с дополнительным слоем утеплителя. 

-6

Стропила дома выполнены из доски 50х200 мм. Соответственно в наклонной зоне мансарды, крыша утепляется 200 мм. между стропил. Мы рекомендуем ещё выполнить дополнительное утепление по бруску 50х50 изнутри, в случае использования дома для круглогодичного проживания. 

-7

 Комплект чертежей для сборки этого дома состоит из двух разделов:

- АР (10 листов)

- КР (25 листов)

Проект полностью готов и доступен к заказу у нас на сайте - karkasproekt.com

Полный каталог готовых проектов каркасных домов.

Заказать индивидуальный проект каркасного дома.

Не забывайте подписаться на наш канал в ЯндексДзен и ставить лайки к понравившимся проектам, для нас это очень важно!

До встречи, друзья!