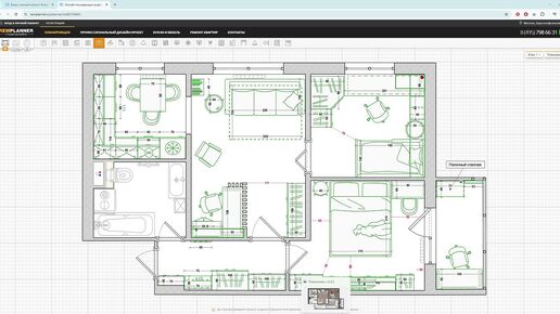
Мебель и сантехника в Remplanner: работаем над техническим дизайн-проектом квартиры на Мелитопольской улице.