Найти в Дзене
Войти
1,0×
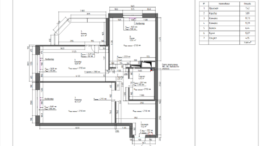
Разработка планировочного решения для квартиры под аренду.
5 месяцев назад
00:00
/
01:33
Дизайнер интерьера Македонская-Чембарова Татьяна (Владивосток)
Подписаться
2828632655.1950.1760077675231.38389