Найти в Дзене
Войти
1,0×
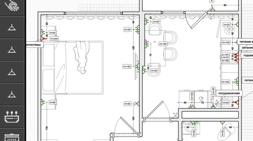
Добавление электрики в квартире под сдачу
21 просмотр · 1 год назад
00:00
/
03:09
Артём Плеханов
18 подписчиков
Подписаться
2872113522.931.1776747712746.91707