Найти в Дзене
Войти
1,0×
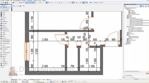
Дизайн-проект квартиры в Архикаде - 02 Чертим внутренние перегородки квартиры в Archicad
879 просмотров · 2 года назад
00:00
/
21:00
Уроки Archicad и 3ds max Дмитрий Мудров
112 подписчиков
Подписаться
3227599095.1929.1761838110549.33628