Найти в Дзене
Войти
1,0×
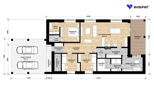
БОЛЬШОЙ одноэтажный дом с банным комплексом и террасой. Продуманная планировка и дизайн дома
25,9 тыс просмотров · 3 года назад
00:00
/
11:46
ИНБРИГ - строим в интересах каждого
2148 подписчиков
Подписаться
Хотите видеть больше публикаций по теме «Одноэтажные дома»?
Давайте
Дизайн интерьера и ремонт
1,34 млн интересуются
Следить за темой
3777985357.799.1776809694867.25139